133 Stamp Mill Drive, Dahlonega, GA 30533
Local realty services provided by:CENTURY 21 Novus
133 Stamp Mill Drive,Dahlonega, GA 30533
$1,070,000
- 4 Beds
- 5 Baths
- 2,981 sq. ft.
- Single family
- Active
Listed by: anne marie walker
Office: keller williams realty community partners
MLS#:7540726
Source:FIRSTMLS
Price summary
- Price:$1,070,000
- Price per sq. ft.:$358.94
- Monthly HOA dues:$249
About this home
Home to be built offered exclusively by KirklandHomes! Fabulous craftsman style estate home with expansive owner suite with split bedroom suites. Open concept including formal dining room. Incredible outdoor porches that extend the length of the back of the home which will look out onto a very private picturesque natural landscape. Includes 3 car courtyard entry garage and unfinished basement. This home will sit on a spectacular .73-acre lush wooded lot, secluded on a private street, offers rare opportunity to build your dream home on versatile and easy build site surrounded by nature. Located in historic Dahlonega, Achasta presents a wealth of amenities including stunning Jack Nicholson Signature golf course with lovely clubhouse and restaurant, swim, tennis and new pickleball courts. 24-hour guard gate protects this pristine community featuring walking trails, fishing pavilion, and new community garden. 65 miles north of Atlanta, the Hallmark-worthy town of Dahlonega has won several accolades for safety and livability and boasts a beautiful library, variety of festivals, NGU and fabulous new recreation center and water park! Just minutes from rivers and lakes, the Appalachian Trail, a collection of noted restaurants and wineries, you will be able to choose from numerous outdoor, academic and cultural activities. Brand new hospital and Publix and the charming downtown complete this idyllic place to call home.
Note: Some exterior architectural features are to be determined.
Contact an agent
Home facts
- Year built:2025
- Listing ID #:7540726
- Updated:December 09, 2025 at 02:24 PM
Rooms and interior
- Bedrooms:4
- Total bathrooms:5
- Full bathrooms:4
- Half bathrooms:1
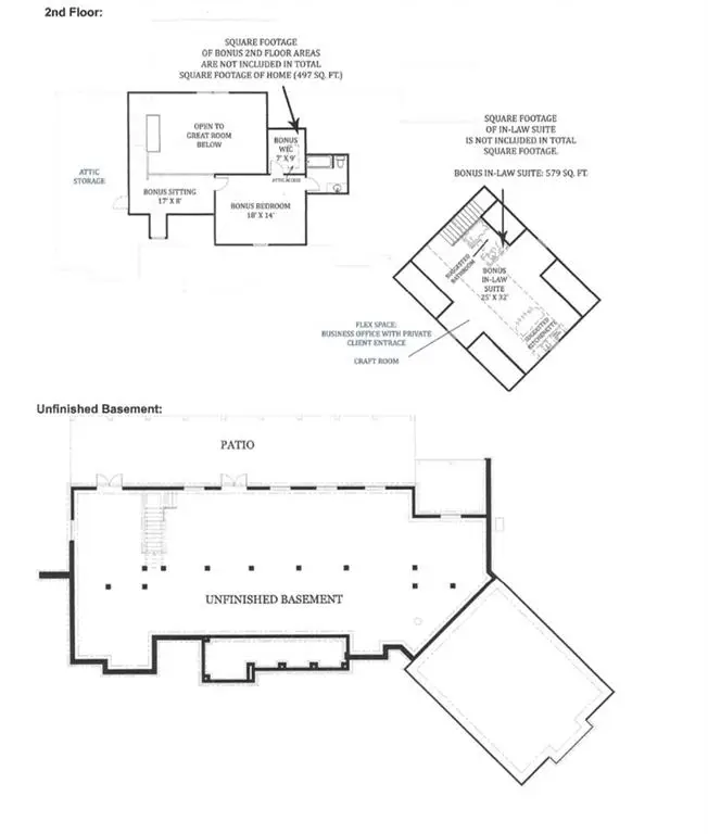
- Living area:2,981 sq. ft.
Heating and cooling
- Cooling:Ceiling Fan(s), Central Air, Zoned
- Heating:Electric, Heat Pump, Zoned
Structure and exterior
- Roof:Composition
- Year built:2025
- Building area:2,981 sq. ft.
- Lot area:0.73 Acres
Schools
- High school:Lumpkin County
- Middle school:Lumpkin County
- Elementary school:Cottrell
Utilities
- Water:Public, Water Available
- Sewer:Public Sewer, Sewer Available
Finances and disclosures
- Price:$1,070,000
- Price per sq. ft.:$358.94
- Tax amount:$341 (2024)
New listings near 133 Stamp Mill Drive
- New
$459,900Active4 beds 3 baths3,106 sq. ft.162 Stone Ridge Drive, Dahlonega, GA 30533
MLS# 10657597Listed by: Leading Edge Real Estate LLC - New
$140,000Active2 beds 2 baths1,056 sq. ft.62 Dogwood Trail, Dahlonega, GA 30533
MLS# 10657099Listed by: PalmerHouse Properties - New
$525,000Active2 beds 2 baths2,244 sq. ft.1050 Robinson Road, Dahlonega, GA 30533
MLS# 7690386Listed by: KELLER WILLIAMS REALTY SIGNATURE PARTNERS - New
$599,900Active4 beds 3 baths2,830 sq. ft.120 Rivermont Lane, Dahlonega, GA 30533
MLS# 7690971Listed by: ANCHOR REAL ESTATE ADVISORS, LLC - New
$424,999Active2 beds 3 baths1,508 sq. ft.119 Boyd Circle #D, Dahlonega, GA 30533
MLS# 7691005Listed by: KELLER WILLIAMS REALTY ATLANTA PARTNERS - New
$225,000Active0.86 Acres00 Crown Mountain Ridge Road, Dahlonega, GA 30533
MLS# 7690158Listed by: ATLANTA FINE HOMES SOTHEBY'S INTERNATIONAL - New
$189,000Active2 beds 2 baths1,280 sq. ft.75 Melody Lane, Dahlonega, GA 30533
MLS# 10654792Listed by: Century 21 Results
$460,000Active4 beds 3 baths2,090 sq. ft.115 Woods Drive, Dahlonega, GA 30533
MLS# 10606654Listed by: Keller Williams Realty Consultants- Open Sun, 2 to 4pmNew
$430,000Active3 beds 4 baths2,177 sq. ft.334 Silas Road, Dahlonega, GA 30533
MLS# 7689833Listed by: BOLST, INC. - Open Sun, 12 to 5pmNew
$379,549Active3 beds 4 baths1,877 sq. ft.100 Aspen Court #276, Dahlonega, GA 30533
MLS# 7689619Listed by: D.R. HORTON REALTY OF GEORGIA INC