5662 Evelyn Lane, Flowery Branch, GA 30542
Local realty services provided by:CENTURY 21 Crowe Realty
5662 Evelyn Lane,Flowery Branch, GA 30542
$499,900
- 4 Beds
- 3 Baths
- 2,633 sq. ft.
- Single family
- Active
Listed by: tamra wade, steve taylor
Office: re/max tru, inc.
MLS#:10697247
Source:METROMLS
Price summary
- Price:$499,900
- Price per sq. ft.:$189.86
- Monthly HOA dues:$65
About this home
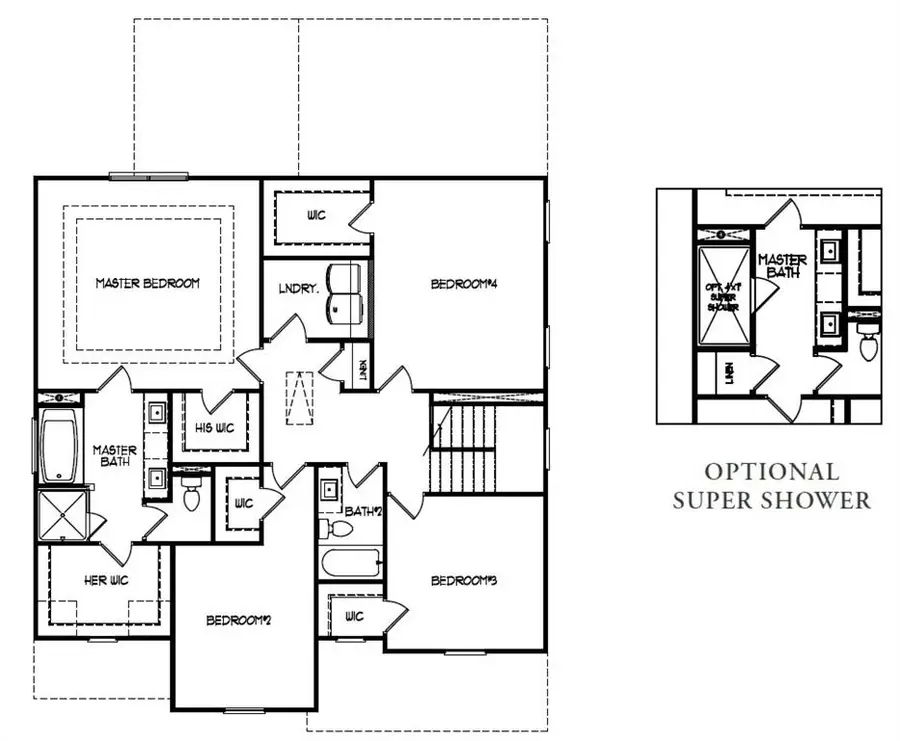
The Miller Plan built by Walker Anderson Homes is a Beautiful Home on a Quiet Culdesac Street in the Charming Hemingway Community in Downtown Flowery Branch and within walking distance to Lake Lanier's Marinas, Restaurants, and Recreational Offerings. The Home features a Luxurious Brick & Siding Exterior with Covered Rear Porch and Expansive 9-Foot Ceilings on both the Main and Upper Levels. When you enter through the front door from the Covered Front Porch, you are greeted by a Formal Dining Room which can also be used as an office. The Kitchen is open to the Family Room & Breakfast Room, has Painted Cabinets with Soft-Close Cabinet Doors & Drawers and includes a 36" Gas Cooktop with Cabinet Vent Hood, Wall Oven, Wall Microwave, all complimented by a Large Island. The Primary Bedroom Suite Upstairs is Spacious and complete with a Tray Ceiling, Two Walk-In Closets, Double Vanity, and a Large Shower with Separate Soaking Tub. A Super Shower Option is also available. There are Three Additional Bedrooms Upstairs, each with a Walk-In Closet, and and an additional Full Bath. Home is under construction with a projected completion in Summer of 2026. Ask about your Incentives with use of preferred lender. *Secondary Photos are Stock Photos...
Contact an agent
Home facts
- Year built:2026
- Listing ID #:10697247
- Updated:April 07, 2026 at 10:50 AM
Rooms and interior
- Bedrooms:4
- Total bathrooms:3
- Full bathrooms:2
- Half bathrooms:1
- Flooring:Carpet, Laminate, Tile
- Dining Description:Separate Room
- Bathrooms Description:Double Vanity, Separate Shower, Soaking Tub
- Kitchen Description:Breakfast Area, Breakfast Bar, Breakfast Room, Cooktop, Dishwasher, Disposal, Kitchen Island, Microwave, Oven (Wall), Solid Surface Counters, Stainless Steel Appliance(s), Walk-in Pantry
- Bedroom Description:Walk-In Closet(s)
- Living area:2,633 sq. ft.
Heating and cooling
- Cooling:Ceiling Fan(s), Central Air, Electric
- Heating:Natural Gas
- Central air:Yes
Structure and exterior
- Roof:Composition
- Year built:2026
- Building area:2,633 sq. ft.
- Lot area:0.16 Acres
- Lot Features:Level
- Architectural Style:Brick Front, Brick/Frame, Craftsman, Traditional
- Foundation Description:Slab
- Levels:2 Story
Schools
- High school:West Hall
- Middle school:West Hall
- Elementary school:Flowery Branch
Utilities
- Water:Public, Water Available
- Sewer:Public Sewer, Sewer Connected
Finances and disclosures
- Price:$499,900
- Price per sq. ft.:$189.86
Features and amenities
- Appliances:Cooktop, Dishwasher, Disposal, Gas Water Heater, Microwave, Oven (Wall), Stainless Steel Appliance(s)
- Laundry features:Upper Level
- Amenities:Carbon Monoxide Detector(s), Double Pane Windows, Gas Water Heater, High Ceilings, Smoke Detector(s), Tray Ceiling(s)
Parking
- Parking description:Garage, Garage Door Opener, Kitchen Level, Storage
- Garage:Yes
New listings near 5662 Evelyn Lane
- Coming Soon
$609,900Coming Soon5 beds 3 baths7425 Whistling Duck Way, Flowery Branch, GA 30542
MLS# 10726216Listed by: Georgia Real Estate Depot - New
$569,000Active5 beds 4 baths3,084 sq. ft.6782 Birch Bark Way, Flowery Branch, GA 30542
MLS# 10726083Listed by: Candler Real Estate Group - New
$479,000Active4 beds 3 baths1,974 sq. ft.5270 Union Circle, Flowery Branch, GA 30542
MLS# 7747700Listed by: KELLER WILLIAMS ELEVATE - New
$667,441Active4 beds 4 baths3,158 sq. ft.7236 Maple Brook Lane, Flowery Branch, GA 30542
MLS# 10725771Listed by: Pulte Realty of Georgia, Inc - New
$699,906Active5 beds 5 baths3,554 sq. ft.7124 Maple Brook Lane, Flowery Branch, GA 30542
MLS# 10725792Listed by: Pulte Realty of Georgia, Inc - New
$1,500,000Active3 beds 4 baths3,402 sq. ft.6592 Gaines Ferry Road, Flowery Branch, GA 30542
MLS# 10725940Listed by: Harry Norman Realtors - New
$711,401Active5 beds 4 baths3,554 sq. ft.7266 Thistle Down Way, Flowery Branch, GA 30542
MLS# 10725740Listed by: Pulte Realty of Georgia, Inc - New
$334,900Active3 beds 3 baths2,210 sq. ft.4638 Beacon Ridge Lane, Flowery Branch, GA 30542
MLS# 7747520Listed by: FIND A HOME, INC. - New
$610,000Active5 beds 3 baths3,150 sq. ft.5975 Park Bay Court, Flowery Branch, GA 30542
MLS# 10725570Listed by: Mark Spain Real Estate - New
$365,000Active3 beds 2 baths1,206 sq. ft.3962 Edgebrook Drive, Flowery Branch, GA 30542
MLS# 10725491Listed by: PEND Realty, LLC