180 Cedarwood Lane, Roswell, GA 30075
Local realty services provided by:CENTURY 21 The Avenues
180 Cedarwood Lane,Roswell, GA 30075
$2,065,966
- 4 Beds
- 5 Baths
- 4,969 sq. ft.
- Single family
- Pending
Listed by: wynn tierney404-585-5949
Office: lenox realty partners
MLS#:7656715
Source:FIRSTMLS
Price summary
- Price:$2,065,966
- Price per sq. ft.:$415.77
- Monthly HOA dues:$200
About this home
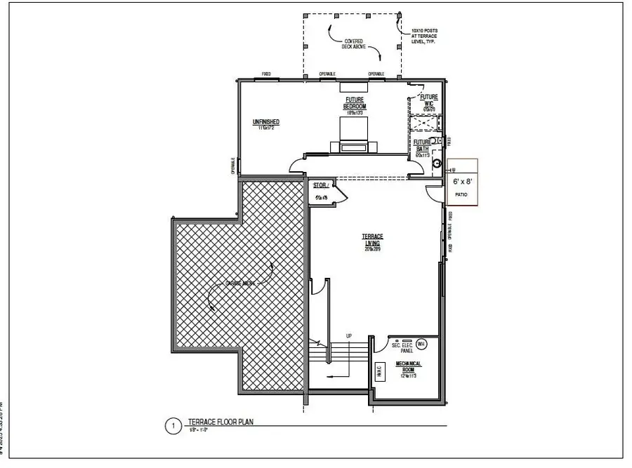
180 Cedarwood Lane is on a one acre cul de sac homesite in the Aster community of Roswell, GA. This square foot home offers 4 bedrooms and 4.5 bathrooms, blending a modern style in a natural setting. It has a 3 Car tandem garage and a very modern, commanding exterior elevation.
The primary suite is conveniently located on the 2nd level with a extra large shower and huge laundry room providing a private retreat with all the comforts. The home includes a dedicated work-from-home space downstairs, perfect for maintaining productivity in a quiet, comfortable environment. The guest suite in located on the main level. Additionally, two finished living spaces in the terrace level offer ample room for relaxation and entertainment.
As a net-zero energy ready home, this residence comes equipped with Open Cell Spray Foam insulation in the attic and al the exterior walls, 18 Seer HVAC and reflecting a commitment to sustainability and energy efficiency. The overall design is described as modern moody, characterized by simplicity, sophistication, and a focus on functionality. Natural materials like light wood and textures are complemented by dark modern accents, creating a balanced and inviting atmosphere.
The interior of the home will be curated by our designer with the homeowner's specific tastes and desires.
This home is a Net Zero Energy Home features Spray Foam Insulation is in the Attic envelope of the entire home and all the exterior walls, 18 Seer HVAC and Tankless Water Heater. Aster features an amenity area and nature trails throughout the community. Roswell is Named One of the Top Three Cities in the Nation to Raise Your Family, released by Frommer's....
Contact an agent
Home facts
- Year built:2025
- Listing ID #:7656715
- Updated:March 12, 2026 at 07:14 AM
Rooms and interior
- Bedrooms:4
- Total bathrooms:5
- Full bathrooms:4
- Half bathrooms:1
- Flooring:Carpet, Ceramic Tile, Hardwood
- Dining Description:Open Concept
- Bathrooms Description:Double Vanity, Separate His/Hers, Shower Only
- Kitchen Description:Cabinets Other, Dishwasher, Disposal, Gas Range, Kitchen Island, Pantry Walk-In, Range Hood, Solid Surface Counters, View to Family Room
- Basement Description:Bath/Stubbed, Daylight, Exterior Entry, Partial
- Living area:4,969 sq. ft.
Heating and cooling
- Cooling:Zoned
- Heating:Electric
Structure and exterior
- Roof:Metal, Shingle
- Year built:2025
- Building area:4,969 sq. ft.
- Lot area:1 Acres
- Lot Features:Back Yard, Front Yard, Landscaped, Wooded
- Architectural Style:European
- Construction Materials:HardiPlank Type
- Exterior Features:Covered, Private Yard, Rear Porch
- Levels:3+ Story
Schools
- High school:Roswell
- Middle school:Elkins Pointe
- Elementary school:Sweet Apple
Utilities
- Water:Public, Water Available
- Sewer:Septic Tank
Finances and disclosures
- Price:$2,065,966
- Price per sq. ft.:$415.77
Features and amenities
- Appliances:Irrigation Equipment
- Laundry features:Upper Level
- Amenities:ENERGY STAR Qualified Appliances, Entrance Foyer, High Ceilings 10 ft Main, High Ceilings 9 ft Upper, Tankless Water Heater, Walk-In Closet(s)
Parking
- Parking description:Detached, Garage, Garage Door Opener, Garage Faces Side, Level Driveway
- Garage spaces:3
New listings near 180 Cedarwood Lane
- New
$835,000Active4 beds 5 baths3,455 sq. ft.1785 Windsor Wood Drive, Roswell, GA 30075
MLS# 10708662Listed by: Ansley RE|Christie's Int'l RE - New
$999,900Active5 beds 5 baths3,732 sq. ft.115 Centennial Trace, Roswell, GA 30076
MLS# 7731018Listed by: REDFIN CORPORATION - New
$899,000Active3 beds 4 baths2,522 sq. ft.120 Green Oak Drive, Roswell, GA 30075
MLS# 10708462Listed by: Harry Norman Realtors - New
$455,000Active4 beds 4 baths2,357 sq. ft.650 Granby Hill Place, Alpharetta, GA 30022
MLS# 10708465Listed by: Chapman Hall Realtors Professionals - New
$320,000Active2 beds 3 baths1,184 sq. ft.292 Devonshire Drive, Alpharetta, GA 30022
MLS# 10708377Listed by: The Rezerve - New
$550,000Active3 beds 2 baths2607 Village Lane, Roswell, GA 30075
MLS# 10708274Listed by: Keller Williams Realty North Atlanta - New
$2,950,000Active5 beds 6 baths7,200 sq. ft.1105 Stonegate Court, Roswell, GA 30075
MLS# 7725542Listed by: ATLANTA FINE HOMES SOTHEBY'S INTERNATIONAL - Coming Soon
$545,000Coming Soon5 beds 4 baths1015 Terramont Drive, Roswell, GA 30076
MLS# 10707515Listed by: Virtual Properties Realty.com - New
$399,900Active2 beds 3 baths1,624 sq. ft.656 Granby Hill Place, Alpharetta, GA 30022
MLS# 7732617Listed by: MAXIMUM ONE REALTY GREATER ATL. - New
$270,000Active2 beds 3 baths1,240 sq. ft.161 Holcomb Ferry Road, Roswell, GA 30076
MLS# 10707372Listed by: BHGRE Metro Brokers