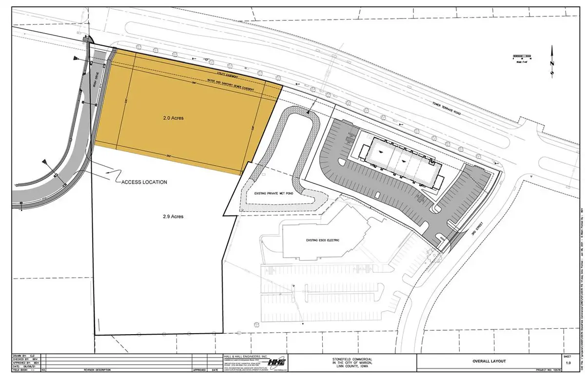
Lot 6 Tower Terr Rd/Irish Dr, Marion, IA 52302
Local realty services provided by:CENTURY 21 Signature Real Estate
Lot 6 Tower Terr Rd/Irish Dr,Marion, IA 52302
$871,200
- 2 Acres
- Lots / Land
- Active
Listed by: adam gibbs, adam gibbs
Office: gld commercial real estate advisors
MLS#:202401778
Source:IA_ICAAR
Price summary
- Price:$871,200
About this home
Shovel-ready site located on the Tower Terrace Road extension in Marion, near the Linn-Mar campus. This upscale professional park is home to ESCO Group, YMCA, UnityPoint, and other medical and retail users. Price includes a fully developed, level lot with utilities; fiber connectivity is available via IMON. Site size is flexible, with 2 to 6.7 acres available. Preliminary plat is complete; owner will final plat to a buyer’s specific lot size. The City’s new comprehensive plan designates the area as “MU – Mixed Use.” This allows for higher-intensity residential development (over 14 units/acre), including stand-alone multifamily or upper-story residential. The commercial component is intended to complement the residential use with services such as medical or dental clinics, personal services, daycare, assisted living, grocery, retail, restaurants, cafes, and more. Mixed-use developments will be evaluated for mobility, layout, and public open space integration.
Contact an agent
Home facts
- Listing ID #:202401778
- Added:1086 day(s) ago
- Updated:January 18, 2026 at 04:17 PM
Structure and exterior
- Lot area:2 Acres
Schools
- High school:Linn Mar
- Middle school:Linn Mar
- Elementary school:Linn Mar
Finances and disclosures
- Price:$871,200
New listings near Lot 6 Tower Terr Rd/Irish Dr
- New
$169,000Active-- beds -- baths1,976 sq. ft.275 5th Avenue, Marion, IA 52302
MLS# 2600418Listed by: EPIQUE REALTY - Open Sun, 12:30 to 2pmNew
$180,000Active2 beds 2 baths1,290 sq. ft.4406 Quail Trail Drive, Marion, IA 52302
MLS# 2600415Listed by: REALTY87 - New
$370,000Active4 beds 3 baths2,517 sq. ft.1605 Valentine Drive, Marion, IA 52302
MLS# 2600371Listed by: REALTY87 - Open Sun, 2 to 3:30pmNew
$625,000Active5 beds 3 baths3,226 sq. ft.3988 Peridot Dr, Marion, IA 52302
MLS# 2600372Listed by: REAL BROKER, LLC - Open Sun, 12 to 1:30pm
$149,900Pending2 beds 2 baths780 sq. ft.285 15th Street, Marion, IA 52302
MLS# 2600332Listed by: REALTY87 - New
$379,990Active3 beds 2 baths1,635 sq. ft.3708 Rueben Drive, Marion, IA 52302
MLS# 2600306Listed by: DRH REALTY OF IOWA, LLC - New
$399,990Active4 beds 3 baths2,190 sq. ft.3734 Rueben Drive, Marion, IA 52302
MLS# 2600307Listed by: DRH REALTY OF IOWA, LLC - New
$265,000Active5 beds 2 baths1,809 sq. ft.1500 Pleasantview Drive, Marion, IA 52302
MLS# 2600295Listed by: INFINITI REALTY - New
$214,000Active4 beds 2 baths1,660 sq. ft.990 S 5th St, Marion, IA 52302
MLS# 202600361Listed by: SKOGMAN REALTY CO. - New
$229,900Active4 beds 2 baths1,577 sq. ft.180 21st Street, Marion, IA 52302
MLS# 2600286Listed by: BARNER REALTY & AUCTION