171 Star RD, Bonners Ferry, ID 83805
Local realty services provided by:CENTURY 21 Beutler & Associates
171 Star RD,Bonners Ferry, ID 83805
$775,000
- 3 Beds
- 2 Baths
- 3,132 sq. ft.
- Single family
- Active
Listed by: andy clark, crystal clark
Office: keller williams realty - sandpoint branch
MLS#:26-3112
Source:ID_CDAR
Price summary
- Price:$775,000
- Price per sq. ft.:$247.45
About this home
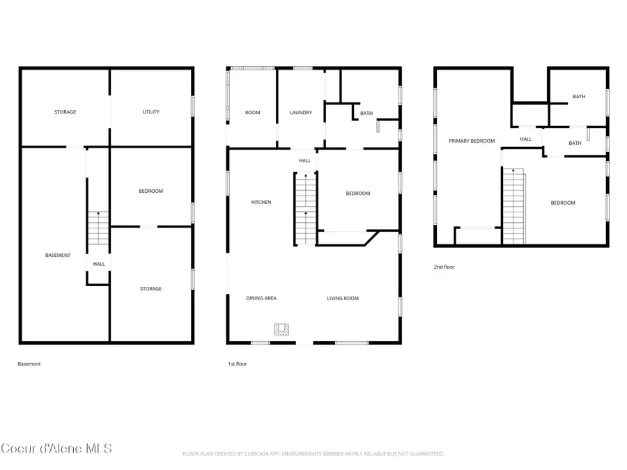
Escape to the tranquility of North Idaho with this charming 3 bedroom/2bath log home set on 5 level, fully useable acres-perfectly suited for homesteading, hobby farming, or simply enjoying wide-open space and mountain views. This thoughtfully designed home offers the convenience of a main floor primary suite (ADA compliant) and main floor laundry, complemented by a spacious light-filled kitchen ideal for gathering and everyday living. Large windows throughout invite in abundant natural light and frame the surrounding landscape. Upstairs, a second primary suite provides flexibility and privacy, along with an additional bonus space perfect for a library, office, or entertainment room. The partially finished basement includes a non-conforming bedroom and is currently used for food storage--but it could easily be converted into more living space if desired. Outdoors, the property is fully equipped for a self sufficient lifestyle. The fenced yard includes five electric pens, dedicated goat housing, and a well appointed chicken palace, making it ready for animals on day one. Garden boxes, fruit trees, and berry bushes are plentiful.
A detached one car garage features a second full kitchen-ideal for canning, processing, or guest overflow. For projects, storage, or business needs, the impressive 35x40 shop with electricity offers ample space and versatility. There is a backup generator with a 500-gallon diesel tank on site, capable of powering the entire property. With sweeping mountain views, useable acreage, and a blend of comfort and functionality, this North Idaho homestead is a rare opportunity to live the lifestyle you have been dreaming of....
Contact an agent
Home facts
- Year built:1996
- Listing ID #:26-3112
- Added:12 day(s) ago
- Updated:April 19, 2026 at 02:50 PM
Rooms and interior
- Bedrooms:3
- Total bathrooms:2
- Full bathrooms:2
- Bathrooms Description:Jetted Tub
- Basement:Yes
- Basement Description:Part Finished
- Living area:3,132 sq. ft.
Heating and cooling
- Cooling:Central Air
- Heating:Baseboard, Forced Air, Furnace
Structure and exterior
- Roof:Metal
- Year built:1996
- Building area:3,132 sq. ft.
- Lot area:5.2 Acres
- Lot Features:Level, Southern Exposure
- Exterior Features:Covered Porch, Fruit Trees, Garden, Lawn
- Foundation Description:Concrete Perimeter
Utilities
- Water:Community System
Finances and disclosures
- Price:$775,000
- Price per sq. ft.:$247.45
- Tax amount:$2,514 (2025)
Features and amenities
- Laundry features:Gas Dryer, Washer
- Amenities:Fireplace, Jetted Tub
New listings near 171 Star RD
- New
$462,000Active4 beds 2 baths1,864 sq. ft.6645 Alderson Ln., Bonners Ferry, ID 83805
MLS# 26-3569Listed by: COLDWELL BANKER NORTH WOODS - New
$529,000Active5 beds 4 baths2,688 sq. ft.334 Hardy LOOP, Bonners Ferry, ID 83805
MLS# 26-3467Listed by: CENTURY 21 FOUR SEASONS REALTY - New
$269,000Active10 AcresNNA WESTSIDE RD PARCEL 7, Bonners Ferry, ID 83805
MLS# 26-3432Listed by: COLDWELL BANKER SCHNEIDMILLER REALTY
$400,000Pending4 beds 3 baths1,976 sq. ft.6618 Clara ST, Bonners Ferry, ID 83805
MLS# 26-3415Listed by: NEXTHOME 365 REALTY- New
$815,000Active6 beds 3 baths3,932 sq. ft.6955 Apple Aly, Bonners Ferry, ID 83805
MLS# 26-3386Listed by: TOMLINSON SOTHEBY'S INTERNATIONAL REALTY (IDAHO) - New
$420,000Active3 beds 1 baths880 sq. ft.595 Snowcat LN, Bonners Ferry, ID 83805
MLS# 26-3312Listed by: PUREWEST REAL ESTATE
$649,000Pending5 beds 3 baths2,760 sq. ft.323 Aspen DR, Bonners Ferry, ID 83805
MLS# 26-3258Listed by: TOMLINSON SOTHEBY'S INTERNATIONAL REALTY (IDAHO)
$445,000Active3 beds 2 baths1,422 sq. ft.264 Rigby Rd, Bonners Ferry, ID 83805
MLS# 26-3205Listed by: REAL BROKER LLC
$475,000Active70.33 AcresNNA Holmes Rd, Bonners Ferry, ID 83805
MLS# 26-3162Listed by: PACE-KERBY REAL ESTATE, INC