864 N Gracie Ave #Lot 11/3, Eagle, ID 83616
Local realty services provided by:CENTURY 21 Northstar
864 N Gracie Ave #Lot 11/3,Eagle, ID 83616
$1,198,000
- 4 Beds
- 4 Baths
- 2,771 sq. ft.
- Single family
- Active
Upcoming open houses
- Sat, Apr 0401:00 pm - 03:00 pm
Listed by: matt bauscher, kristina mitchellMain: 208-391-2391
Office: amherst madison
MLS#:98977737
Source:ID_IMLS
Price summary
- Price:$1,198,000
- Price per sq. ft.:$432.33
- Monthly HOA dues:$183.33
About this home
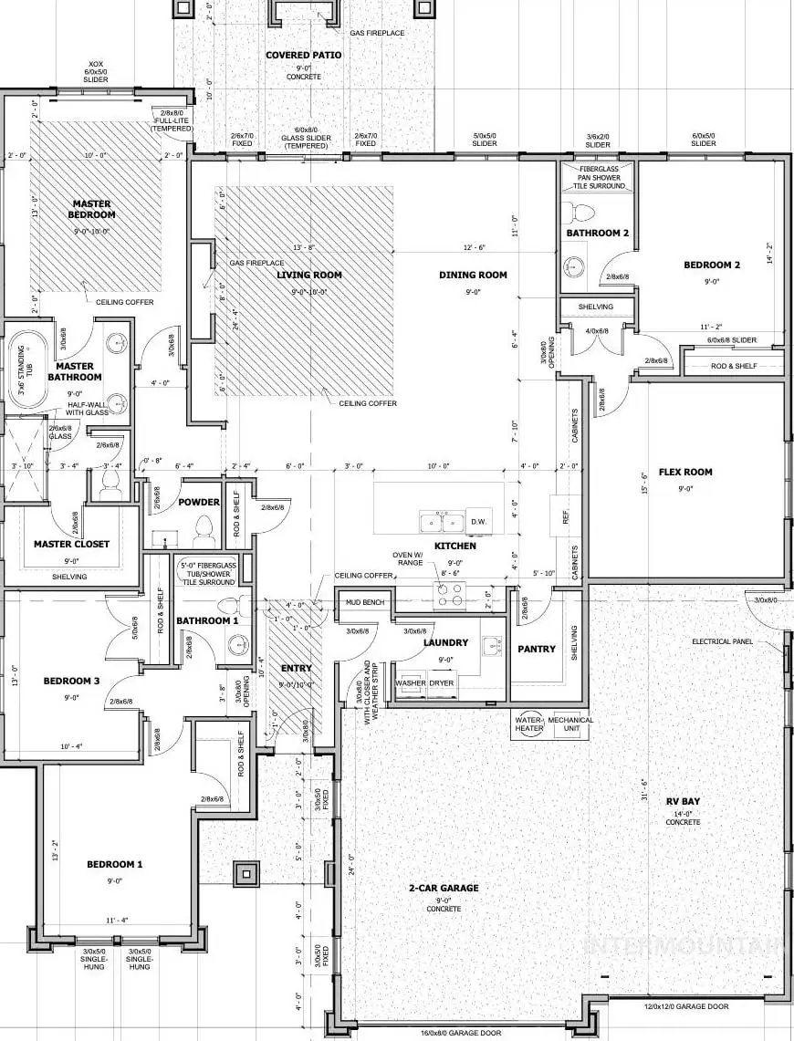
Stunning single-level home on a spacious lot with an RV bay! This beautifully designed residence offers an impressively-sized open-concept layout, a year-round entertaining patio complete with a stacked stone gas fireplace, and dedicated RV parking for all your storage needs. The expansive great room showcases exposed beams, walls of windows that flood the space with natural light, and a gourmet chef’s kitchen featuring an oversized island, Thermador appliances, and custom ceiling-height cabinetry. Thoughtfully designed with a split- bedroom floor plan, the luxurious primary suite boasts direct patio access, a generous walk-in closet, and a spa- inspired en suite bath with quartz flooring and countertops, dual vanities, an oversized soaking tub, and a walk-in shower. A versatile bonus room with a wet bar provides the perfect space for a home theater, playroom, or office. With premium finishes and striking architectural details throughout, this home perfectly captures upscale Eagle living in a walkable community just minutes from charming downtown Eagle. Located in Centerra, this property offers the ideal blend of convenience, style, and elevated comfort, truly the place to be....
Contact an agent
Home facts
- Year built:2026
- Listing ID #:98977737
- Added:60 day(s) ago
- Updated:April 04, 2026 at 02:10 PM
Rooms and interior
- Bedrooms:4
- Total bathrooms:4
- Full bathrooms:4
- Flooring:Carpet, Tile
- Bathrooms Description:Bath-Master
- Kitchen Description:Kitchen Island, Pantry
- Living area:2,771 sq. ft.
Heating and cooling
- Cooling:Central Air
- Heating:Forced Air, Natural Gas
- Central air:Yes
Structure and exterior
- Roof:Composition
- Year built:2026
- Building area:2,771 sq. ft.
- Lot area:0.29 Acres
- Lot Features:Irrigation Available, Sidewalks
- Construction Materials:Stone, Wood Siding
Schools
- High school:Eagle
- Middle school:Eagle Middle
- Elementary school:Eagle
Utilities
- Water:City Service
Finances and disclosures
- Price:$1,198,000
- Price per sq. ft.:$432.33
Features and amenities
- Amenities:Bath-Master, Breakfast Bar, Kitchen Island, Pantry, Split Bedroom, Walk-In Closet(s)
- Pool features:Community
Parking
- Parking description:Attached, Finished Driveway, RV Access/Parking
- Garage:Yes
- Garage spaces:4
New listings near 864 N Gracie Ave #Lot 11/3
- Open Sat, 11am to 3pmNew
$3,600,000Active4 beds 5 baths5,896 sq. ft.480 E Laguna Shore Lane, Eagle, ID 83616
MLS# 98980757Listed by: SKYLINE REALTY - New
$2,299,000Active4 beds 5 baths6,449 sq. ft.3598 N Timber Ridge Ln, Eagle, ID 83616
MLS# 98980739Listed by: KELLER WILLIAMS REALTY BOISE - New
$765,000Active4 beds 3 baths2,308 sq. ft.1406 N Lopez, Eagle, ID 83616
MLS# 98980733Listed by: THE AGENCY BOISE
$664,000Pending4 beds 3 baths2,104 sq. ft.6336 N Barholm Ln, Eagle, ID 83616
MLS# 98980692Listed by: HOMES OF IDAHO- New
$465,000Active3 beds 2 baths1,539 sq. ft.356 S Golden Eagle Lane, Eagle, ID 83616
MLS# 98980708Listed by: CENTURY 21 EAGLE ROCK
$1,421,414Pending4 beds 5 baths3,647 sq. ft.775 W Crestone Ct, Eagle, ID 83616
MLS# 98980681Listed by: TOLL BROTHERS REAL ESTATE, INC
$843,475Pending5 beds 4 baths3,000 sq. ft.6739 W Sollas Dr, Eagle, ID 83616
MLS# 98980691Listed by: HOMES OF IDAHO- New
$392,900Active3 beds 3 baths1,689 sq. ft.4145 W Steel Grey Ln, Eagle, ID 83616
MLS# 98980627Listed by: LENNAR SALES CORP - New
$393,900Active3 beds 3 baths1,689 sq. ft.4207 W Perspective St, Eagle, ID 83616
MLS# 98980635Listed by: LENNAR SALES CORP - New
$408,900Active3 beds 3 baths1,879 sq. ft.4201 W Perspective St, Eagle, ID 83616
MLS# 98980641Listed by: LENNAR SALES CORP