6848 N Zakariah Ave, Meridian, ID 83646
Local realty services provided by:CENTURY 21 Northstar
6848 N Zakariah Ave,Meridian, ID 83646
$591,900Last list price
- 5 Beds
- 3 Baths
- - sq. ft.
- Single family
- Sold
Listed by: sandy trybornMain: 253-219-4207
Office: lennar sales corp
MLS#:98972429
Source:ID_IMLS
Sorry, we are unable to map this address
Price summary
- Price:$591,900
- Monthly HOA dues:$50
About this home
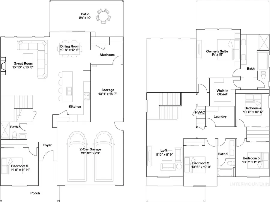
Luxury lives in the details with the All-Star Series. This premium collection features 9’ ceilings on the main level, creating a bright and open living space complete with a cozy fireplace and covered patio. The gourmet kitchen offers double ovens, a gas cooktop, quartz countertops, a walk-in pantry, and designer cabinetry. You’ll also find quartz countertops in the bathrooms, with luxury vinyl plank flooring throughout the main living areas. Added touches like 6” baseboards, garage service doors, full aluminum gutters, and tankless water heaters reflect the high standards of this standout series. Heritage Heights is a vibrant neighborhood that combines scenic views, everyday convenience, and amenities designed for active, outdoor living. Residents can enjoy pickleball and bocce courts, three playgrounds, picnic areas, and a nature area with walking paths.
Contact an agent
Home facts
- Year built:2026
- Listing ID #:98972429
- Added:44 day(s) ago
- Updated:March 08, 2026 at 07:19 AM
Rooms and interior
- Bedrooms:5
- Total bathrooms:3
- Full bathrooms:3
- Flooring:Carpet
- Bathrooms Description:Bath-Master
- Kitchen Description:Kitchen Island, Pantry
Heating and cooling
- Cooling:Central Air
- Heating:Forced Air, Natural Gas
Structure and exterior
- Roof:Architectural Style
- Year built:2026
- Construction Materials:Frame
Schools
- High school:Owyhee
- Middle school:Star
- Elementary school:Pleasant View
Utilities
- Water:City Service
Finances and disclosures
- Price:$591,900
Features and amenities
- Amenities:Bath-Master, Breakfast Bar, Kitchen Island, Pantry, Walk-In Closet(s)
New listings near 6848 N Zakariah Ave
- New
$2,149,000Active5 beds 5 baths5,131 sq. ft.5043 W Oakford, Meridian, ID 83646
MLS# 98977252Listed by: SILVERCREEK REALTY GROUP - New
$579,900Active3 beds 2 baths1,900 sq. ft.2787 W Warlander, Meridian, ID 83642
MLS# 98977236Listed by: HOMES OF IDAHO - New
$525,000Active3 beds 2 baths1,920 sq. ft.3090 W Silver River St., Meridian, ID 83646
MLS# 98977223Listed by: KELLER WILLIAMS REALTY BOISE
$625,000Pending3 beds 2 baths2,395 sq. ft.950 E Kingsford Drive, Meridian, ID 83642
MLS# 98977215Listed by: REALTY ONE GROUP PROFESSIONALS- Open Sun, 1 to 3pmNew
$485,000Active3 beds 2 baths1,584 sq. ft.603 W Laughton Dr, Meridian, ID 83646
MLS# 98977162Listed by: ATOVA - New
$534,900Active3 beds 3 baths2,630 sq. ft.8927 W Inspirado St, Meridian, ID 83646
MLS# 98977151Listed by: LENNAR SALES CORP - New
$471,900Active3 beds 2 baths1,935 sq. ft.6874 N Jaden Jones Ave, Meridian, ID 83646
MLS# 98977154Listed by: LENNAR SALES CORP
$709,072Pending4 beds 4 baths3,135 sq. ft.1083 W Hammer Falls Dr, Meridian, ID 83634
MLS# 98977146Listed by: TOLL BROTHERS REAL ESTATE, INC- New
$509,990Active4 beds 3 baths3,065 sq. ft.11326 W Tutor St, Nampa, ID 83651
MLS# 98977121Listed by: HUBBLE HOMES, LLC - New
$399,990Active3 beds 2 baths1,620 sq. ft.11338 W Tutor St, Nampa, ID 83651
MLS# 98977126Listed by: HUBBLE HOMES, LLC