13248 N International St, Rathdrum, ID 83858
Local realty services provided by:CENTURY 21 Beutler & Associates
13248 N International St,Rathdrum, ID 83858
$567,600
- 3 Beds
- 2 Baths
- 1,512 sq. ft.
- Single family
- Pending
Listed by: bret minzghor, mariah turrell
Office: windermere/coeur d'alene realty inc
MLS#:26-1231
Source:ID_CDAR
Price summary
- Price:$567,600
- Price per sq. ft.:$375.4
About this home
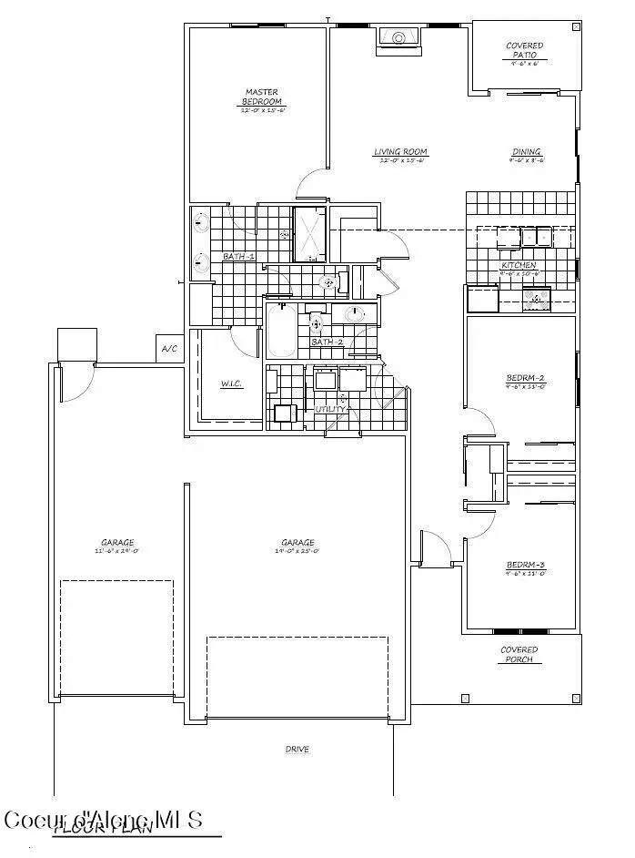
3rd Bay garage is 12 wide and 62 feet deep exterior measurement with a 10X10 garage door with opener, gas fireplace, quartz countertops throughout, covered front and rear patio, vaulted ceilings, 95% gas furnace, Nest thermostat, tankless gas water heater, gas to rear patio, gas range, LVP flooring every where except bedrooms and closets, garage door opener, garage man door and front yard landscaping and sprinkler system.
Return home to style and elegance every day when you make this beautiful abode your own. There's an impressive 1,437 sqft of living space with a bright and open-plan layout that invites you to rest and relax.
The owner's suite enjoys a private position, complete with an ensuite bath and an abundance of closet space. The two guest bedrooms are serviced by the hall bath.
When friends drop by, you can flow freely from the living room, into the dining room and the kitchen beyond. A breakfast nook set under a statement chandelier light.
Contact an agent
Home facts
- Year built:2026
- Listing ID #:26-1231
- Added:37 day(s) ago
- Updated:March 21, 2026 at 01:45 AM
Rooms and interior
- Bedrooms:3
- Total bathrooms:2
- Full bathrooms:2
- Flooring:Carpet
- Basement:Yes
- Basement Description:Crawl Space
- Living area:1,512 sq. ft.
Heating and cooling
- Heating:Forced Air, Furnace
Structure and exterior
- Roof:Composition
- Year built:2026
- Building area:1,512 sq. ft.
- Lot area:0.23 Acres
- Lot Features:Level
- Exterior Features:Covered Patio, Covered Porch, Lighting
- Foundation Description:Concrete Perimeter
Utilities
- Water:Public
- Sewer:Public Sewer
Finances and disclosures
- Price:$567,600
- Price per sq. ft.:$375.4
New listings near 13248 N International St
$564,118Pending4 beds 2 baths2,046 sq. ft.6585 W CONSTANTINE LN, Rathdrum, ID 83858
MLS# 26-2486Listed by: COLDWELL BANKER SCHNEIDMILLER REALTY- Open Sat, 12 to 2pmNew
$649,900Active3 beds 2 baths1,733 sq. ft.4882 W Highway 53, Rathdrum, ID 83858
MLS# 26-2469Listed by: FUTURE REALTY - New
$1,199,000Active-- beds -- baths5,172 sq. ft.7005 W Timberline St, Rathdrum, ID 83858
MLS# 26-2471Listed by: CENTURY 21 BEUTLER & ASSOCIATES - New
$2,354,799Active3 beds 4 baths3,631 sq. ft.L4B1 N Mountain View Rd, Rathdrum, ID 83858
MLS# 26-2463Listed by: WINDERMERE/COEUR D'ALENE REALTY INC - New
$682,000Active3 beds 3 baths1,988 sq. ft.13439 N Shimmering Ct, Rathdrum, ID 83858
MLS# 26-2451Listed by: TOMLINSON SOTHEBY'S INTERNATIONAL REALTY (IDAHO) - New
$795,000Active3 beds 2 baths1,776 sq. ft.25165 N Vista View Ct, Rathdrum, ID 83858
MLS# 26-2434Listed by: BERKSHIRE HATHAWAY HOMESERVICES JACKLIN REAL ESTATE
$469,000Pending3 beds 2 baths1,245 sq. ft.12115 N LENNON LN, Rathdrum, ID 83858
MLS# 26-2425Listed by: COLDWELL BANKER SCHNEIDMILLER REALTY- Open Sat, 11am to 2pmNew
$864,000Active3 beds 3 baths2,133 sq. ft.15079 N PRISTINE CIR, Rathdrum, ID 83858
MLS# 26-2408Listed by: COLDWELL BANKER SCHNEIDMILLER REALTY - New
$1,134,797Active4 beds 2 baths2,709 sq. ft.L9B8 N Eclipse Road, Rathdrum, ID 83858
MLS# 26-2403Listed by: WINDERMERE/HAYDEN, LLC - New
$660,000Active4 beds 2 baths2,102 sq. ft.13457 N Bale St, Rathdrum, ID 83858
MLS# 26-2402Listed by: SOLID GROUND REAL ESTATE