8869 W Swather Ave, Rathdrum, ID 83858
Local realty services provided by:CENTURY 21 Beutler & Associates
8869 W Swather Ave,Rathdrum, ID 83858
$542,125
- 3 Beds
- 2 Baths
- 1,437 sq. ft.
- Single family
- Pending
Listed by: bret minzghor, mariah turrell
Office: windermere/coeur d'alene realty inc
MLS#:26-1221
Source:ID_CDAR
Price summary
- Price:$542,125
- Price per sq. ft.:$377.26
About this home
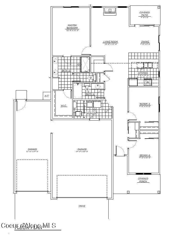
3rd Bay garage is 12 wide and 30 feet deep exterior measurement with a 10X10 garage door with opener, gas fireplace, quartz countertops throughout, covered front and rear patio, vaulted ceilings, 95% gas furnace, Nest thermostat, tankless gas water heater, gas to rear patio, gas range, LVP flooring every where except bedrooms and closets, garage door opener, garage man door and front yard landscaping and sprinkler system.
Return home to style and elegance every day when you make this beautiful abode your own. There's an impressive 1,437 sqft of living space with a bright and open-plan layout that invites you to rest and relax.
The owner's suite enjoys a private position, complete with an ensuite bath and an abundance of closet space. The two guest bedrooms are serviced by the hall bath.
When friends drop by, you can flow freely from the living room, into the dining room and the kitchen beyond. A breakfast nook set under a statement chandelier light.
Contact an agent
Home facts
- Year built:2026
- Listing ID #:26-1221
- Added:94 day(s) ago
- Updated:May 17, 2026 at 07:26 AM
Rooms and interior
- Bedrooms:3
- Total bathrooms:2
- Full bathrooms:2
- Flooring:Carpet
- Basement:Yes
- Basement Description:Crawl Space
- Living area:1,437 sq. ft.
Heating and cooling
- Heating:Forced Air, Furnace
Structure and exterior
- Roof:Composition
- Year built:2026
- Building area:1,437 sq. ft.
- Lot area:0.21 Acres
- Lot Features:Level
- Exterior Features:Covered Patio, Covered Porch, Lighting
- Foundation Description:Concrete Perimeter
Utilities
- Water:Public
- Sewer:Public Sewer
Finances and disclosures
- Price:$542,125
- Price per sq. ft.:$377.26
New listings near 8869 W Swather Ave
- New
$669,000Active4 beds 3 baths2,125 sq. ft.13357 N Bale ST, Rathdrum, ID 83858
MLS# 26-4954Listed by: NORTHWEST REALTY GROUP - New
$647,984Active4 beds 3 baths3,278 sq. ft.6015 W DAYTON AVE, Rathdrum, ID 83858
MLS# 26-4948Listed by: COLDWELL BANKER SCHNEIDMILLER REALTY
$469,000Pending3 beds 2 baths1,245 sq. ft.11878 N ENTWISTLE WAY, Rathdrum, ID 83858
MLS# 26-4923Listed by: COLDWELL BANKER SCHNEIDMILLER REALTY- New
$1,375,000Active4 beds 4 baths3,170 sq. ft.3102 W Mack LN, Rathdrum, ID 83858
MLS# 26-4915Listed by: PROFESSIONAL REALTY SERVICES IDAHO - New
$625,000Active3 beds 3 baths1,761 sq. ft.13720 N Corrigan ST, Rathdrum, ID 83858
MLS# 26-4908Listed by: WINDERMERE/COEUR D'ALENE REALTY INC - PF - New
$1,296,021Active4 beds 3 baths3,401 sq. ft.24289 N Ceylon Road, Rathdrum, ID 83858
MLS# 26-4854Listed by: WINDERMERE/HAYDEN, LLC - New
$569,990Active3 beds 2 baths1,800 sq. ft.11485 N SIMMONS LN, Rathdrum, ID 83858
MLS# 26-4884Listed by: COLDWELL BANKER SCHNEIDMILLER REALTY - New
$610,000Active3 beds 2 baths2,281 sq. ft.6103 Ballentree Ln, Rathdrum, ID 83858
MLS# 26-4871Listed by: EXP REALTY - New
$1,417,168Active4 beds 3 baths3,596 sq. ft.L2B9 N Ceylon Road, Rathdrum, ID 83858
MLS# 26-4877Listed by: WINDERMERE/HAYDEN, LLC - New
$1,417,168Active4 beds 2 baths3,596 sq. ft.23885 N Ceylon Rd, Rathdrum, ID 83858
MLS# 20261186Listed by: WINDERMERE HAYDEN LLC