8951 W Swather Ave, Rathdrum, ID 83858
Local realty services provided by:CENTURY 21 Beutler & Associates
8951 W Swather Ave,Rathdrum, ID 83858
$524,575
- 3 Beds
- 2 Baths
- 1,437 sq. ft.
- Single family
- Pending
Listed by: bret minzghor, mariah turrell
Office: windermere/coeur d'alene realty inc
MLS#:25-11056
Source:ID_CDAR
Price summary
- Price:$524,575
- Price per sq. ft.:$365.05
About this home
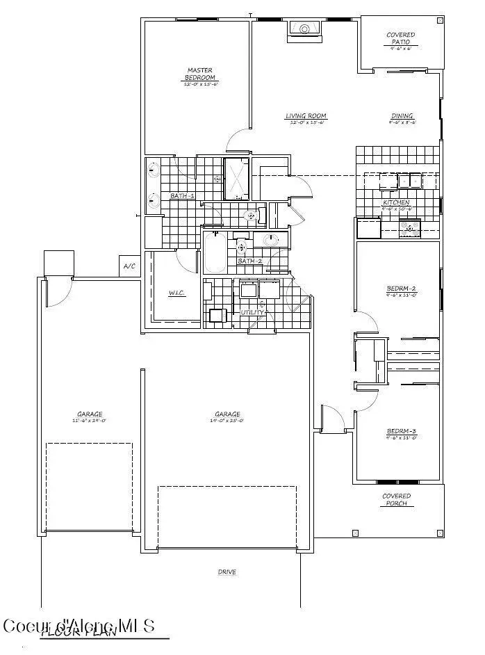
Almost finished home. 3rd Bay garage is 12 wide and 30 feet deep exterior measurement with a 10X10 garage door with opener, gas fireplace, quartz countertops throughout, covered front and rear patio, vaulted ceilings, 95% gas furnace, Nest thermostat, tankless gas water heater, gas to rear patio, gas range, LVP flooring every where except bedrooms and closets, garage door opener, garage man door and front yard landscaping and sprinkler system.
Return home to style and elegance every day when you make this beautiful abode your own. There's an impressive 1,437 sqft of living space with a bright and open-plan layout that invites you to rest and relax.
The owner's suite enjoys a private position, complete with an ensuite bath and an abundance of closet space. The two guest bedrooms are serviced by the hall bath.
When friends drop by, you can flow freely from the living room, into the dining room and the kitchen beyond. A breakfast nook set under a statement chandelier light.
Contact an agent
Home facts
- Year built:2025
- Listing ID #:25-11056
- Added:118 day(s) ago
- Updated:March 16, 2026 at 07:36 AM
Rooms and interior
- Bedrooms:3
- Total bathrooms:2
- Full bathrooms:2
- Flooring:Carpet
- Basement:Yes
- Basement Description:Crawl Space
- Living area:1,437 sq. ft.
Heating and cooling
- Heating:Forced Air, Furnace
Structure and exterior
- Roof:Composition
- Year built:2025
- Building area:1,437 sq. ft.
- Lot area:0.18 Acres
- Lot Features:Level
- Exterior Features:Covered Patio, Covered Porch, Lighting
- Foundation Description:Concrete Perimeter
Utilities
- Water:Public
- Sewer:Public Sewer
Finances and disclosures
- Price:$524,575
- Price per sq. ft.:$365.05
New listings near 8951 W Swather Ave
- New
$749,900Active4 beds 3 baths2,316 sq. ft.19652 N Silver Ln, Rathdrum, ID 83858
MLS# 26-2286Listed by: CENTURY 21 BEUTLER & ASSOCIATES
$469,000Pending3 beds 2 baths1,245 sq. ft.12139 N LENNON LN, Rathdrum, ID 83858
MLS# 26-1261Listed by: COLDWELL BANKER SCHNEIDMILLER REALTY- New
$525,000Active3 beds 2 baths1,582 sq. ft.7605 W Boekel RD, Rathdrum, ID 83858
MLS# 26-2282Listed by: PROFESSIONAL REALTY SERVICES IDAHO - New
$279,000Active0.33 Acres7918 W Twin Lakes RD, Rathdrum, ID 83858
MLS# 26-2226Listed by: SILVERCREEK REALTY GROUP, LLC
$750,000Pending4 beds 3 baths3,144 sq. ft.27330 N Timber Ridge RD, Rathdrum, ID 83858
MLS# 26-2220Listed by: NEXTHOME CORNERSTONE REALTY- New
$2,250,000Active11.04 Acres7395 W Nagel Rd, Rathdrum, ID 83858
MLS# 26-2212Listed by: BERKSHIRE HATHAWAY HOMESERVICES JACKLIN REAL ESTATE
$557,148Pending4 beds 3 baths3,278 sq. ft.6161 PELICAN LOOP, Rathdrum, ID 83858
MLS# 26-2169Listed by: COLDWELL BANKER SCHNEIDMILLER REALTY
$425,484Pending3 beds 2 baths1,416 sq. ft.6143 PELICAN LOOP, Rathdrum, ID 83858
MLS# 26-2171Listed by: COLDWELL BANKER SCHNEIDMILLER REALTY
$440,011Pending3 beds 2 baths1,407 sq. ft.6810 W Soldier Creek Ave, Rathdrum, ID 83858
MLS# 26-2180Listed by: CENTURY 21 BEUTLER & ASSOCIATES- New
$649,000Active4 beds 2 baths1,920 sq. ft.14429 N Arbor ST, Rathdrum, ID 83858
MLS# 26-2154Listed by: THE AGENCY COEUR D'ALENE