152 Woodbridge Lane, Beecher, IL 60401
Local realty services provided by:CENTURY 21 Circle
152 Woodbridge Lane,Beecher, IL 60401
$307,840
- 3 Beds
- 3 Baths
- 2,201 sq. ft.
- Single family
- Pending
Listed by: bill flemming
Office: homesmart connect llc.
MLS#:12492297
Source:MLSNI
Price summary
- Price:$307,840
- Price per sq. ft.:$139.86
About this home
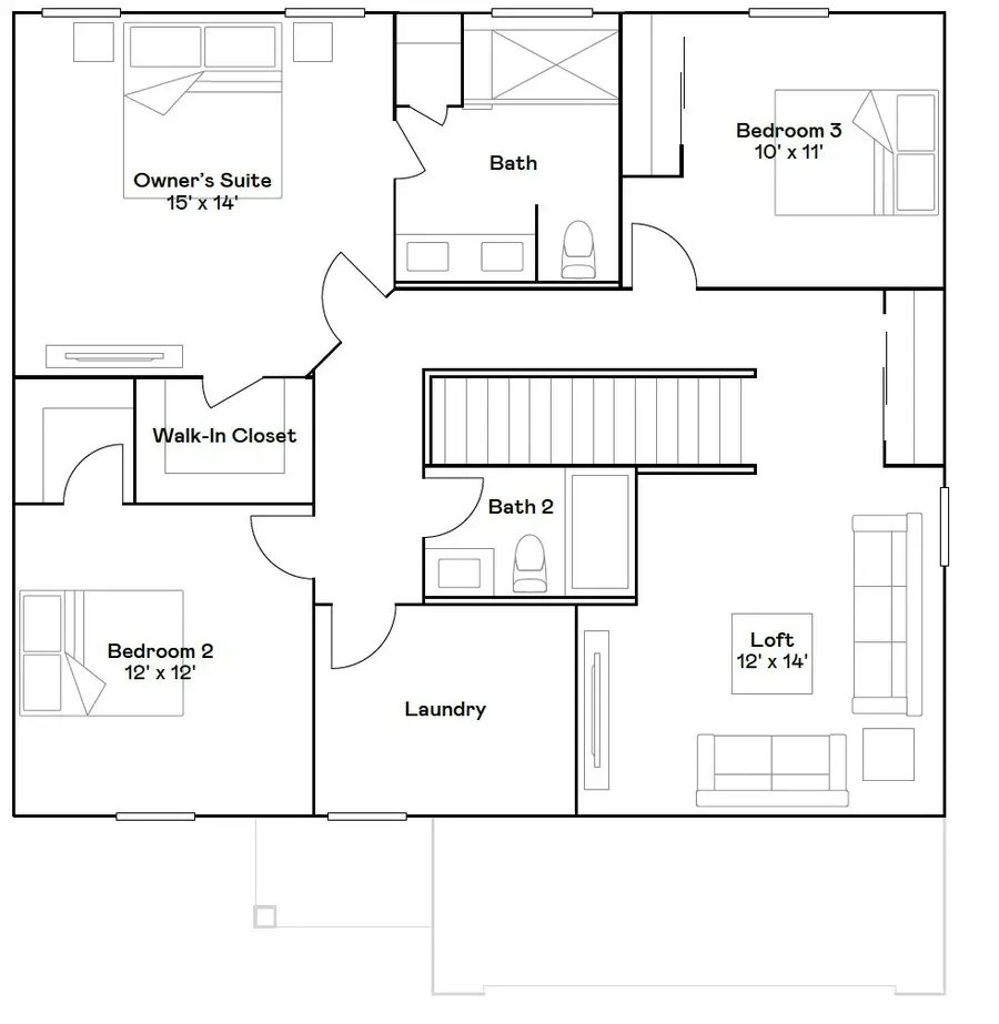
HOMESITE 37 Experience the Meadowlark model, a masterfully designed two-story home combining style and convenience. With three bedrooms, two bathrooms, and a powder room, this home offers the perfect space for modern living. The first floor features a bright, open-concept layout, with a spacious family room, accessible dining area, and an impressive kitchen. The kitchen includes a large island with beautiful countertops, ample cabinetry, stainless steel appliances, and a built-in pantry for added storage. Situated on the second floor, the owner's suite provides a peaceful haven, complete with a walk-in closet and a spa-inspired bathroom with double sinks, a deluxe shower, and high-end finishes. Two additional bedrooms share a full bathroom, and the practicality of a second-floor laundry room enhances the home's livability. The versatile loft and flex space offer endless possibilities for a home office, entertainment area, or extra living space to suit your needs. Throughout the home, thoughtful details like luxury vinyl plank flooring, quartz countertops, LED lighting, and decorative railings enhance both the aesthetic and functionality of every room. Exterior will be Bone color siding. (pic for reference ONLY). *Photos are not this actual home* "Hunter's Chase is a new community of single-family homes for sale in Beecher, IL, offering residents a peaceful lifestyle surrounded by open green spaces and scenic ponds. Enjoy outdoor activities and tranquil views right within your neighborhood. Families will appreciate the close proximity to local schools, making morning routines easier and school events more accessible. For those who love the outdoors, nearby nature preserves provide endless opportunities for hiking, exploring, and enjoying the natural beauty of the area. Convenience is key at Hunter's Chase, with easy access to downtown Beecher's shopping, dining, and community amenities just minutes away. Experience the perfect blend of peaceful living and everyday convenience at Hunter's Chase-a community designed to grow with you and your family.
Contact an agent
Home facts
- Year built:2025
- Listing ID #:12492297
- Added:65 day(s) ago
- Updated:December 13, 2025 at 09:28 PM
Rooms and interior
- Bedrooms:3
- Total bathrooms:3
- Full bathrooms:2
- Half bathrooms:1
- Living area:2,201 sq. ft.
Heating and cooling
- Cooling:Central Air
- Heating:Forced Air, Natural Gas
Structure and exterior
- Roof:Asphalt
- Year built:2025
- Building area:2,201 sq. ft.
Schools
- High school:Beecher High School
- Middle school:Beecher Junior High School
- Elementary school:Beecher Elementary School
Utilities
- Water:Public
- Sewer:Public Sewer
Finances and disclosures
- Price:$307,840
- Price per sq. ft.:$139.86
New listings near 152 Woodbridge Lane
- Open Sun, 1 to 3pmNew
$298,500Active4 beds 2 baths1,950 sq. ft.Address Withheld By Seller, Beecher, IL 60401
MLS# 12509841Listed by: VILLAGE REALTY, INC.
$329,450Pending3 beds 3 baths2,063 sq. ft.1630 Rolling Pass, Beecher, IL 60401
MLS# 12530053Listed by: HOMESMART CONNECT LLC- New
$319,900Active3 beds 4 baths1,900 sq. ft.286 Sunset Boulevard, Beecher, IL 60401
MLS# 12509464Listed by: DUARTE REALTY COMPANY - New
$306,990Active3 beds 2 baths1,455 sq. ft.1663 Sawgrass Lane, Beecher, IL 60401
MLS# 12527891Listed by: HOMESMART CONNECT LLC - New
$199,900Active2 beds 2 baths1,070 sq. ft.1397 Fox Hound Trail, Beecher, IL 60401
MLS# 12527061Listed by: MCCOLLY REAL ESTATE
$875,000Active4 beds 4 baths4,231 sq. ft.28525 S Yates Avenue, Beecher, IL 60401
MLS# 12523547Listed by: VILLAGE REALTY, INC.
$340,990Pending3 beds 3 baths2,063 sq. ft.162 Woodbridge Lane, Beecher, IL 60401
MLS# 12523096Listed by: HOMESMART CONNECT LLC
$40,000Active2 beds 1 baths31 Meadowlark Lane, Beecher, IL 60401
MLS# 12518123Listed by: WIRTZ REAL ESTATE GROUP INC.
$320,000Active2 beds 2 baths1,600 sq. ft.906 Lange Avenue, Beecher, IL 60401
MLS# 12514396Listed by: BERKSHIRE HATHAWAY HOMESERVICES SPECKMAN REALTY
$310,000Active2 beds 2 baths1,600 sq. ft.902 Lange Avenue, Beecher, IL 60401
MLS# 12514479Listed by: BERKSHIRE HATHAWAY HOMESERVICES SPECKMAN REALTY