1857 Diamond Drive, Elgin, IL 60124
Local realty services provided by:CENTURY 21 Broughton Team
1857 Diamond Drive,Elgin, IL 60124
$738,860
- 4 Beds
- 4 Baths
- 3,876 sq. ft.
- Single family
- Pending
Listed by: bill flemming
Office: homesmart connect llc.
MLS#:12599038
Source:MLSNI
Price summary
- Price:$738,860
- Price per sq. ft.:$190.62
- Monthly HOA dues:$41.67
About this home
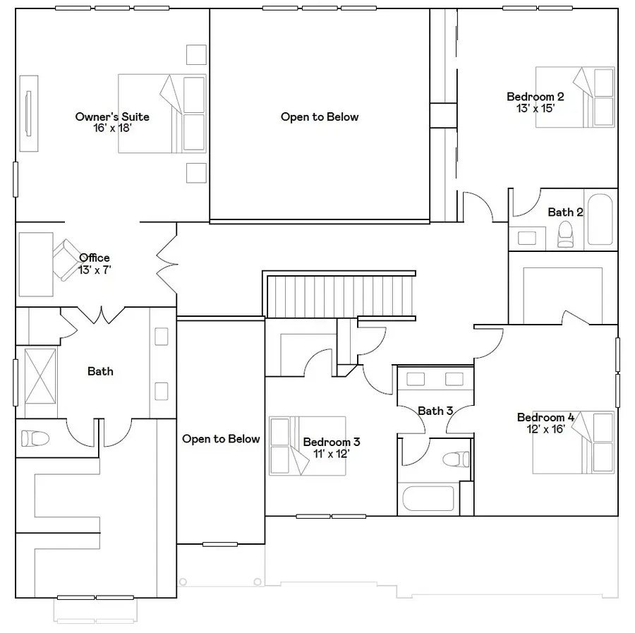
READY FOR APRIL DELIVERY!! Homesite #0257 This new two-story home is the community's largest floorplan. The first floor features a living and dining room at the front of the home, an open design among the family room, designer-select options, gourmet kitchen with GE Profile Double Oven, 36" cooktop, subway tile backsplash, soft-close cabinetry and drawers throughout and 36" vent hood, breakfast room, and a secluded study. Upstairs, three secondary bedrooms and an owner's suite with a home office and a giant walk-in closet provide tranquil havens for family members. Exterior will be James Hardie Cobble Stone color siding with Essex exterior color brick. (pic for reference ONLY) *Photos are not this actual home* Ponds of Stony Creek is a welcoming community of new single-family homes in Elgin, IL, offering the perfect blend of comfort, convenience, and outdoor fun. Designed with families in mind, this community boasts fantastic onsite amenities, including a splash park, tot lot, picnic area, and scenic multi-use trails that wind through natural surroundings. Just a short drive away, downtown Elgin offers even more to explore. Situated along the Fox River, it features charming historic architecture, diverse shops and restaurants, and the popular Elgin Riverwalk-a local favorite for leisurely strolls and riverside views. Enjoy year-round entertainment with festivals, events, and exciting attractions like the Grand Victoria Casino. At Ponds of Stony Creek, every day brings new opportunities for recreation, relaxation, and connection in a community you'll love to call home....
Contact an agent
Home facts
- Year built:2025
- Listing ID #:12599038
- Added:11 day(s) ago
- Updated:April 04, 2026 at 07:55 AM
Rooms and interior
- Bedrooms:4
- Total bathrooms:4
- Full bathrooms:4
- Rooms Total:11
- Dining Description:Breakfast Room
- Kitchen Description:Cooktop, Dishwasher, Disposal, Microwave, Range Hood, Stainless Steel Appliance(s)
- Basement:Yes
- Basement Description:Full, Unfinished
- Living area:3,876 sq. ft.
Heating and cooling
- Cooling:Central Air
- Heating:Forced Air, Natural Gas
- Central air:Yes
Structure and exterior
- Roof:Asphalt
- Year built:2025
- Building area:3,876 sq. ft.
- Levels:2 Story
Schools
- High school:St Charles North High School
- Middle school:Thompson Middle School
- Elementary school:Ferson Creek Elementary School
Utilities
- Water:Public
- Sewer:Public Sewer
Finances and disclosures
- Price:$738,860
- Price per sq. ft.:$190.62
Parking
- Total parking spaces:3
- Parking description:Asphalt, Attached Garage, Garage
- Garage:Yes
- Garage spaces:3
New listings near 1857 Diamond Drive
- Open Sat, 2 to 4pmNew
$1,050,000Active5 beds 3 baths4,256 sq. ft.3654 Old Bridge Lane, Elgin, IL 60124
MLS# 12603422Listed by: KELLER WILLIAMS INSPIRE - GENEVA - New
$480,000Active3 beds 3 baths2,522 sq. ft.3311 Lafayette Street, Elgin, IL 60123
MLS# 12609918Listed by: AMERICAN STAR REALTY - New
$305,000Active2 beds 3 baths1,568 sq. ft.422 Victoria Lane, Elgin, IL 60124
MLS# 12593930Listed by: JAMESON SOTHEBY'S INTL REALTY - New
$1,000,000Active4 beds 3 baths3,308 sq. ft.3059 Longcommon Parkway, Elgin, IL 60124
MLS# 12607270Listed by: ILLINOIS STAR, LTD - New
$319,900Active2 beds 3 baths1,756 sq. ft.3414 Cameron Drive, Elgin, IL 60123
MLS# 12602005Listed by: COMPASS - New
$310,000Active2 beds 3 baths1,330 sq. ft.3381 Cameron Drive, Elgin, IL 60124
MLS# 12607153Listed by: COMPASS - New
$299,000Active3 beds 2 baths1,820 sq. ft.268 Seneca Street, Elgin, IL 60120
MLS# 12609235Listed by: SUBURBAN LIFE REALTY, LTD. - Open Sat, 11am to 12pmNew
$449,000Active2 beds 3 baths2,100 sq. ft.1265 Falcon Ridge Drive, Elgin, IL 60124
MLS# 12608553Listed by: LPT REALTY - New
$105,000Active2 beds 2 baths975 sq. ft.801 N Mclean Boulevard #320, Elgin, IL 60123
MLS# 12609628Listed by: EXP REALTY - CHICAGO NORTH AVE - New
$116,900Active2 beds 2 baths975 sq. ft.801 N Mclean Boulevard #136, Elgin, IL 60123
MLS# 12608963Listed by: BERKSHIRE HATHAWAY HOMESERVICES STARCK REAL ESTATE