3613 Sandstone Circle, Elgin, IL 60124
Local realty services provided by:CENTURY 21 New Heritage
3613 Sandstone Circle,Elgin, IL 60124
$602,990
- 4 Beds
- 3 Baths
- 2,437 sq. ft.
- Single family
- Active
Listed by: bill flemming
Office: homesmart connect llc.
MLS#:12556062
Source:MLSNI
Price summary
- Price:$602,990
- Price per sq. ft.:$247.43
- Monthly HOA dues:$41.67
About this home
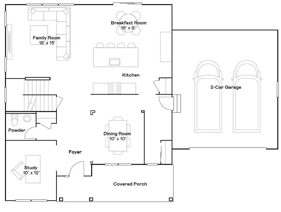
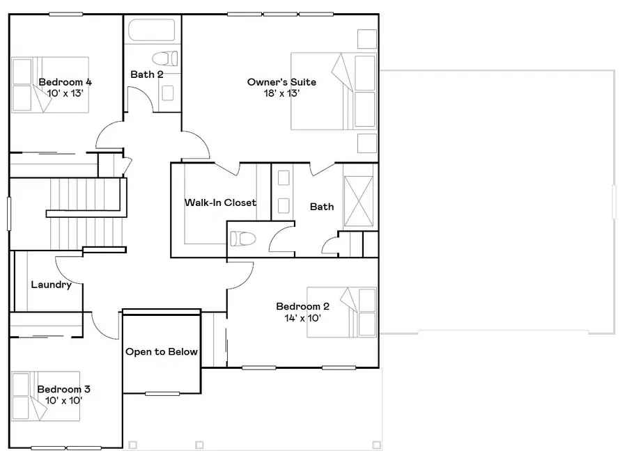
READY FOR MAY DELIVERY! Homesite #0231. Introducing the Auburn model-a thoughtfully crafted two-story home that combines timeless elegance with everyday practicality. This spacious residence features four well-appointed bedrooms, two full baths, and a convenient powder room-ideal for family living and hosting guests. A private study and formal dining room flank the welcoming foyer, offering versatile spaces for both work and special gatherings. At the heart of the home, the kitchen-with its oversized center island, premium cabinetry, and sleek countertops-flows effortlessly into the breakfast room and the adjacent family room, creating a seamless open-concept layout perfect for daily life and entertaining. Upstairs, the owner's suite provides a serene retreat, complete with a generous walk-in closet and a spacious en-suite bathroom. Three additional bedrooms share the level, along with a second-floor laundry room-adding layout flexibility and modern convenience. With its thoughtful floor plan-formal living and dining areas, a dedicated study, open yet distinct kitchen-family spaces, and a well-equipped upper level-the Auburn model offers a perfect balance of sophistication and functional design. It's a brilliant option for today's modern families. Exterior will be James Hardie Deep Ocean color siding with Manor House exterior color brick. (pic for reference ONLY) *Photos are not this actual home* This is a corner homesite. This community features an array of great amenities, including a splash park, tot lot, picnic area and meandering multi-use trails. Situated on the Fox River, downtown Elgin is filled with historic buildings, shops and restaurants for families to enjoy. Spend time along the Elgin Riverwalk, partake in thrilling games at Grand Victoria Casino and attend lively festivities and events throughout the year.
Contact an agent
Home facts
- Year built:2025
- Listing ID #:12556062
- Added:1 day(s) ago
- Updated:January 28, 2026 at 12:05 PM
Rooms and interior
- Bedrooms:4
- Total bathrooms:3
- Full bathrooms:2
- Half bathrooms:1
- Living area:2,437 sq. ft.
Heating and cooling
- Cooling:Central Air
- Heating:Forced Air, Natural Gas
Structure and exterior
- Roof:Asphalt
- Year built:2025
- Building area:2,437 sq. ft.
Schools
- High school:St Charles North High School
- Middle school:Thompson Middle School
- Elementary school:Ferson Creek Elementary School
Utilities
- Water:Public
- Sewer:Public Sewer
Finances and disclosures
- Price:$602,990
- Price per sq. ft.:$247.43
New listings near 3613 Sandstone Circle
- New
$199,500Active2 beds 1 baths1,100 sq. ft.304 Nautical Way #D, Elgin, IL 60123
MLS# 12555894Listed by: THE PINKNEY TEAM REALTY LLC - New
$85,000Active1 beds 1 baths750 sq. ft.801 N Mclean Boulevard #214, Elgin, IL 60123
MLS# 12549232Listed by: BERKSHIRE HATHAWAY HOMESERVICES STARCK REAL ESTATE - Open Sun, 11am to 2pmNew
$549,900Active3 beds 2 baths2,727 sq. ft.647 Tuscan Vw, Elgin, IL 60124
MLS# 12519886Listed by: CLINNIN ASSOCIATES, INC.
$475,000Pending2 beds 2 baths2,047 sq. ft.2545 Edgewater Drive, Elgin, IL 60124
MLS# 12530571Listed by: BAIRD & WARNER- Open Fri, 2 to 4pm
$634,254Pending3 beds 4 baths2,399 sq. ft.205 Steeple Bush Lane #10444, Schaumburg, IL 60193
MLS# 12554738Listed by: TWIN VINES REAL ESTATE SVCS - Open Fri, 2 to 4pmNew
$569,371Active3 beds 4 baths2,219 sq. ft.211 Steeple Bush Lane #10343, Schaumburg, IL 60193
MLS# 12554706Listed by: TWIN VINES REAL ESTATE SVCS - New
$109,600Active4 beds 1 baths251 Bartlett Place, Elgin, IL 60120
MLS# 12554011Listed by: GLOBAL RUBEN'S TEAM REALTY - New
$449,900Active3 beds 3 baths1,872 sq. ft.218 Middleton Court, Elgin, IL 60124
MLS# 12553759Listed by: ONE SOURCE REALTY - New
$355,000Active4 beds 2 baths483 Barrett Street, Elgin, IL 60120
MLS# 12552702Listed by: AVENUE PROPERTIES CHICAGO