631 Rustic Way, Hinckley, IL 60520
Local realty services provided by:CENTURY 21 Circle
631 Rustic Way,Hinckley, IL 60520
$412,850
- 3 Beds
- 2 Baths
- 1,866 sq. ft.
- Single family
- Pending
Listed by: bill flemming
Office: homesmart connect llc.
MLS#:12445428
Source:MLSNI
Price summary
- Price:$412,850
- Price per sq. ft.:$221.25
- Monthly HOA dues:$43.75
About this home
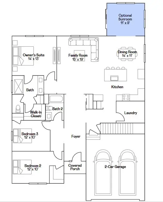
READY FOR MARCH DELIVERY!!! Homesite #0067 Step into the Siena, a thoughtfully designed single-story home that blends comfort, efficiency, and modern style. This layout features three bedrooms and two bathrooms in an open-concept design that creates a seamless flow between the family room, dining area, and kitchen. At the center of it all, the kitchen offers a spacious island, stainless steel appliances, and generous cabinetry-perfect for both daily living and casual entertaining. Luxury vinyl plank flooring extends throughout the main living areas, offering both durability and a refined look. The private owner's suite serves as a quiet retreat, complete with an expansive walk-in closet and a spa-like en-suite bathroom. Two additional bedrooms are situated near a shared hallway bath, providing flexibility for guests, family, or a home office. A two-car garage and a conveniently located laundry room add to the home's functional appeal. The Siena delivers modern living in a streamlined, practical layout designed to suit a variety of lifestyles. *Photos are not this actual home* Royal Estates is a brand-new community of single-family homes for sale in Hinckley, IL, offering residents a quiet, scenic setting with easy access to nature, recreation, and enriching experiences. Outdoor lovers will appreciate close proximity to Shabbona Lake State Park, a 105-acre haven for fishing, boating, hiking, and wildlife watching. Its scenic trails and serene landscapes make it an ideal destination for both adventure and relaxation. For even more outdoor enjoyment, the Great Western Trail offers an 18.5-mile path perfect for hiking, biking, or a peaceful walk surrounded by lush greenery and abundant wildlife-a refreshing escape from the everyday. Just a short drive away, Northern Illinois University (NIU) brings a vibrant energy to the region with its cultural events, athletic programs, art galleries, and concerts. As a hub of innovation and education, NIU also offers world-class academics and research opportunities. At Royal Estates, you'll find the perfect blend of quiet small-town charm, access to outdoor recreation, and connection to world-class resources-making it a community where you can truly thrive....
Contact an agent
Home facts
- Year built:2025
- Listing ID #:12445428
- Added:214 day(s) ago
- Updated:March 16, 2026 at 07:49 AM
Rooms and interior
- Bedrooms:3
- Total bathrooms:2
- Full bathrooms:2
- Rooms Total:6
- Basement:Yes
- Basement Description:Full, Unfinished
- Living area:1,866 sq. ft.
Heating and cooling
- Cooling:Central Air
- Heating:Forced Air, Natural Gas
- Central air:Yes
Structure and exterior
- Year built:2025
- Building area:1,866 sq. ft.
- Levels:1 Story
Schools
- High school:Hinckley-Big Rock High School
- Middle school:Hinckley-Big Rock Middle School
- Elementary school:Hinckley Big Rock Elementary Sch
Utilities
- Water:Public
- Sewer:Public Sewer
Finances and disclosures
- Price:$412,850
- Price per sq. ft.:$221.25
Parking
- Total parking spaces:3
- Parking description:Detached Garage, Garage
- Garage:Yes
- Garage spaces:3
New listings near 631 Rustic Way
- New
$349,500Active5 beds 2 baths171 N Sycamore Street, Hinckley, IL 60520
MLS# 12591659Listed by: LEGACY PROPERTIES
$325,000Pending4 beds 3 baths2,830 sq. ft.109 E Oak Knoll Drive, Hinckley, IL 60520
MLS# 12590037Listed by: JOHN GREENE, REALTOR
$380,000Pending4 beds 3 baths2,382 sq. ft.561 N Oak Street, Hinckley, IL 60520
MLS# 12589910Listed by: HOMESMART CONNECT LLC
$438,855Pending4 beds 3 baths2,619 sq. ft.620 Rustic Way, Hinckley, IL 60520
MLS# 12583776Listed by: HOMESMART CONNECT LLC
$399,530Pending4 beds 3 baths2,203 sq. ft.551 N Oak Street, Hinckley, IL 60520
MLS# 12582734Listed by: HOMESMART CONNECT LLC
$393,790Pending4 beds 3 baths2,382 sq. ft.230 Christensen Street, Hinckley, IL 60520
MLS# 12582738Listed by: HOMESMART CONNECT LLC
$410,000Pending3 beds 2 baths1,965 sq. ft.560 Rustic Way, Hinckley, IL 60520
MLS# 12581185Listed by: HOMESMART CONNECT LLC
$425,000Pending4 beds 2 baths2,000 sq. ft.411 Meadow Lane, Hinckley, IL 60520
MLS# 12574955Listed by: COLDWELL BANKER REALTY
$334,900Pending4 beds 3 baths2,100 sq. ft.250 N View Street, Hinckley, IL 60520
MLS# 12573758Listed by: BERKSHIRE HATHAWAY HOMESERVICES STARCK REAL ESTATE
$875,000Active3 beds 2 baths1,881 sq. ft.17396 Scott Road, Hinckley, IL 60520
MLS# 12560134Listed by: CENTURY 21 INTEGRA