12197 Dodwell Street, Huntley, IL 60142
Local realty services provided by:CENTURY 21 Broughton Team
12197 Dodwell Street,Huntley, IL 60142
$359,990
- 3 Beds
- 3 Baths
- 1,767 sq. ft.
- Townhouse
- Pending
Listed by: bill flemming
Office: homesmart connect llc.
MLS#:12560387
Source:MLSNI
Price summary
- Price:$359,990
- Price per sq. ft.:$203.73
- Monthly HOA dues:$230
About this home
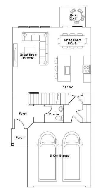
AVAILABLE FOR MARCH DELIVERY! Homesite #5604 Introducing the Marianne, a newly designed two-story townhome that seamlessly blends comfort and elegance. This model offers three spacious bedrooms, two full baths, a half bath, and a contemporary open-concept living space, complete with a two-car garage for added convenience. The first floor features the great room, the focal point of the home, effortlessly flowing into the dining area and the chef-inspired kitchen. The kitchen boasts a magnificent island with a breakfast bar, 42" cabinets, polished quartz countertops, and top-of-the-line stainless steel appliances. Luxury vinyl plank flooring spans the main floor, while sliding glass doors open to the patio, ideal for outdoor relaxation. On the second floor, you'll find two generously sized secondary bedrooms, along with the exquisite owner's suite-a true sanctuary to unwind after a busy day. This serene retreat includes a generous walk-in closet and a spa-inspired bath, complete with a deluxe shower for the ultimate relaxation experience. Complete with a convenient upstairs laundry room, the Marianne combines thoughtful design and modern amenities, offering both comfort and style in every corner. *Photos are not this actual home* Regency Square offers an exciting opportunity to own a new home in the heart of Huntley, just minutes from its vibrant and bustling downtown. Designed for a variety of lifestyles, this thoughtfully planned community will feature a three-acre park, dog park, and a scenic lake, all providing residents with a peaceful connection to nature and plenty of space to relax and recharge. Just around the corner, Deicke Park offers expansive green space ideal for picnics, sports, and outdoor fun. With walking trails, a serene pond, and playgrounds for all ages, it's the perfect local retreat for families and individuals alike. Downtown Huntley enhances the lifestyle with its charming small-town atmosphere, tree-lined streets, and a wide variety of boutiques, cafes, and restaurants. Whether you're exploring local artisan shops or enjoying a cozy meal at a favorite eatery, there's something to discover around every corner. For those seeking fun and adventure, the Stingray Bay Aquatic Center is just minutes away. Dive into excitement with a massive pool, thrilling water slides, and a splash park perfect for younger kids-offering a mix of relaxation and recreation for all ages. At Regency Square, you're not just finding a home-you're becoming part of a community rich in amenities, charm, and everyday convenience....
Contact an agent
Home facts
- Year built:2025
- Listing ID #:12560387
- Added:59 day(s) ago
- Updated:April 04, 2026 at 07:55 AM
Rooms and interior
- Bedrooms:3
- Total bathrooms:3
- Full bathrooms:2
- Half bathrooms:1
- Rooms Total:6
- Kitchen Description:Dishwasher, Disposal, Microwave, Range, Stainless Steel Appliance(s)
- Basement:Yes
- Living area:1,767 sq. ft.
Heating and cooling
- Cooling:Central Air
- Heating:Forced Air, Natural Gas
- Central air:Yes
Structure and exterior
- Roof:Asphalt
- Year built:2025
- Building area:1,767 sq. ft.
- Lot Features:Common Grounds
Schools
- High school:Huntley High School
- Middle school:Heineman Middle School
- Elementary school:Leggee Elementary School
Utilities
- Water:Public
- Sewer:Public Sewer
Finances and disclosures
- Price:$359,990
- Price per sq. ft.:$203.73
Parking
- Total parking spaces:2
- Parking description:Asphalt, Attached Garage, Garage
- Garage:Yes
- Garage spaces:2
New listings near 12197 Dodwell Street
$878,450Pending4 beds 4 baths3,145 sq. ft.10742 Chadsey Road, Huntley, IL 60142
MLS# 12609561Listed by: LITTLE REALTY
$789,250Pending4 beds 3 baths3,145 sq. ft.10752 Chadsey Road, Huntley, IL 60142
MLS# 12609587Listed by: LITTLE REALTY- New
$310,000Active3 beds 3 baths1,621 sq. ft.10842 Timer Drive, Huntley, IL 60142
MLS# 12608148Listed by: CENTURY 21 NEW HERITAGE - New
$329,900Active2 beds 2 baths1,378 sq. ft.12845 Coventry Lane, Huntley, IL 60142
MLS# 12609076Listed by: CENTURY 21 NEW HERITAGE - Open Sat, 10am to 12pmNew
$419,900Active2 beds 2 baths1,882 sq. ft.12036 Sweetwater Lane, Huntley, IL 60142
MLS# 12607137Listed by: LEGACY PROPERTIES, A SARAH LEONARD COMPANY, LLC - Open Sat, 11am to 2pmNew
$479,000Active4 beds 3 baths2,300 sq. ft.9934 Bedford Drive, Huntley, IL 60142
MLS# 12606983Listed by: RE/MAX PREMIER - New
$65,000Active1.01 Acres10216 Ellery Lane, Huntley, IL 60142
MLS# 12607797Listed by: BROKEROCITY
$521,300Pending3 beds 2 baths1,850 sq. ft.lot 36 Ryann Road, Huntley, IL 60142
MLS# 12607459Listed by: PREMIER LIVING PROPERTIES- Open Sat, 11am to 1pmNew
$349,900Active2 beds 2 baths1,296 sq. ft.12764 Kishwaukee Lane, Huntley, IL 60142
MLS# 12591529Listed by: HUNTLEY REALTY - Open Sat, 11am to 1pmNew
$269,900Active1 beds 2 baths1,031 sq. ft.12126 White Tail Lane, Huntley, IL 60142
MLS# 12593217Listed by: HUNTLEY REALTY LLC