lot 36 Ryann Road, Huntley, IL 60142
Local realty services provided by:CENTURY 21 Circle
lot 36 Ryann Road,Huntley, IL 60142
$521,300
- 3 Beds
- 2 Baths
- 1,850 sq. ft.
- Single family
- Pending
Listed by: tamara o'connor
Office: premier living properties
MLS#:12607459
Source:MLSNI
Price summary
- Price:$521,300
- Price per sq. ft.:$281.78
- Monthly HOA dues:$175
About this home
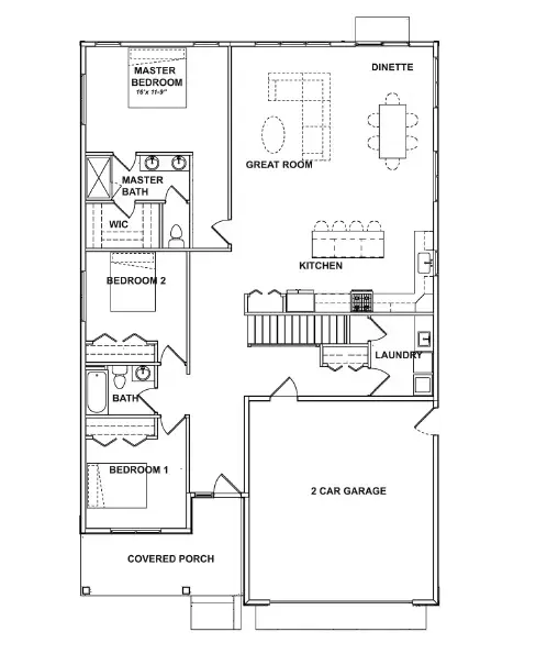
Fantastic New Construction in Huntley has model ready NOW to view! New build deliveries available in 4-6 months from contract! Welcome to Stillwell Grove-a charming enclave of only 41 detached homesites- with no neighbors behind you- just open prairie space, offering the perfect blend of privacy and community. This featured ranch, the Cedar plan offers 1850 sq ft of one-level living with a FULL BASEMENT and open staircase design, a sun-filled GREAT ROOM CONCEPT with seamless flow between the ISLAND kitchen, living, and dining areas, three bedrooms and two full baths including a relaxing primary suite with walk-in closet, dual sinks, and walk-in shower and private water closet, and a convenient AND SPACIOUS Mudroom/laundry room off the back hall. An attached 2-car garage, central air, and a host of upscale finishes are all included as standards. This neighborhood is not age-restricted and provides the ease of lawn care and snow removal included-true low-maintenance living at its best! Choose from thoughtfully designed ranches and 2-story homes, each featuring inviting covered FRONT PORCHES that set the stage for warm welcomes and outdoor relaxation. Serviced by the highly rated Huntley School District 158 and right near the booming Rt. 47 corridor-putting shopping, dining, and conveniences just steps from your door. TAKING CONTRACTS/LOT RESERVATIONS NOW-be a part of Huntley's newest community: Stillwell Grove! Location notes: I-90 to Route 47 North to Powers Rd (By the Culvers) East to Samantha Lane to Development at corner of Samantha and Ryann...
Contact an agent
Home facts
- Year built:2026
- Listing ID #:12607459
- Added:2 day(s) ago
- Updated:April 04, 2026 at 07:55 AM
Rooms and interior
- Bedrooms:3
- Total bathrooms:2
- Full bathrooms:2
- Rooms Total:6
- Dining Description:Combined With Living Room
- Bathrooms Description:Double Sinks
- Kitchen Description:Dishwasher, Disposal, Microwave, Range
- Basement:Yes
- Basement Description:Full, Unfinished
- Living area:1,850 sq. ft.
Heating and cooling
- Cooling:Central Air
- Heating:Forced Air, Natural Gas
- Central air:Yes
Structure and exterior
- Roof:Asphalt
- Year built:2026
- Building area:1,850 sq. ft.
- Lot area:0.33 Acres
- Architectural Style:Ranch
- Foundation Description:Concrete Perimeter
- Levels:1 Story
Schools
- High school:Huntley High School
- Middle school:Heineman Middle School
- Elementary school:Mackeben Elementary School
Utilities
- Water:Public
- Sewer:Public Sewer
Finances and disclosures
- Price:$521,300
- Price per sq. ft.:$281.78
Parking
- Total parking spaces:2
- Parking description:Asphalt, Attached Garage, Garage
- Garage:Yes
- Garage spaces:2
New listings near lot 36 Ryann Road
$878,450Pending4 beds 4 baths3,145 sq. ft.10742 Chadsey Road, Huntley, IL 60142
MLS# 12609561Listed by: LITTLE REALTY
$789,250Pending4 beds 3 baths3,145 sq. ft.10752 Chadsey Road, Huntley, IL 60142
MLS# 12609587Listed by: LITTLE REALTY- New
$310,000Active3 beds 3 baths1,621 sq. ft.10842 Timer Drive, Huntley, IL 60142
MLS# 12608148Listed by: CENTURY 21 NEW HERITAGE - New
$329,900Active2 beds 2 baths1,378 sq. ft.12845 Coventry Lane, Huntley, IL 60142
MLS# 12609076Listed by: CENTURY 21 NEW HERITAGE - Open Sat, 10am to 12pmNew
$419,900Active2 beds 2 baths1,882 sq. ft.12036 Sweetwater Lane, Huntley, IL 60142
MLS# 12607137Listed by: LEGACY PROPERTIES, A SARAH LEONARD COMPANY, LLC - Open Sat, 11am to 2pmNew
$479,000Active4 beds 3 baths2,300 sq. ft.9934 Bedford Drive, Huntley, IL 60142
MLS# 12606983Listed by: RE/MAX PREMIER - New
$65,000Active1.01 Acres10216 Ellery Lane, Huntley, IL 60142
MLS# 12607797Listed by: BROKEROCITY - Open Sat, 11am to 1pmNew
$349,900Active2 beds 2 baths1,296 sq. ft.12764 Kishwaukee Lane, Huntley, IL 60142
MLS# 12591529Listed by: HUNTLEY REALTY - Open Sat, 11am to 1pmNew
$269,900Active1 beds 2 baths1,031 sq. ft.12126 White Tail Lane, Huntley, IL 60142
MLS# 12593217Listed by: HUNTLEY REALTY LLC