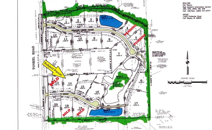
5631 Rolling Run Court, Leo, IN 46765
Local realty services provided by:CENTURY 21 Affiliated
Listed by: ken steuryCell: 260-417-5777
Office: coldwell banker real estate group
MLS#:202426190
Source:Indiana Regional MLS
Price summary
- Price:$170,000
About this home
WHISPER CREEK: Your Dream Home Awaits. Welcome to Whisper Creek, a micro community slated to be the epitome of luxury living nestled in a prime location that combines natural beauty, top-tier lot sizes, and an unrivaled “niche” in the community. This new residential development offers a unique blend of future home elegance and tranquility, making it the perfect place to call home. It is ideally situated in one of the most sought-after areas - Tonkel Road’s north corridor; providing residents with easy access to the best that the region has to offer. We believe our luxury homes will be meticulously designed to blend seamlessly with the natural surroundings while offering the latest in modern conveniences and high-end finishes. Because we understand the importance of space and privacy, our generous lots are approximately one acre or larger in size, and provide you with ample room to create your own private oasis. For those who require additional space for hobbies, work, or storage, Whisper Creek offers the unique advantage of approved outbuildings. Whether you need a workshop or extra storage for RV’s, boats, toys, etc., our flexible building guidelines allow you to create the perfect space to meet your needs. These outbuildings will be designed to compliment the architecture of your home and blend harmoniously with the community's aesthetic. The development is surrounded by lush tree-lines on its perimeter, offering a peaceful retreat from the hustle and bustle of city life, while still being close to major employers and highways. Allow us to assist and connect you with respected premier builders for your next beautiful home project offering your types of desirable amenities, too choosing the right floor plan, and finally choosing a builder in your budget. Embrace a lifestyle of elegance and tranquility at Whisper Creek - Your dream home awaits.
Contact an agent
Home facts
- Listing ID #:202426190
- Added:516 day(s) ago
- Updated:December 08, 2025 at 03:59 PM
Structure and exterior
- Lot area:0.93 Acres
Schools
- High school:Leo
- Middle school:Leo
- Elementary school:Cedarville
Utilities
- Water:Private, Well
- Sewer:City
Finances and disclosures
- Price:$170,000
- Tax amount:$25
New listings near 5631 Rolling Run Court
- New
$949,900Active5 beds 6 baths4,699 sq. ft.17727 Castlefeane Court, Leo, IN 46765
MLS# 202548817Listed by: ENCORE SOTHEBY'S INTERNATIONAL REALTY - Open Sun, 1 to 4pmNew
$289,900Active4 beds 2 baths2,096 sq. ft.10510 Walnut Street, Leo, IN 46765
MLS# 202548429Listed by: AMERICAN DREAM TEAM REAL ESTATE BROKERS - Open Sun, 1 to 4pmNew
$774,900Active3 beds 3 baths2,787 sq. ft.10809 Conrad Creek Court, Leo, IN 46765
MLS# 202548273Listed by: CENTURY 21 BRADLEY REALTY, INC
$128,700Active0.48 Acres15526 Makarios Pass, Leo, IN 46765
MLS# 202547190Listed by: CENTURY 21 BRADLEY REALTY, INC
$131,150Active0.31 Acres15354 Makarios Pass, Leo, IN 46765
MLS# 202547191Listed by: CENTURY 21 BRADLEY REALTY, INC
$134,900Active0.36 Acres15430 Makarios Pass, Leo, IN 46765
MLS# 202547192Listed by: CENTURY 21 BRADLEY REALTY, INC
$134,900Active0.34 Acres15535 Makarios Pass, Leo, IN 46765
MLS# 202547193Listed by: CENTURY 21 BRADLEY REALTY, INC
$149,900Active0.29 Acres15395 Makarios Pass, Leo, IN 46765
MLS# 202547194Listed by: CENTURY 21 BRADLEY REALTY, INC
$149,900Active0.29 Acres15373 Makarios Pass, Leo, IN 46765
MLS# 202547195Listed by: CENTURY 21 BRADLEY REALTY, INC- Open Sun, 1 to 4pm
$159,900Active0.45 Acres10802 Conrad Creek Court, Leo, IN 46765
MLS# 202547196Listed by: CENTURY 21 BRADLEY REALTY, INC