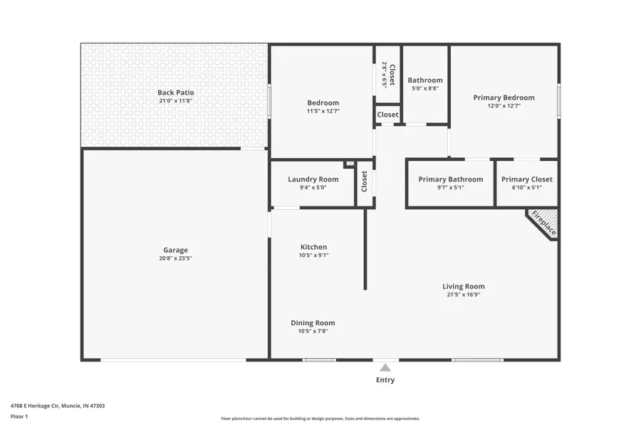
4708 E Heritage Circle, Muncie, IN 47303
Local realty services provided by:CENTURY 21 Circle
Listed by: cortney feltonCell: 765-748-6334
Office: nexthome elite real estate
MLS#:202549383
Source:Indiana Regional MLS
Price summary
- Price:$155,000
- Price per sq. ft.:$130.47
- Monthly HOA dues:$165
About this home
Enjoy low maintenance living in the desirable 55+ Village East Condominium Community, known for its affordable HOA fees, convenient location, and high demand. This very well maintained 2 bedroom, 2 full bathroom condo offers a functional layout with an ensuite primary bathroom and walk in closet. The spacious living room features a cozy gas log fireplace, creating a warm and inviting atmosphere. The kitchen offers a dining room area and newer appliances, including a gas range, and all appliances remain with the home. A separate laundry and utility room is conveniently located just off the kitchen, with washer and dryer included in the sale. A private back patio offers a quiet space to enjoy the outdoors. The oversized two car attached garage provides excellent room for vehicles and additional storage. Village East is located just off the Muncie Bypass on the city's east side, offering a peaceful, rural style setting while still being only minutes from shopping, dining, and everyday conveniences. The monthly HOA fee of $165 includes most exterior maintenance, trash removal, and snow removal. A one time $500 new owner fee is due to the HOA at closing. Annual master insurance is approximately $560 per year, billed in two installments due in March and September....
Contact an agent
Home facts
- Year built:1997
- Listing ID #:202549383
- Added:104 day(s) ago
- Updated:April 03, 2026 at 07:55 AM
Rooms and interior
- Bedrooms:2
- Total bathrooms:2
- Full bathrooms:2
- Rooms Total:4
- Flooring:Carpet, Laminate, Tile, Vinyl
- Dining Description:Main Level
- Kitchen Description:Dishwasher, Eat-In Kitchen, On Main Level, Range-Gas, Refrigerator
- Basement Description:Slab
- Living area:1,188 sq. ft.
Heating and cooling
- Cooling:Central Air
- Heating:Forced Air, Gas
Structure and exterior
- Roof:Asphalt, Dimensional Shingles
- Year built:1997
- Building area:1,188 sq. ft.
- Lot Features:Corner, Level
- Architectural Style:One Story
- Construction Materials:Brick
- Exterior Features:Landscaped, Patio Open, Porch Covered
- Levels:1 Story
Schools
- High school:Central
- Middle school:Southside
- Elementary school:Grissom
Utilities
- Water:City
- Sewer:City
Finances and disclosures
- Price:$155,000
- Price per sq. ft.:$130.47
- Tax amount:$1,293
Features and amenities
- Laundry features:Dryer Hook Up Electric, Main Floor Laundry, Washer Hook-Up
- Amenities:Attic Pull Down Stairs, Attic Storage, Cable Ready, Ceiling Fan(s), Closet(s) Walk-in, Countertops-Laminate, Double Pane Windows, Garage Door Opener, Insulated Doors, Six Panel Doors, Storm Doors
Parking
- Parking description:Attached, Concrete Driveway, Off Street Parking
- Garage spaces:2
New listings near 4708 E Heritage Circle
- New
$184,900Active2 beds 2 baths1,304 sq. ft.3911 N Lakeside Drive, Muncie, IN 47304
MLS# 202611276Listed by: NEXTHOME ELITE REAL ESTATE - New
$359,900Active3 beds 2 baths2,086 sq. ft.8302 W Ashford Lane, Muncie, IN 47304
MLS# 22092832Listed by: NEXTHOME ELITE REAL ESTATE - New
$266,900Active4 beds 2 baths1,995 sq. ft.8801 W Eucalyptus Avenue, Muncie, IN 47304
MLS# 202611216Listed by: WITH THE KEYS REALTY - New
$140,000Active3 beds 1 baths1,032 sq. ft.2016 S Shipley Street, Muncie, IN 47302
MLS# 22092535Listed by: RE/MAX REAL ESTATE SOLUTIONS - New
$299,999Active3 beds 2 baths2,821 sq. ft.4110 W Squire Court, Muncie, IN 47304
MLS# 22087706Listed by: SHOUSE REALTY GROUP LLC - New
$89,900Active3 beds 1 baths1,152 sq. ft.2205 S Vine Street, Muncie, IN 47302
MLS# 202611089Listed by: CENTURY 21 BRADLEY REALTY, INC - New
$10,000Active0.31 Acres925 N Central Avenue, Muncie, IN 47303
MLS# 22092897Listed by: RE/MAX REAL ESTATE SOLUTIONS - New
$5,000Active0.15 Acres900 Blk N Central Avenue, Muncie, IN 47303
MLS# 22092906Listed by: RE/MAX REAL ESTATE SOLUTIONS - New
$749,995Active6 beds 4 baths12,892 sq. ft.825 E Washington Street, Muncie, IN 47305
MLS# 22090112Listed by: COMPASS INDIANA, LLC - New
$184,000Active3 beds 3 baths1,632 sq. ft.1217 S Helen Drive, Muncie, IN 47302
MLS# 202611045Listed by: RE/MAX REAL ESTATE GROUPS