18625 158 Th Street, Basehor, KS 66007
Local realty services provided by:CENTURY 21 Team Elite
18625 158 Th Street,Basehor, KS 66007
$2,800,000
- 0 Acres
- Lots / Land
- Active
Listed by: krishna chinnam
Office: keller williams realty partners inc.
MLS#:2603848
Source:Bay East, CCAR, bridgeMLS
Price summary
- Price:$2,800,000
About this home
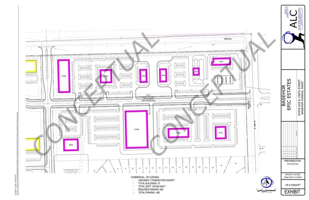
Multiple listings on-site. This listing is for the highlighted section of the plan only.
Outstanding 21.86± acre commercial development opportunity at 18625 168th Street, Basehor, KS 66007. This offering represents the highlighted commercial portion of the master plan and is positioned to become a cornerstone retail and business destination within one of Basehor’s fastest-growing corridors.
Prime Visibility & Positioning
Located directly across from the new Fareway Grocery Store, this tract benefits from strong daily traffic counts and built-in consumer activity. Immediate proximity to Basehor-Linwood schools further enhances daytime population and long-term retail demand.
Infrastructure in Place
• Water mains along north and east property lines
• Sewer extended approximately halfway into the site
• Utilities available on or immediately adjacent
• Reduced development timeline and lower upfront capital costs
Scale & Flexibility
One of the largest remaining commercially zoned tracts along the Hwy 24/40 corridor, offering the rare opportunity to design a cohesive retail center, mixed commercial campus, grocery shadow center, medical plaza, or large-format retail development.
Regional Growth Advantage
Strategically positioned within minutes of the Legends area and the greater Kansas City metro, the site captures both regional traffic and strong local rooftops. As residential growth accelerates in Basehor, this property stands to serve as a primary commercial hub for the community.
Development Ready
Preliminary site concepts have been prepared, allowing developers to move efficiently toward approvals and vertical construction.
Investment Highlights
• 21.86± acres – Commercial zoning
• Direct frontage on paved, public-maintained roads
• High-visibility corridor location
• Adjacent to new grocery anchor
• Located within an expanding residential growth market
A rare large-scale commercial opportunity with infrastructure advantages.
Contact an agent
Home facts
- Listing ID #:2603848
- Added:8 day(s) ago
- Updated:March 05, 2026 at 03:22 PM
Structure and exterior
- Lot Features:City Limits
Utilities
- Water:Rural
- Sewer:Septic Tank
Finances and disclosures
- Price:$2,800,000
New listings near 18625 158 Th Street
$229,000Active2 beds 1 baths864 sq. ft.2409 N 155th Street, Basehor, KS 66007
MLS# 2602822Listed by: PLATINUM REALTY LLC- New
$679,900Active4 beds 3 baths2,386 sq. ft.4525 145th Terrace, Basehor, KS 66007
MLS# 2604628Listed by: WEICHERT, REALTORS WELCH & CO. - Open Sun, 2 to 4pmNew
$475,000Active3 beds 4 baths4,226 sq. ft.15424 Poplar Street, Basehor, KS 66007
MLS# 2604266Listed by: THE REAL ESTATE DEPOT LLC - New
$509,000Active3 beds 3 baths2,216 sq. ft.5013 N 145th Street, Basehor, KS 66007
MLS# 2604239Listed by: WEICHERT, REALTORS WELCH & CO. - New
$924,900Active4 beds 3 baths3,690 sq. ft.20322 166th Street, Basehor, KS 66007
MLS# 2604103Listed by: REILLY REAL ESTATE LLC - Open Sat, 2pm to 4am
$650,000Active4 beds 4 baths3,392 sq. ft.4311 N 141st Place, Basehor, KS 66007
MLS# 2602516Listed by: COLDWELL BANKER REGAN REALTORS - New
$6,000,000Active0 Acres18625 158th. Street, Basehor, KS 66007
MLS# 2604271Listed by: KELLER WILLIAMS REALTY PARTNERS INC.
$387,090Pending3 beds 2 baths1,690 sq. ft.1390 N 162nd Terrace, Basehor, KS 66007
MLS# 2604197Listed by: REECENICHOLS - LEES SUMMIT
$449,000Pending4 beds 3 baths2,320 sq. ft.1486 N 162nd Court, Basehor, KS 66007
MLS# 2598676Listed by: REAL BROKER, LLC- New
$2,000,000Active0 Acres18625 158th Street, Basehor, KS 66007
MLS# 2603841Listed by: KELLER WILLIAMS REALTY PARTNERS INC.