18625 158th. Street, Basehor, KS 66007
Local realty services provided by:CENTURY 21 Crossroads
18625 158th. Street,Basehor, KS 66007
$6,000,000
- 110 Acres
- Lots / Land
- Active
Listed by: krishna chinnam
Office: keller williams realty partners inc.
MLS#:2604271
Source:MOKS_HL
Price summary
- Price:$6,000,000
About this home
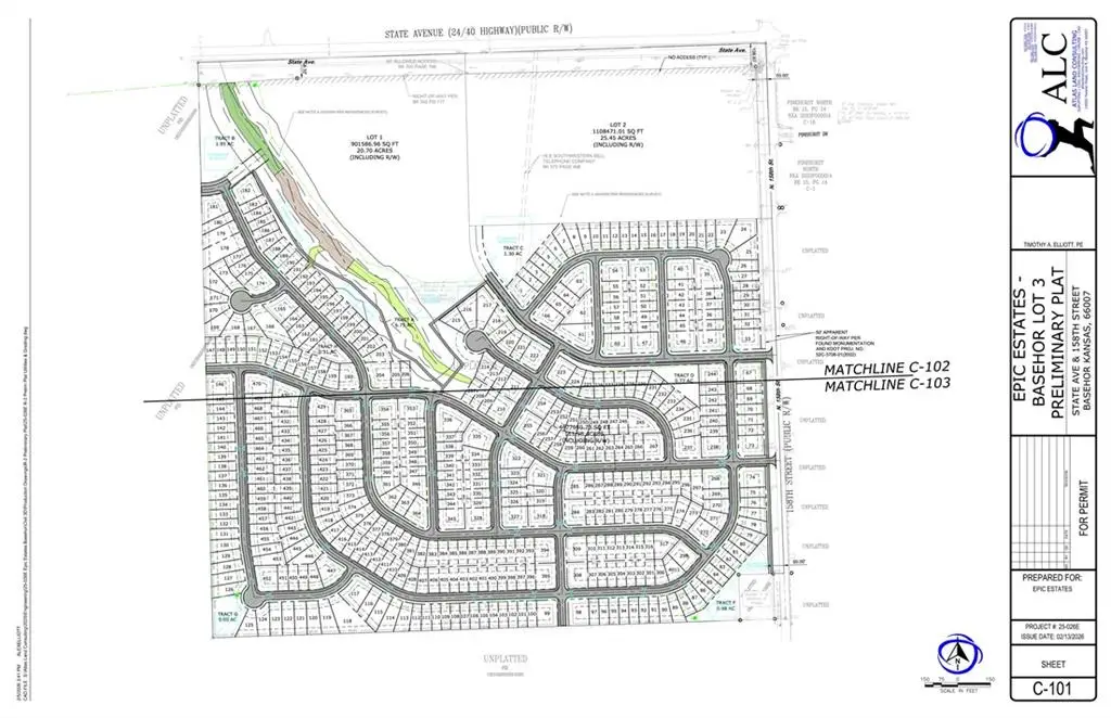
Exceptional opportunity to acquire approximately 110± acres planned for 470 single-family residential lots at 18625 168th Street, Basehor, KS 66007. Positioned within one of the fastest-growing areas in the western Kansas City metro, this property offers scale, location, and infrastructure advantages ideal for a master-planned residential community.
Development Scale & Vision
Preliminarily designed for 470 single-family lots, this tract provides the rare opportunity to control a large residential footprint in a high-demand market. The site layout supports efficient phasing, attractive lot configuration, and strong absorption potential.
Strategic Location
Located along the Hwy 24/40 corridor, the property offers convenient access to the greater Kansas City metro while maintaining the appeal of a growing suburban community. Proximity to new retail development, grocery, and Basehor-Linwood schools enhances long-term buyer demand.
Infrastructure & Accessibility
• Utilities available on-site or immediately adjacent
• Water mains nearby
• Sewer infrastructure extended into portions of the master development
• Frontage on paved, public-maintained roads
High-Growth Corridor
Surrounded by expanding residential and commercial activity, this property is ideally positioned to meet increasing housing demand in Basehor and the surrounding metro area.
Investment Highlights
• 110± acres
• 470 planned single-family lots
• Master-planned development potential
• Strong residential growth market
• Phased build-out capability
A rare large-scale residential development opportunity offering location, scale, and long-term upside in a rapidly expanding community...
Contact an agent
Home facts
- Listing ID #:2604271
- Added:55 day(s) ago
- Updated:April 23, 2026 at 06:33 PM
Structure and exterior
- Lot area:110 Acres
- Lot Features:City Limits
Utilities
- Water:Rural
- Sewer:Septic Tank
Finances and disclosures
- Price:$6,000,000
New listings near 18625 158th. Street
- New
$500,000Active3 beds 3 baths3,120 sq. ft.1414 N 151 Terrace, Basehor, KS 66007
MLS# 2615062Listed by: REAL BROKER, LLC - New
$260,000Active3 beds 2 baths1,554 sq. ft.2406 N 155th Terrace, Basehor, KS 66007
MLS# 2613428Listed by: HOMESMART LEGACY
$639,280Pending5 beds 4 baths3,500 sq. ft.16396 Craig Street, Basehor, KS 66007
MLS# 2615675Listed by: REECENICHOLS - LEES SUMMIT
$463,475Pending4 beds 2 baths1,980 sq. ft.1386 N 163rd Circle, Basehor, KS 66007
MLS# 2615683Listed by: REECENICHOLS - LEES SUMMIT- New
$419,950Active4 beds 3 baths2,050 sq. ft.15580 Sheridan Court, Basehor, KS 66007
MLS# 2615627Listed by: LYNCH REAL ESTATE - New
$370,000Active3 beds 3 baths1,896 sq. ft.15588 Crestwood Drive, Basehor, KS 66007
MLS# 2615172Listed by: PLATINUM REALTY LLC - New
$449,950Active4 beds 3 baths2,180 sq. ft.15418 Meyer Drive, Basehor, KS 66007
MLS# 2607668Listed by: LYNCH REAL ESTATE
$870,715Pending4 beds 3 baths3,369 sq. ft.4446 Tee Box Drive, Basehor, KS 66007
MLS# 2614979Listed by: WEICHERT, REALTORS WELCH & CO.- New
$499,950Active4 beds 4 baths3,852 sq. ft.17956 157th Street, Basehor, KS 66007
MLS# 2610080Listed by: LYNCH REAL ESTATE - Open Sat, 1 to 3pmNew
$1,200,000Active4 beds 4 baths3,000 sq. ft.15006 Leavenworth Road, Basehor, KS 66007
MLS# 2609990Listed by: REILLY REAL ESTATE LLC