54 Enchanted Lane, Linn Valley, KS 66040
Local realty services provided by:CENTURY 21 Crossroads
54 Enchanted Lane,Linn Valley, KS 66040
- 3 Beds
- 2 Baths
- - sq. ft.
- Single family
- Sold
Listed by: patrick woods
Office: platinum realty llc.
MLS#:2574168
Source:Bay East, CCAR, bridgeMLS
Sorry, we are unable to map this address
Price summary
- Price:
- Monthly HOA dues:$39
About this home
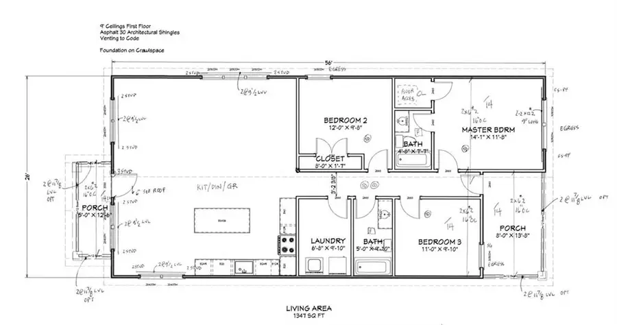
Be the first to own this brand new 3-bedroom, 2-bath ranch style home currently under construction in the sought after gated lake community of Linn Valley Lakes. Designed with modern living in mind, this home features an open concept floor plan with a spacious kitchen, dining, and living area that flows seamlessly for entertaining and everyday comfort. The kitchen will showcase quality finishes, ample custom cabinetry, and an island overlooking the main living space. The primary suite offers a private retreat with a generous layout, walk-in closet, and en-suite bathroom. Two additional bedrooms and a second full bath provide plenty of room for family, guests, or a home office.
Enjoy peaceful mornings and evenings on the front or back porch surrounded by the beauty of nature. This home sits on a crawl space foundation and offers all the ease and convenience of single-level living.
As a resident of Linn Valley Lakes, you’ll have access to an incredible array of amenities including multiple lakes with boat ramps and fishing docks, an 18-hole golf course, community clubhouse, pool, beach, sand volleyball court, tennis court, basketball court, walking trail, campground, mini golf, playgrounds, and more. Whether you’re seeking a full-time residence or a weekend retreat, this community offers a lifestyle unlike any other.
Don’t miss the opportunity to own a brand new home in this vibrant and active lake community!
Contact an agent
Home facts
- Year built:2025
- Listing ID #:2574168
- Added:177 day(s) ago
- Updated:March 03, 2026 at 02:58 PM
Rooms and interior
- Bedrooms:3
- Total bathrooms:2
- Full bathrooms:2
- Rooms Total:6
- Basement:Yes
- Basement Description:Crawl Space
Heating and cooling
- Cooling:Electric
- Heating:Forced Air Gas
Structure and exterior
- Roof:Metal
- Year built:2025
- Lot Features:Level
- Architectural Style:Traditional
- Construction Materials:Frame
Utilities
- Water:Cistern, Private
- Sewer:Private Sewer, Septic Tank
Finances and disclosures
- Price:
Features and amenities
- Amenities:Boat Dock, Clubhouse, Exercise Room, Golf Course, Hobby Room, Play Area, Pool, Trail(s)
- Pool features:Swimming Pool
New listings near 54 Enchanted Lane
- New
$8,000Active0 Acres146 Boxelder Drive, Linn Valley, KS 66040
MLS# 2604732Listed by: CLINCH REALTY LLC - New
$17,000Active0 Acres6 & 10 Live Oak Drive, Linn Valley, KS 66040
MLS# 2604688Listed by: CLINCH REALTY LLC - New
$7,500Active0 Acres37 Silver Fox Trail, Linn Valley, KS 66040
MLS# 2604736Listed by: CLINCH REALTY LLC - New
$6,000Active0 Acres30 Beechwood Lane, Linn Valley, KS 66040
MLS# 2604056Listed by: CLINCH REALTY LLC - New
$359,995Active3 beds 2 baths1,296 sq. ft.89 Lakeview Lane, Linn Valley, KS 66040
MLS# 2604366Listed by: KELLER WILLIAMS REALTY PARTNERS INC. - New
$25,000Active0 Acres1 Scamper Lane, Linn Valley, KS 66040
MLS# 2604215Listed by: CLINCH REALTY LLC
$219,000Pending3 beds 2 baths1,296 sq. ft.549 N Linn Valley Drive, Linn Valley, KS 66040
MLS# 2604108Listed by: CLINCH REALTY LLC- New
$435,000Active3 beds 2 baths1,711 sq. ft.18 & 14 Redwood Drive, Linn Valley, KS 66040
MLS# 2603668Listed by: CLINCH REALTY LLC
$20,000Pending0 Acres14 & 18 Bald Eagle Drive, Linn Valley, KS 66040
MLS# 2603776Listed by: CLINCH REALTY LLC
$7,500Pending0 Acres454 N Linn Valley Drive, Linn Valley, KS 66040
MLS# 2603282Listed by: CROWN REALTY