4683 Camargo Road, Mount Sterling, KY 40353
Local realty services provided by:CENTURY 21 Pinnacle
Listed by: amanda s marcum
Office: berkshire hathaway homeservices foster realtors
MLS#:26005039
Source:KY_LBAR
Price summary
- Price:$389,900
- Price per sq. ft.:$198.52
About this home
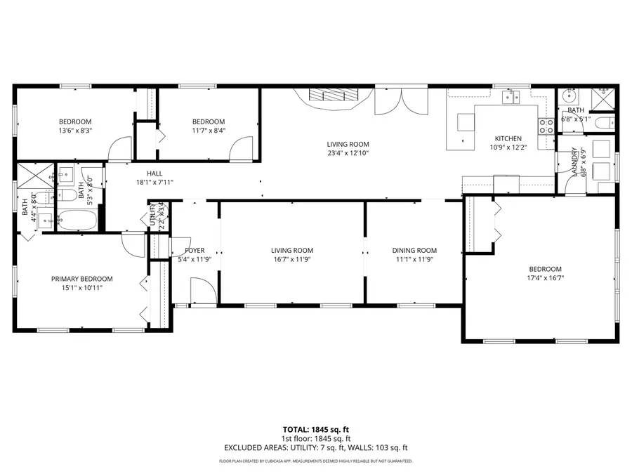
This all brick, one owner ranch home is ready for you to move right on in y'all! This classic home has recently had a facelift with a new kitchen and new bathrooms... gorgeous white cabinetry and quartz counter tops! Other notable features of this home are two living spaces... the family room that is open to the kitchen and breakfast nook space has a wood burning fireplace as the focus point to this space. One of the bedrooms is extra spacious because it used to be the original attached garage of the house but was finished off to add an additional bedroom with a full bathroom right outside its door. This home also boasts an awesome detached garage that measures 28' by 28'! System updates by the seller include HVAC about 1 year, water heater replaced about 2 years and the roof was done about 6 years ago. This move in ready home is ideal for anyone looking for a spacious (almost 2000 finished square feet) one level home with minimal steps, some peace and quiet with the large lot and ample storage and parking for all of your toys!...
Contact an agent
Home facts
- Year built:1981
- Listing ID #:26005039
- Added:5 day(s) ago
- Updated:April 03, 2026 at 03:04 PM
Rooms and interior
- Bedrooms:4
- Total bathrooms:3
- Full bathrooms:3
- Rooms Total:13
- Flooring:Carpet, Hardwood, Tile
- Basement:Yes
- Basement Description:Crawl Space
- Living area:1,964 sq. ft.
Heating and cooling
- Cooling:Electric, Heat Pump
- Heating:Electric, Heat Pump
Structure and exterior
- Year built:1981
- Building area:1,964 sq. ft.
- Lot area:1.65 Acres
- Construction Materials:Brick Veneer, Stone
Schools
- High school:Montgomery Co
- Middle school:McNabb
- Elementary school:Camargo
Utilities
- Water:Public
- Sewer:Septic Tank
Finances and disclosures
- Price:$389,900
- Price per sq. ft.:$198.52
Features and amenities
- Laundry features:Electric Dryer Hookup, Main Level, Washer Hookup
- Amenities:Blinds, Ceiling Fan(s), Insulated Windows, Screens
Parking
- Parking description:Driveway, Garage Door Opener, Garage Faces Front, Off Street
- Garage:Yes
- Garage spaces:2
New listings near 4683 Camargo Road
- New
$499,900Active1.77 Acres650 Winchester Rd., Mt Sterling, KY 40353
MLS# 26006926Listed by: UNITED REAL ESTATE BLUEGRASS - New
$675,000Active5 beds 4 baths4,220 sq. ft.1466 Clubhouse Lane, Mt Sterling, KY 40353
MLS# 26006909Listed by: KELLER WILLIAMS COMMONWEALTH - New
$259,000Active3 beds 2 baths1,868 sq. ft.225 Blueberry Lane, Mt Sterling, KY 40353
MLS# 26006241Listed by: FC TUCKER BLUEGRASS - New
$380,000Active4 beds 3 baths2,240 sq. ft.5765 Donaldson Road, Mt Sterling, KY 40353
MLS# 26006864Listed by: LACY GAY REALTY, LLC - New
$364,900Active4 beds 3 baths2,744 sq. ft.241 Blueberry Lane, Mt Sterling, KY 40353
MLS# 26006824Listed by: HOMELAND REAL ESTATE INC - MT STERLING - New
$286,000Active4 beds 2 baths2,087 sq. ft.9478 Spencer Pike, Mt Sterling, KY 40353
MLS# 26006614Listed by: MURPHY REALTY GROUP - New
$199,000Active4 beds 2 baths1,514 sq. ft.523 W High Street, Mt Sterling, KY 40353
MLS# 26006594Listed by: KELLER WILLIAMS LEGACY GROUP - New
$289,000Active4 beds 2 baths1,927 sq. ft.428 N Maysville Street, Mt Sterling, KY 40353
MLS# 26006409Listed by: KELLER WILLIAMS LEGACY GROUP
$699,000Pending4 Acres0 Highway 60, Mt Sterling, KY 40353
MLS# 26006217Listed by: RE/MAX REALTY CONNECTION, LLC