7702 Jeter Dr, Baton Rouge, LA 70817
Local realty services provided by:CENTURY 21 Action Realty
7702 Jeter Dr,Baton Rouge, LA 70817
$475,107
- 3 Beds
- 2 Baths
- 1,862 sq. ft.
- Single family
- Pending
Listed by: jennifer waguespack
Office: keller williams realty red stick partners
MLS#:BR2026000641
Source:LA_RAAMLS
Price summary
- Price:$475,107
- Price per sq. ft.:$167
- Monthly HOA dues:$70.83
About this home
Presold home, estimated completion of February 2026. The community will feature a playground and community swimming pool. Other lots/plans available! Schedule an appointment today to learn more about this fantastic new community by Engquist Level Development.
Contact an agent
Home facts
- Year built:2026
- Listing ID #:BR2026000641
- Added:102 day(s) ago
- Updated:April 25, 2026 at 10:19 AM
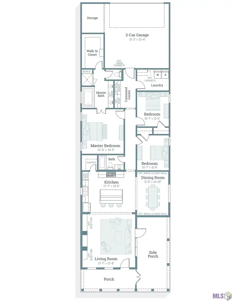
Rooms and interior
- Bedrooms:3
- Total bathrooms:2
- Full bathrooms:2
- Flooring:Tile
- Bathrooms Description:Bedroom 1, Bedroom 3, Double Vanity, Separate Shower
- Kitchen Description:Dishwasher, Disposal, Gas Cooktop, Gas Stove Con, Kitchen, Kitchen Island, Microwave, Oven
- Living area:1,862 sq. ft.
Heating and cooling
- Cooling:Central Air
- Heating:Central Heat
- Central air:Yes
Structure and exterior
- Year built:2026
- Building area:1,862 sq. ft.
- Lot area:0.1 Acres
- Lot Features:Commons, Corner Lot, Level
- Construction Materials:Brick, Frame
- Exterior Features:Covered Patio, Outside Light
- Foundation Description:Post Tension
- Levels:1 Story
Finances and disclosures
- Price:$475,107
- Price per sq. ft.:$167
Features and amenities
- Appliances:Dishwasher, Gas Stove Con, Microwave
- Laundry features:Electric Dryer Hookup, Washer Hookup
- Amenities:Crown Molding, High Ceilings, Lighting, Pool, Separate Shower, Varied Ceiling Heights, Walk-In Closet(s)
- Pool features:Pool
Parking
- Parking description:Attached, Garage
- Garage:Yes
New listings near 7702 Jeter Dr
- New
$155,000Active2 beds 2 baths1,363 sq. ft.1320 Sharlo Ave, Baton Rouge, LA 70820
MLS# BR2026007573Listed by: LPT REALTY, LLC - New
$255,000Active3 beds 2 baths1,461 sq. ft.3839 Southpass Ave, Baton Rouge, LA 70820
MLS# BR2026007564Listed by: COMPASS ELYSIAN FIELDS - New
$145,000Active2 beds 3 baths1,200 sq. ft.974 Ridgepoint Ct #974, Baton Rouge, LA 70810
MLS# BR2026007566Listed by: FALAYA - New
$95,000Active2 beds 3 baths1,136 sq. ft.10290 W Winston Ave #14, Baton Rouge, LA 70809
MLS# BR2026007569Listed by: LPT REALTY, LLC - New
$85,000Active3 beds 2 baths1,586 sq. ft.474 W Grant St, Baton Rouge, LA 70802
MLS# BR2026007559Listed by: COMPASS - PERKINS - New
$85,000Active2 beds 2 baths1,200 sq. ft.11550 Southfork Ave #303, Baton Rouge, LA 70816
MLS# BR2026007560Listed by: COVINGTON & ASSOCIATES REAL ESTATE, LLC - New
$355,000Active3 beds 2 baths1,927 sq. ft.650 Chippenham Dr, Baton Rouge, LA 70808
MLS# BR2026007561Listed by: BURNS & CO., INC. - New
$295,000Active3 beds 2 baths1,607 sq. ft.15543 Fields Creek Ave, Baton Rouge, LA 70816
MLS# 2026007575Listed by: MAGNOLIA ROOTS REALTY LLC - New
$375,000Active3 beds 2 baths2,889 sq. ft.3130 Plantation Key Dr, Baton Rouge, LA 70816
MLS# 2026007577Listed by: RE/MAX PROFESSIONAL - New
$225,000Active3 beds 4 baths1,700 sq. ft.4000 Lake Beau Pre #86, Baton Rouge, LA 70820
MLS# BR2026007554Listed by: DEL RIO REAL ESTATE, INC.