3632 Lake Lynn Drive, Gretna, LA 70056
Local realty services provided by:CENTURY 21 Action Realty
3632 Lake Lynn Drive,Gretna, LA 70056
$399,000
- 4 Beds
- 4 Baths
- 2,284 sq. ft.
- Single family
- Active
Listed by: john hendrix
Office: remax crescent collective llc.
MLS#:2539605
Source:LA_GSREIN
Price summary
- Price:$399,000
- Price per sq. ft.:$97.79
- Monthly HOA dues:$4.17
About this home
<br><br>
Here’s your opportunity to enjoy more than just a home — this is a lifestyle. Perfectly positioned along the 12th hole of Stonebridge Golf Course, this beautifully maintained 4-bedroom, 2.5-bath home offers peaceful golf course living with stunning pond views and unforgettable sunsets right from your backyard.
<br><br>
Imagine evenings spent cruising the neighborhood in your golf cart after the course closes, relaxing on the patio as the sun sets over the water, or gathering with friends around the sparkling pool while golfers finish their final round of the day. From your backyard, you’ll even have a front-row seat to the spectacular local air show — an experience few homes can offer.
<br><br>
Inside, the thoughtfully designed floor plan provides both comfort and space with two inviting living areas, including a light-filled vaulted great room. The stylish kitchen is ideal for everyday living and entertaining, flowing seamlessly into the living spaces and outdoor areas.
<br><br>
Step outside to an expansive hardscaped patio and generously sized pool — the perfect setting for weekend gatherings, summer evenings, or simply unwinding while enjoying the peaceful golf course backdrop.
<br><br>
The primary suite offers a private retreat with dual vanities and direct access to the covered poolside patio, creating a true indoor-outdoor living experience.
<br><br>
Additional highlights include a two-car garage, two brand-new A/C units for efficiency and peace of mind, and low-maintenance living so you can spend more time enjoying the views, the pool, and the Stonebridge lifestyle....
Contact an agent
Home facts
- Year built:1987
- Listing ID #:2539605
- Added:196 day(s) ago
- Updated:April 05, 2026 at 02:58 PM
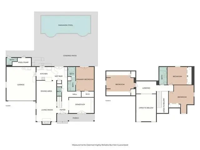
Rooms and interior
- Bedrooms:4
- Total bathrooms:4
- Full bathrooms:2
- Half bathrooms:2
- Rooms Total:7
- Kitchen Description:Dishwasher, Disposal, Granite Counters, Microwave, Oven, Range, Refrigerator
- Living area:2,284 sq. ft.
Heating and cooling
- Cooling:2 Units, Central Air
- Heating:Central, Heating, Multiple Heating Units
Structure and exterior
- Roof:Shingle
- Year built:1987
- Building area:2,284 sq. ft.
- Lot Features:City Lot, Rectangular Lot
- Architectural Style:Acadian
- Construction Materials:Brick
- Exterior Features:Covered, Fence, Outdoor Shower, Patio, Porch
- Foundation Description:Slab
- Levels:2 Story
Utilities
- Water:Public
- Sewer:Public Sewer
Finances and disclosures
- Price:$399,000
- Price per sq. ft.:$97.79
Features and amenities
- Appliances:Dishwasher, Microwave, Oven, Range, Refrigerator, Washer
- Laundry features:Dryer, Washer, Washer Hookup
- Amenities:Ceiling Fan(s), Vaulted Ceiling(S)
- Pool features:In Ground
Parking
- Parking description:Garage, Off Street, Three or more Spaces
New listings near 3632 Lake Lynn Drive
- New
$229,000Active3 beds 1 baths1,625 sq. ft.5 Cedar Lane, Gretna, LA 70053
MLS# 2551364Listed by: HOMESMART REALTY SOUTH - New
$270,000Active4 beds 3 baths2,052 sq. ft.628 Fairlawn Drive, Gretna, LA 70056
MLS# 2550913Listed by: PEOPLE'S REALTY, INC. - New
$189,900Active3 beds 2 baths1,400 sq. ft.133 Creagan Avenue, Gretna, LA 70053
MLS# 2551347Listed by: TCK REALTY LLC - New
$325,000Active3 beds 2 baths1,542 sq. ft.129 Creagan Avenue, Gretna, LA 70053
MLS# 2551350Listed by: TCK REALTY LLC - New
$330,000Active4 beds 3 baths2,290 sq. ft.2125 Glencove Lane, Gretna, LA 70056
MLS# NO2551253Listed by: RED DOOR REALTY, INC. - New
$319,999Active2 beds 2 baths1,379 sq. ft.47 Willow Drive, Gretna, LA 70053
MLS# 2551260Listed by: AMPLIFIED REALTY GROUP, INC. - New
$115,000Active2 beds 2 baths1,081 sq. ft.2425 Oxford Place #139, Gretna, LA 70056
MLS# 2550944Listed by: THE O.W.N. LIFE - New
$299,900Active4 beds 3 baths2,069 sq. ft.42 Marie Drive, Gretna, LA 70053
MLS# NO2550724Listed by: EZ REALTY, INC. - New
$389,000Active4 beds 3 baths2,905 sq. ft.109 Gaudin Street, Gretna, LA 70056
MLS# NO2549238Listed by: HOMESMART REALTY SOUTH - New
$225,000Active3 beds 2 baths1,308 sq. ft.828 Mystic Avenue, Gretna, LA 70056
MLS# NO2549744Listed by: REVE, REALTORS