605 Silverstone Road #205b, Lafayette, LA 70508
Local realty services provided by:CENTURY 21 Action Realty
605 Silverstone Road #205b,Lafayette, LA 70508
$499,000
- 3 Beds
- 2 Baths
- 1,909 sq. ft.
- Condominium
- Active
Listed by: melanie doyle
Office: compass
MLS#:2500004879
Source:LA_RAAMLS
Price summary
- Price:$499,000
- Price per sq. ft.:$261.39
- Monthly HOA dues:$842.67
About this home
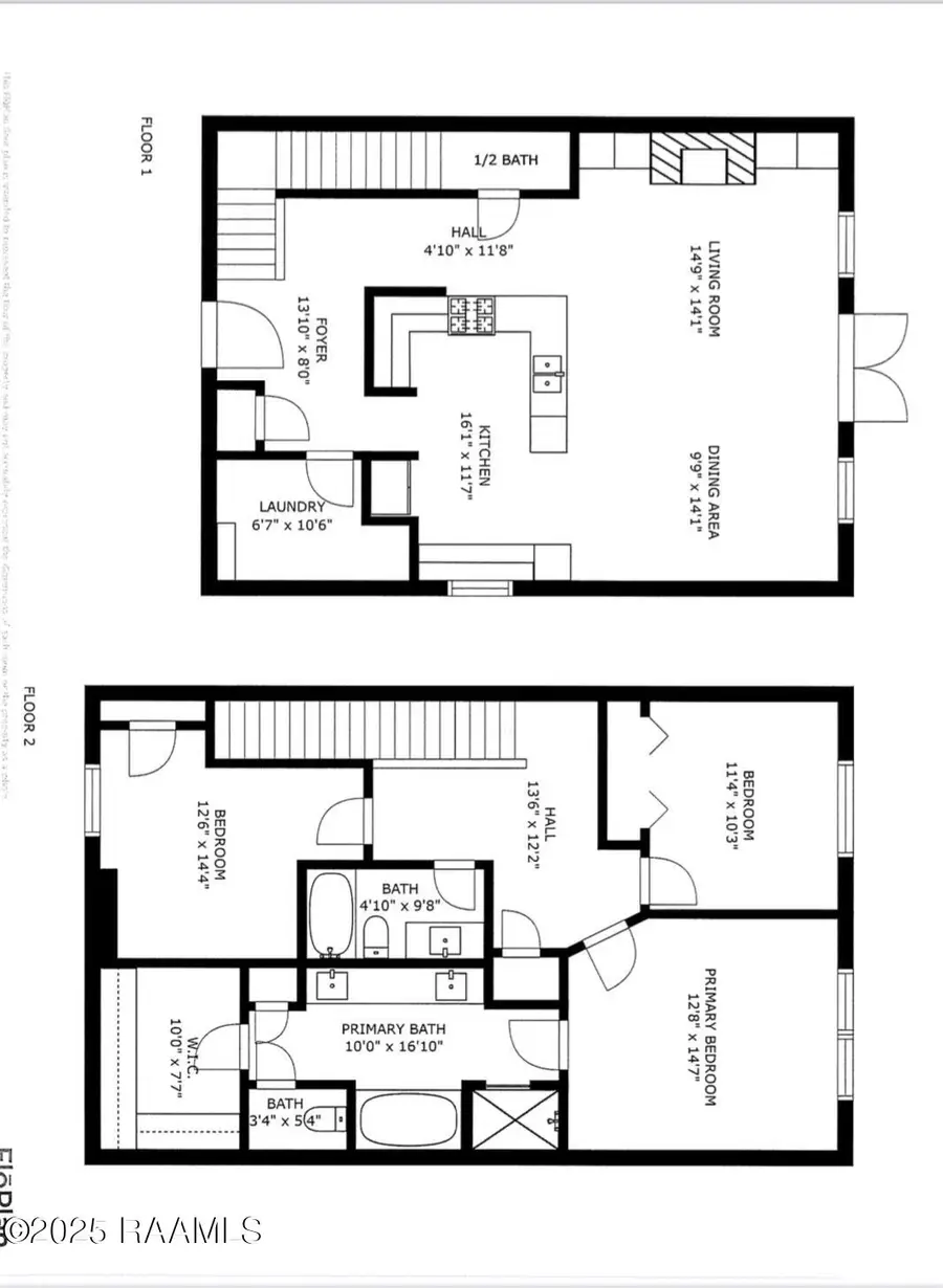
You want luxurious living? Check this out! Located in the prestigious neighborhood of River Ranch - and right on the town square - making this condo a perfect choice for your next home. Go ahead and start planning your first party - open the doors to the balcony which faces Degaulle Square of River Ranch and let the fun begin! The kitchen has top-of-the-line stainless steel appliances (new refrigerator), 3cm granite countertops, and more than ample counter space. The living and dining area are spacious enough for a large group. A half bath, utility room and foyer complete the first floor. Proceed upstairs to the 2nd floor which houses 3 bedrooms and 2 bathrooms. All bedrooms have brand new carpet! The primary has a view of the square and an en-suite bathroom (with separate tub and shower equipped with shower head and hand-held sprayer), and a walk-in closet. The 2 guest bedrooms and bath complete the 2nd floor. Other noteworthy perks include custom shades on all windows, 2 designated parking places (in the Parking Tower Garage) conveniently located near the door leading to the hallway, use of the neighborhood swimming pool (on Worth Ave.) and parks, storage for bikes, baby strollers, etc under the stairs in the hallways, 24 hour security, mailbox in the building, packages delivered to the concierge desk are delivered to your door step...and more! Must view the condo to appreciate then decide to treat yourself to life at Carriage House Condos! FOR SALE OR LEASE! New Price! Motivated seller....
Contact an agent
Home facts
- Year built:2006
- Listing ID #:2500004879
- Added:92 day(s) ago
- Updated:April 25, 2026 at 03:09 PM
Rooms and interior
- Bedrooms:3
- Total bathrooms:2
- Full bathrooms:2
- Flooring:Carpet, Tile, Wood
- Bathrooms Description:Double Vanity, Multi-Head Shower, Separate Shower, Special Bath
- Kitchen Description:Dishwasher, Disposal, Granite Counters, Microwave, Refrigerator, Wet Bar
- Living area:1,909 sq. ft.
Heating and cooling
- Cooling:Central Air
- Heating:Central Heat, Natural Gas
- Central air:Yes
Structure and exterior
- Roof:Composition
- Year built:2006
- Building area:1,909 sq. ft.
- Architectural Style:Condominium, French
- Construction Materials:Brick Veneer, Stucco
- Exterior Features:Balcony, Outside Light
- Foundation Description:Slab
- Levels:2 Story
Schools
- High school:Comeaux
- Middle school:Edgar Martin
- Elementary school:Cpl. M. Middlebrook
Utilities
- Sewer:Public Sewer
Finances and disclosures
- Price:$499,000
- Price per sq. ft.:$261.39
Features and amenities
- Appliances:Dishwasher, Microwave, Refrigerator
- Laundry features:Electric Dryer Hookup, Gas Dryer Hookup, Washer Hookup
- Amenities:Balcony, Built-in Features, Crown Molding, Double Pane Windows, Elevator, Fitness Center, High Ceilings, Lighting, Park, Playground, Pool, Separate Shower, Walk-In Closet(s), Window Treatments
- Pool features:Pool
Parking
- Total parking spaces:2
- Parking description:Assigned
- Garage:Yes
- Garage spaces:2
New listings near 605 Silverstone Road #205b
- New
$210,000Active3 beds 2 baths1,292 sq. ft.107 Rue Argenteuil Road, Lafayette, LA 70506
MLS# 2600003601Listed by: AVENUE REAL ESTATE - New
$427,000Active3 beds 3 baths2,389 sq. ft.305 Breemen Circle, Lafayette, LA 70508
MLS# 2600003591Listed by: COMPASS - New
$235,000Active3 beds 2 baths1,841 sq. ft.118 Edwin Street, Lafayette, LA 70506
MLS# 2600003593Listed by: COMPASS - New
$318,000Active4 beds 2 baths1,916 sq. ft.101 Spring Lake Circle, Lafayette, LA 70508
MLS# 2600003595Listed by: COMPASS - New
$229,000Active3 beds 2 baths1,650 sq. ft.109 Chevalier Boulevard, Lafayette, LA 70503
MLS# 2600003589Listed by: RUSTON PROPERTIES
$350,598Pending4 beds 3 baths2,782 sq. ft.120 Elmwood Meadows Drive, Lafayette, LA 70506
MLS# 2600003581Listed by: CICERO REALTY LLC- New
$80,000Active3 beds 2 baths1,470 sq. ft.115 Noah Street, Lafayette, LA 70501
MLS# 2600003572Listed by: DWIGHT ANDRUS REAL ESTATE AGENCY, LLC - New
$320,000Active4 beds 3 baths2,438 sq. ft.129 Wild Cherry Lane, Lafayette, LA 70508
MLS# 2600003577Listed by: REAL BROKER, LLC - New
$156,000Active2 beds 2 baths1,136 sq. ft.515 Smith-reed Road, Lafayette, LA 70507
MLS# 2600003564Listed by: GUIDRY & CO. REAL ESTATE, INC. - New
$45,000Active0.34 Acres100 Blk Portland Avenue, Lafayette, LA 70507
MLS# 2600003565Listed by: THE GLEASON GROUP