345 Bay Road, Easton, MA 02356

Local realty services provided by:CENTURY 21 Shawmut Properties
345 Bay Road,Easton, MA 02356
$489,900
  • 3 Beds
  • 2 Baths
  • 1,910 sq. ft.
  • Single family
  • Active
Listed by: wendy r. whitty, patricia graciano
Office: whitty real estate
MLS#:73483437
Source:MLSPIN

Price summary

  • Price:$489,900
  • Price per sq. ft.:$256.49

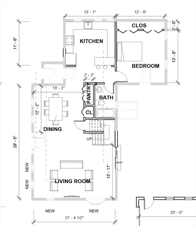
About this home

Ready Set Go! Attention Contractors!! Traditional Farmhouse Style Home is currently down to Studs & Ready to Finish into your Dream Home! Finished Plans Available. This Sweet <3 Property is currently planned to feature 1,910 SF including 3 generous bedrooms (1) bedroom on first floor and (2) bedrooms upstairs and will also have 2 full baths, Living, Dining & Kitchen w Slider to private back yard, Circular Driveway, some Mature Landscaping, 2-car garage, Backyard Barn (packed with potential!) and a New Septic System (2023). Located on Historical & Scenic Bay Road in North Easton this home sits on a fantastic large level corner lot abutting Welsch Woods Condo development, and is conveniently just minutes to Easton Five Corners, and only 3-4 miles radius between 24, 495 & 95. Purchase "AS IS" or with a Customized Builder Package (@ Additional Cost)

Contact an agent

contact an agent

Yes, I would like more information. Please use and/or share my information with an independent agent affiliated with the CENTURY 21®  brand to contact me about my real estate needs. By clicking Send message, I request to be contacted by phone or text message and consent to being contacted by automated means. I understand that my consent to receive calls or texts is not a condition of purchasing any property, goods, or services. Alternatively, I understand that I can access real estate services by email or I can contact the agent myself.

If an independent agent affiliated with the CENTURY 21®  brand is not available in the area where I need assistance, I agree to be contacted by a real estate agent affiliated with another brand owned or licensed by Anywhere Real Estate (BHGRE® , Coldwell Banker® , Corcoran® , ERA® , Sotheby's International Realty® ).
 I acknowledge that I have read and agree to theTerms of useandPrivacy notice

Home facts

  • Year built:1910
  • Listing ID #:73483437
  • Updated:March 25, 2026 at 11:22 AM

Rooms and interior

  • Bedrooms:3
  • Total bathrooms:2
  • Full bathrooms:2
  • Rooms Total:7
  • Basement Description:Crawl Space, Partial
  • Living area:1,910 sq. ft.

Structure and exterior

  • Year built:1910
  • Building area:1,910 sq. ft.
  • Lot area:0.8 Acres
  • Lot Features:Corner Lot, Level, Wooded
  • Architectural Style:Farmhouse

Utilities

  • Water:Public
  • Sewer:Private Sewer

Finances and disclosures

  • Price:$489,900
  • Price per sq. ft.:$256.49
  • Tax amount:$6,013 (2025)

Features and amenities

  • Laundry features:Second Floor

Parking

  • Total parking spaces:6
  • Garage:Yes
  • Garage spaces:2
The property listing data and information, or the Images, set forth herein were provided to MLS Property Information Network, Inc. from third party sources, including sellers, lessors and public records, and were compiled by MLS Property Information Network, Inc. The property listing data and information, and the Images, are for the personal, non-commercial use of consumers having a good faith interest in purchasing or leasing listed properties of the type displayed to them and may not be used for any purpose other than to identify prospective properties which such consumers may have a good faith interest in purchasing or leasing. MLS Property Information Network, Inc. and its subscribers disclaim any and all representations and warranties as to the accuracy of the property listing data and information, or as to the accuracy of any of the Images, set forth herein.