5 Goose Neck Road, Hancock, ME 04640
Local realty services provided by:CENTURY 21 Nason Realty, Inc.
Listed by: stacy white
Office: better homes & gardens real estate/the masiello group
MLS#:1613013
Source:ME_MREIS
Price summary
- Price:$169,900
- Price per sq. ft.:$178.47
- Monthly HOA dues:$695
About this home
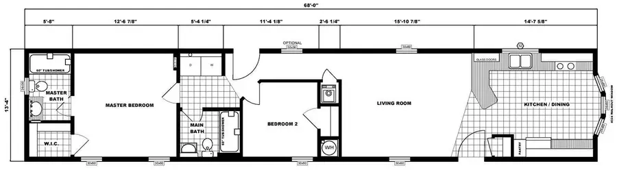
Welcome to Coastal Estates Mobile Home Park, Hancock County's newest mobile home community in the highly sought-after Hancock area. Built with durability and quality in mind, this featured model is a 952-square-foot home with 2 bedrooms and 2 baths crafted by Pine Grove, set on a slab with tie-downs and composite skirting, decks and rails for exceptional resilience. Once complete, the park will include 115 homes and a host of amenities, such as a community building with a workout area, kitchenette, meeting space, and mailboxes. Residents will also enjoy a pickleball court and horseshoe pit. Included with the lot rent is water, sewer, trash, common area maintenance, and snow removal. Optional upgrades are available, including garages, storage sheds, gazebos and greenhouses. Homeowners can also take advantage of a discounted Spectrum internet package. Do you prefer something custom? Design your own home with personalized layouts, colors, and pick the lot of your choice. Pine Grove and premier partners have homes that are available to choose from. Ideally located just minutes from Ellsworth, often referred to as the gateway to Downeast Maine, Ellsworth is the local hub, offering a wide array of shopping options, diverse restaurants to suit every taste, and essential services like a top-tier hospital. Whether you're running errands, dining out, or seeking medical care, everything you need is conveniently close by. In addition, Acadia National Park is about 35 minutes away, Bar Harbor Airport being only 20 minutes away and the Bangor International Airport 45 minutes away. Coastal Estates offers convenience and natural beauty and outdoor enthusiasts will appreciate the nearby ATV and hiking trails. Coastal Estates—your perfect retirement or summer retreat!...
Contact an agent
Home facts
- Year built:2023
- Listing ID #:1613013
- Updated:April 03, 2026 at 03:33 PM
Rooms and interior
- Bedrooms:2
- Total bathrooms:2
- Full bathrooms:2
- Rooms Total:4
- Flooring:Carpet, Vinyl
- Bathrooms Description:Bathtub, Shower
- Kitchen Description:Dishwasher, Gas Range, Microwave, Refrigerator
- Bedroom Description:1st Floor Primary Bedroom w/Bath
- Living area:952 sq. ft.
Heating and cooling
- Heating:Forced Air
Structure and exterior
- Year built:2023
- Building area:952 sq. ft.
- Lot Features:Near Shopping, Near Town, Open
- Construction Materials:Mobile, Vinyl Siding
- Exterior Features:Deck
- Foundation Description:Concrete Perimeter, Slab
Utilities
- Water:Private, Well
- Sewer:Private Sewer
Finances and disclosures
- Price:$169,900
- Price per sq. ft.:$178.47
- Tax amount:$423 (2025)
Features and amenities
- Appliances:Dishwasher, Gas Range, Microwave, Refrigerator
- Laundry features:Washer Hookup
- Amenities:One-Floor Living
Parking
- Parking description:1 - 4 Spaces, Paved
New listings near 5 Goose Neck Road
$130,000Active2.32 AcresLot 12 Sunset Hill Road, Hancock, ME 04640
MLS# 1651768Listed by: VYLLA HOME
$154,900Active2 beds 1 baths884 sq. ft.18 Eagles Nest, Hancock, ME 04640
MLS# 1651513Listed by: BETTER HOMES & GARDENS REAL ESTATE/THE MASIELLO GROUP
$164,900Active2 beds 2 baths938 sq. ft.14 Eagles Nest, Hancock, ME 04640
MLS# 1651500Listed by: BETTER HOMES & GARDENS REAL ESTATE/THE MASIELLO GROUP
$65,000Active2 beds 1 baths860 sq. ft.55 Deerfield Drive, Hancock, ME 04640
MLS# 1644642Listed by: NEXTHOME EXPERIENCE
$359,000Active2 beds 2 baths1,198 sq. ft.6 Nob Hill Road, Hancock, ME 04640
MLS# 1644195Listed by: NEXTHOME EXPERIENCE
$525,000Active-- beds 3 baths2,782 sq. ft.166 Mud Creek Road, Hancock, ME 04640
MLS# 1643840Listed by: REALTY OF MAINE
$825,000Active3 beds 2 baths1,728 sq. ft.122 Cross Road, Hancock, ME 04640
MLS# 1641605Listed by: BETTER HOMES & GARDENS REAL ESTATE/THE MASIELLO GROUP
$329,000Pending3 beds 1 baths1,200 sq. ft.264 Cross Road, Hancock, ME 04640
MLS# 1640453Listed by: REALTY OF MAINE
$2,200,000Pending2 beds 2 baths1,680 sq. ft.103 Gull Rock Road, Hancock, ME 04640
MLS# 1638453Listed by: BERKSHIRE HATHAWAY HOMESERVICES NORTHEAST REAL ESTATE
$525,000Active3 beds 3 baths2,782 sq. ft.166 Mud Creek Road, Hancock, ME 04640
MLS# 1637539Listed by: REALTY OF MAINE