Lot 2 Tylers Way, Sidney, ME 04330
Local realty services provided by:CENTURY 21 Advantage
Lot 2 Tylers Way,Sidney, ME 04330
$859,900
- 4 Beds
- 3 Baths
- 2,826 sq. ft.
- Single family
- Active
Listed by: elisha hardy
Office: berkshire hathaway homeservices northeast real estate
MLS#:1651623
Source:ME_MREIS
Price summary
- Price:$859,900
- Price per sq. ft.:$304.28
About this home
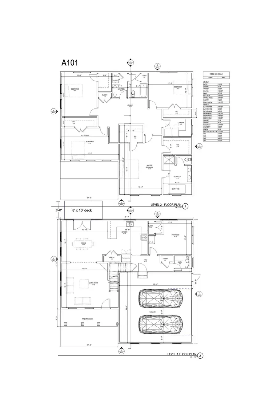
Build your dream home with this thoughtfully designed 4-bedroom, 2.5-bath new construction offering, set on a 1.03 acre lot. This spacious two-story design blends modern functionality with classic New England charm and allows buyers the opportunity to personalize finishes and selections prior to construction.
The main level features an open-concept kitchen, dining, and living area, ideal for both everyday living and entertaining, along with a pantry, half bath, and flexible playroom or home office. A welcoming front porch adds curb appeal and outdoor enjoyment.
Upstairs, the private primary suite offers generous space, a walk-in closet, and a full bath. Three additional bedrooms, multiple walk-in closets, a second full bath, and convenient second-floor laundry complete the layout—designed with comfort and practicality in mind.
Additional highlights include an attached two-car garage, energy-efficient construction, and quality craftsmanship throughout. Buyers may have the opportunity to choose finishes, colors, and upgrades depending on the stage of construction.
**Photos are of a similar build. Final specifications, layout, and finishes subject to change. No construction loan needed for qualified buyers. Homes are built with panelized construction, build time is ~120 days, buyers can select the lot they would like to build on in Grandview Heights Subdivision...
Contact an agent
Home facts
- Year built:2026
- Listing ID #:1651623
- Updated:April 03, 2026 at 03:33 PM
Rooms and interior
- Bedrooms:4
- Total bathrooms:3
- Full bathrooms:2
- Half bathrooms:1
- Rooms Total:9
- Bedroom Description:Primary Bedroom w/Bath
- Basement Description:Full
- Living area:2,826 sq. ft.
Heating and cooling
- Heating:Baseboard
Structure and exterior
- Year built:2026
- Building area:2,826 sq. ft.
- Lot area:1.03 Acres
- Lot Features:Near Town, Near Turnpike/Interstate, Neighborhood, Open, Rolling/Sloping, Subdivided, Wooded
- Architectural Style:Contemporary
- Construction Materials:Vinyl Siding, Wood Frame
- Foundation Description:Concrete Perimeter
Finances and disclosures
- Price:$859,900
- Price per sq. ft.:$304.28
- Tax amount:$1 (2026)
Parking
- Parking description:No Driveway
- Garage:Yes
- Garage spaces:2
New listings near Lot 2 Tylers Way
- New
$39,999Active1.55 AcresLot #9 Ryder Drive, Sidney, ME 04330
MLS# 1655877Listed by: CENTRAL MAINE REAL ESTATE
$565,000Pending3 beds 3 baths2,180 sq. ft.30 St. Pierre Drive, Sidney, ME 04330
MLS# 1655384Listed by: COLDWELL BANKER REALTY- Coming Soon
$469,900Coming Soon3 beds 3 baths48 St Pierre Drive, Sidney, ME 04330
MLS# 1655340Listed by: KELLER WILLIAMS REALTY
$675,000Pending4 beds 3 baths2,938 sq. ft.14 Joey's Way, Sidney, ME 04330
MLS# 1654845Listed by: LAER
$549,000Pending3 beds 2 baths2,387 sq. ft.38 Pineland Acres, Sidney, ME 04330
MLS# 1654249Listed by: NEXTHOME NORTHERN LIGHTS REALTY
$499,900Active4 beds 2 baths2,103 sq. ft.3190 Middle Road, Sidney, ME 04330
MLS# 1653829Listed by: LAER
$839,000Active4 beds 3 baths2,758 sq. ft.52 Twinleaf Lane, Sidney, ME 04330
MLS# 1652843Listed by: COLDWELL BANKER PLOURDE REAL ESTATE
$839,900Active3 beds 3 baths2,570 sq. ft.Lot 9 Sierrahs Way, Sidney, ME 04330
MLS# 1652759Listed by: BERKSHIRE HATHAWAY HOMESERVICES NORTHEAST REAL ESTATE
$815,000Active4 beds 3 baths2,600 sq. ft.Lot 3 Sierrahs Way, Sidney, ME 04330
MLS# 1651938Listed by: BERKSHIRE HATHAWAY HOMESERVICES NORTHEAST REAL ESTATE
$560,000Pending3 beds 3 baths2,088 sq. ft.11 Pleasant Road, Sidney, ME 04330
MLS# 1651936Listed by: SPRAGUE & CURTIS REAL ESTATE