11760 Hillside Drive, Dexter, MI 48130
Local realty services provided by:CENTURY 21 White House Realty
11760 Hillside Drive,Dexter, MI 48130
$524,775
- 4 Beds
- 3 Baths
- 2,300 sq. ft.
- Single family
- Pending
Listed by: jennifer graswick
Office: guenther homes, inc.
MLS#:26001242
Source:MI_GRAR
Price summary
- Price:$524,775
- Price per sq. ft.:$228.16
- Monthly HOA dues:$81.25
About this home
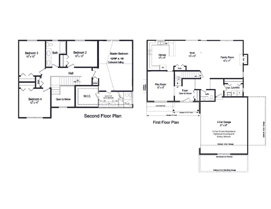
Under Construction. Foundation dug, still time to pick all your colors! All the right spaces! Inside and out! Great location just outside charming downtown Dexter. The best of both world's, with a country like setting and protected nature areas, near by lakes and parks. Yet the bustle of Ann Arbor is readily accessible. This 4 bedroom, 2 1/2 bath, full basement and 2 1/2 car garage home is situated on a cul de sac in a country neighborhood setting. Hardwood flooring in the foyer, kitchen and nook. The kitchen also features quartz countertops. The open floor plan feels even more spacious with its 1st floor 9ft. ceiling height. No need to update when you can pick new!
Contact an agent
Home facts
- Year built:2026
- Listing ID #:26001242
- Added:46 day(s) ago
- Updated:February 21, 2026 at 08:31 AM
Rooms and interior
- Bedrooms:4
- Total bathrooms:3
- Full bathrooms:2
- Half bathrooms:1
- Rooms Total:2300
- Basement:Yes
- Living area:2,300 sq. ft.
Heating and cooling
- Heating:Forced Air
Structure and exterior
- Year built:2026
- Building area:2,300 sq. ft.
- Lot area:0.46 Acres
- Lot Features:Cul-De-Sac
- Construction Materials:Brick, Vinyl Siding
Utilities
- Water:Well
Finances and disclosures
- Price:$524,775
- Price per sq. ft.:$228.16
New listings near 11760 Hillside Drive
- New
$415,000Active3 beds 3 baths2,032 sq. ft.8229 Bayberry, Dexter, MI 48130
MLS# 70516737Listed by: @PROPERTIES CHRISTIE'S INT'LAA - New
$925,000Active5.33 Acres6854 Morrison Hills Court, Dexter, MI 48130
MLS# 26006909Listed by: KELLER WILLIAMS ANN ARBOR MRKT - New
$850,000Active4 beds 4 baths4,002 sq. ft.12385 Island Lake Road, Dexter, MI 48130
MLS# 26005741Listed by: THE CHARLES REINHART COMPANY - New
$625,000Active3 beds 4 baths2,442 sq. ft.12627 N Territorial, Dexter, MI 48130
MLS# 70515336Listed by: HOWARD HANNA REAL ESTATE
$465,000Active4 beds 3 baths2,720 sq. ft.8729 Boxelder, Dexter, MI
MLS# 60969225Listed by: KEY REALTY-ANN ARBOR
$264,900Active2 beds 1 baths895 sq. ft.1375 Baker Road, Dexter, MI 48130
MLS# 26004699Listed by: KELLER WILLIAMS ANN ARBOR MRKT
$600,000Active4 beds 3 baths3,393 sq. ft.7700 Chamberlin Road, Dexter, MI 48130
MLS# 20251061153Listed by: EXP REALTY THE PERNA TEAM
$450,000Pending3 beds 3 baths1,692 sq. ft.1850 Hickory Hollow, Dexter, MI
MLS# 60967435Listed by: REAL ESTATE ONE-BRIGHTON
$325,000Active2 beds 2 baths1,136 sq. ft.291 Victoria Drive, Dexter, MI 48130
MLS# 26003803Listed by: REAL BROKER LLC ANN ARBOR
$325,000Active2 beds 2 baths1,136 sq. ft.291 Victoria Drive, Dexter, MI 48130
MLS# 81026003803Listed by: REAL BROKER LLC ANN ARBOR