6146 E Longview Drive, Haslett, MI 48823
Local realty services provided by:CENTURY 21 Dynamic Realty
6146 E Longview Drive,Eastlansing, MI 48823
$100,000
- 3 Beds
- 4 Baths
- 3,545 sq. ft.
- Single family
- Active
Upcoming open houses
- Thu, Apr 2301:30 pm - 02:30 pm
Listed by: jordan miedema
Office: lastbidrealestate.com
MLS#:65026010230
Source:MI_REALCOMP
Price summary
- Price:$100,000
- Price per sq. ft.:$28.21
- Monthly HOA dues:$255
About this home
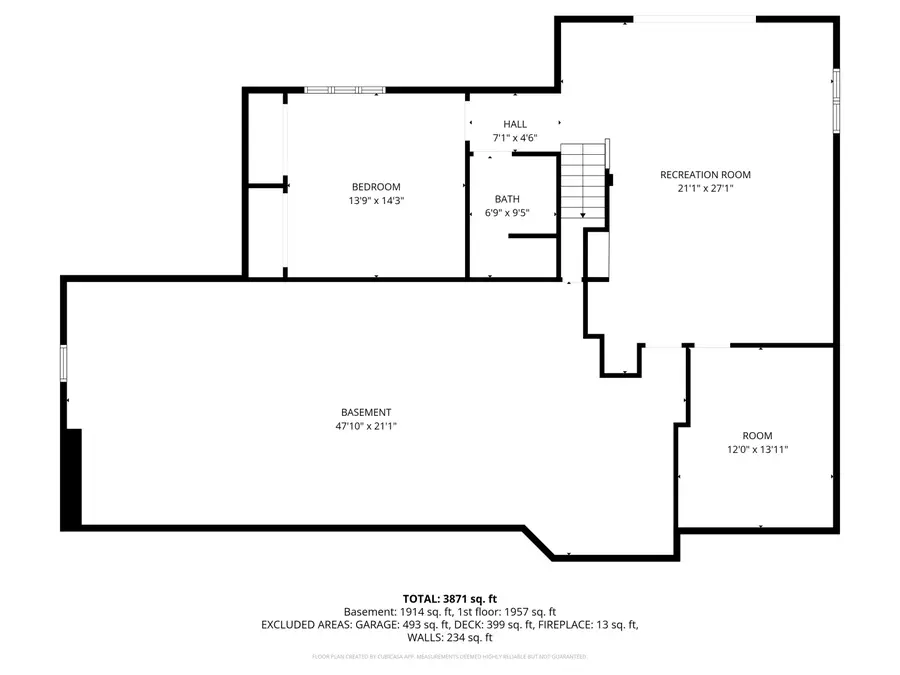
3,545 SF, 3 Bed, 3.5 Bath Condo in The Greens in East Lansing, MI. Online Real Estate Auction featuring a beautiful home being offered at auction to settle the family estate. A rare opportunity to purchase in an East Lansing desirable community. Main level features crown molding, kitchen with island, spacious living room with vaulted ceilings, fireplace, and hardwood floors, and dining area with hardwood floors and sliding doors to the deck. Also on the main floor is a large mudroom that serves as an office and laundry area, a primary bedroom with walk-in closet and shower, a 2nd bedroom with full bath, a den, and another half bath. The partially finished walkout basement provides space for entertaining, with a large recreation area & kitchenette, sliding doors overlooking a pond, office or potential bedroom, another bedroom, and full bath. The unfinished portion offers storage space & mechanical & utility room. 2-stall attached garage. Please see website at www.lastbidrealestate.com.
Contact an agent
Home facts
- Year built:2001
- Listing ID #:65026010230
- Added:35 day(s) ago
- Updated:April 22, 2026 at 10:01 AM
Rooms and interior
- Bedrooms:3
- Total bathrooms:4
- Full bathrooms:3
- Half bathrooms:1
- Rooms Total:6
- Flooring:Wood
- Basement Description:Full, Walk-Out Access
- Living area:3,545 sq. ft.
Heating and cooling
- Cooling:Central Air
- Heating:Forced Air, Natural Gas
Structure and exterior
- Roof:Shingle
- Year built:2001
- Building area:3,545 sq. ft.
- Lot area:0.1 Acres
- Architectural Style:Traditional
- Construction Materials:Brick
- Exterior Features:Private Entrance
- Foundation Description:Basement
Utilities
- Water:Public
- Sewer:Public Sewer
Finances and disclosures
- Price:$100,000
- Price per sq. ft.:$28.21
- Tax amount:$11,981
Features and amenities
- Laundry features:Laundry Room, Main Level
Parking
- Parking description:Attached, Concrete
- Garage spaces:2
New listings near 6146 E Longview Drive
- New
$449,900Active4 beds 3 baths2,404 sq. ft.5265 Haversham Drive, Haslett, MI 48840
MLS# 295208Listed by: COLDWELL BANKER PROFESSIONALS-E.L. - Open Sun, 2 to 4pmNew
$399,900Active4 beds 3 baths2,240 sq. ft.5599 Wood Valley Drive, Haslett, MI 48840
MLS# 295209Listed by: EXP REALTY - HASLETT - New
$500,000Active4 beds 3 baths3,238 sq. ft.5930 Eagles Way, Haslett, MI 48840
MLS# 295178Listed by: EXIT REALTY HOME PARTNERS
$399,000Pending4 beds 3 baths2,299 sq. ft.2876 Colony, East Lansing, MI 48823
MLS# 70525874Listed by: BERKSHIRE HATHAWAY HOMESERVICES MI- New
$299,900Active3 beds 2 baths2,478 sq. ft.6020 Skyline Drive, East Lansing, MI 48823
MLS# 295157Listed by: RE/MAX REAL ESTATE PROFESSIONALS - New
$129,000Active2 beds 2 baths1,072 sq. ft.6165 E Innkeepers Court #76, East Lansing, MI 48823
MLS# 295154Listed by: RE/MAX REAL ESTATE PROFESSIONALS - New
$159,900Active2 beds 1 baths777 sq. ft.5992 Greenman Street, Haslett, MI 48840
MLS# 295094Listed by: RE/MAX REAL ESTATE PROFESSIONALS DEWITT - New
$239,000Active3 beds 1 baths1,064 sq. ft.2158 Haslett Road, East Lansing, MI 48823
MLS# 295084Listed by: HOWARD HANNA REAL ESTATE EXECUTIVES - New
$824,900Active5 beds 5 baths4,457 sq. ft.6330 Island Lake Drive, East Lansing, MI 48823
MLS# 295070Listed by: RE/MAX REAL ESTATE PROFESSIONALS - Open Sun, 1 to 3pmNew
$425,000Active4 beds 3 baths2,158 sq. ft.5554 Earliglow Lane, Haslett, MI 48840
MLS# 295049Listed by: REAL ESTATE ONE 1ST