2527 Otter Place, Muskegon, MI 49444
Local realty services provided by:CENTURY 21 Curran & Oberski
2527 Otter Place,Muskegon, MI 49444
$494,530
- 4 Beds
- 4 Baths
- 2,369 sq. ft.
- Single family
- Pending
Listed by: thomas a serio
Office: real estate west
MLS#:71026012489
Source:MI_REALCOMP
Price summary
- Price:$494,530
- Price per sq. ft.:$149.68
- Monthly HOA dues:$41.67
About this home
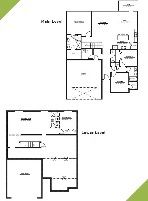
CUSTOM BUILD! The 'Cherry' is the largest ranch plan in Odeno and is situated on lot #180 with a walkout basement and views of the woods. The Cherry offers 3 bedrooms, 2 full bathrooms, a half bath, and main floor laundry. This spacious floor plan offers over 1550 sq ft of living space. Upgrades include 9' main floor ceilings, quartz countertops, vinyl plank flooring, 42'' upper cabinets, a 12x12 composite deck, tiled kitchen backsplash, tiled shower, and a 3rd stall garage. This plan hosts an open concept living area, kitchen with pantry and large island, generous dining area, and large living room. Spacious primary suite boasts a double vanity and a walk in closet. On the opposite side of the home, two more bedrooms and a full bath complete the main level. The basement is finished with a second family room, 4th bedroom and a full bathroom. Odeno is a custom home development in Fruitport Schools. Winding roads, walking trails, and community ponds set this neighborhood apart. Private and serene, yet just minutes from highway access, shopping, and recreation. Welcome to Odeno- Place of Many Hearts. Some photos may be of previously completed homes. Builder to verify finishes and final sale price prior to accepting an offer....
Contact an agent
Home facts
- Year built:2026
- Listing ID #:71026012489
- Added:5 day(s) ago
- Updated:April 02, 2026 at 11:58 PM
Rooms and interior
- Bedrooms:4
- Total bathrooms:4
- Full bathrooms:3
- Half bathrooms:1
- Rooms Total:10
- Kitchen Description:Pantry
- Basement Description:Full, Walk-Out Access
- Living area:2,369 sq. ft.
Heating and cooling
- Cooling:Central Air
- Heating:Forced Air, Natural Gas
Structure and exterior
- Roof:Composition
- Year built:2026
- Building area:2,369 sq. ft.
- Lot area:0.37 Acres
- Architectural Style:Ranch
- Construction Materials:Vinyl Siding
- Exterior Features:Deck
- Foundation Description:Basement
Utilities
- Water:Public
- Sewer:Public Sewer
Finances and disclosures
- Price:$494,530
- Price per sq. ft.:$149.68
Features and amenities
- Laundry features:Laundry Room, Main Level
- Amenities:Pantry
Parking
- Parking description:Attached, Concrete, Garage Door Opener
- Garage spaces:3
New listings near 2527 Otter Place
- New
$269,900Active4 beds 1 baths1,280 sq. ft.1351 Carr Road, Muskegon, MI 49442
MLS# 71026013513Listed by: LEGACY REAL ESTATE PARTNERS - New
$77,900Active2 beds 1 baths616 sq. ft.2820 Park Street, Muskegon, MI 49444
MLS# 26013472Listed by: REAL ESTATE WEST - New
$149,900Active3 beds 1 baths1,215 sq. ft.16 E Cleveland Avenue, Muskegon, MI 49444
MLS# 71026013470Listed by: GREENRIDGE - NEXES - New
$139,900Active4 beds 1 baths1,020 sq. ft.71 Crescent Avenue, Muskegon, MI 49444
MLS# 71026013430Listed by: RE/MAX WEST - New
$164,900Active2 beds 1 baths1,152 sq. ft.1109 Francis Avenue, Muskegon, MI 49442
MLS# 26013448Listed by: RE/MAX WEST - New
$199,900Active2 beds 1 baths1,080 sq. ft.3008 Dawes Road, Muskegon, MI 49441
MLS# 26013431Listed by: COLDWELL BANKER WOODLAND SCHMIDT MUSKEGON - New
$329,000Active4 beds 2 baths1,952 sq. ft.760 E Wedgewood, Muskegon, MI 49445
MLS# 70523104Listed by: FIVE STAR REAL ESTATE (MUSKEGON) - New
$389,900Active5 beds 4 baths2,725 sq. ft.2447 Roberts Road, Muskegon, MI 49445
MLS# 26013383Listed by: RE/MAX UNITED (BELTLINE) - Open Sat, 12 to 1:30pmNew
$359,900Active3 beds 2 baths2,326 sq. ft.3658 Stephanie Lane, Muskegon, MI 49444
MLS# 26013390Listed by: COLDWELL BANKER WOODLAND SCHMIDT GRAND HAVEN - New
$29,000Active2 beds 1 baths988 sq. ft.2128 8th Street, Muskegon, MI 49444
MLS# 26013401Listed by: SMALLEGAN REAL ESTATE