9441 Fields Drive Unit: 13, Zeeland, MI 49464
Local realty services provided by:CENTURY 21 Dynamic Realty
Listed by: ron webb
Office: keller williams harbortown
MLS#:71026002511
Source:MI_REALCOMP
Price summary
- Price:$519,900
- Price per sq. ft.:$166.96
- Monthly HOA dues:$26.67
About this home
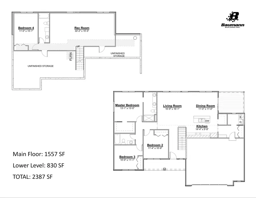
Baumann Building & Harvest Fields is offering this fabulous floor plan called the '' Bristol '' which offers 1557 sq.ft. of finished living space on the main floor which includes 3 bedrooms and 2 full baths. Master suite includes a master bath and walk-in closet. On the main floor you'll also find an open great room with cathedral ceilings, Kitchen w/ island, snack bar with quartz countertops & a large walk-in pantry, dining area with sliders to deck. Full appliance package, a main floor laundry plus a 2 1/2 stall garage for all your storage needs. You have an additional Bedroom, Bath & Family room finished in the walkout lower level to enjoy with lots of storage. Take a drive over and check Harvest Fields out and contact us today for this home or reserving your lot for your own custom home. We have 3 homes under construction currently and 4 lots left. Give me a call today to see what we have to offer. At Baumann Building we have built our reputation round our relationships with our clients. Our #1 priority is ensuring we know you well enough to create for you the perfect home....
Contact an agent
Home facts
- Year built:2026
- Listing ID #:71026002511
- Added:55 day(s) ago
- Updated:March 17, 2026 at 07:59 PM
Rooms and interior
- Bedrooms:4
- Total bathrooms:3
- Full bathrooms:3
- Rooms Total:7
- Flooring:Carpet
- Kitchen Description:Pantry
- Basement Description:Full, Walk-Out Access
- Living area:2,387 sq. ft.
Heating and cooling
- Cooling:Ceiling Fans, Central Air
- Heating:Forced Air, Natural Gas
Structure and exterior
- Roof:Composition
- Year built:2026
- Building area:2,387 sq. ft.
- Lot area:0.24 Acres
- Lot Features:Level
- Architectural Style:Ranch
- Construction Materials:Stone, Vinyl Siding
- Exterior Features:Deck, Patio, Porch
- Foundation Description:Basement
Utilities
- Water:Public
- Sewer:Public Sewer
Finances and disclosures
- Price:$519,900
- Price per sq. ft.:$166.96
- Tax amount:$110
Features and amenities
- Appliances:Dishwasher, Microwave, Range, Refrigerator
- Laundry features:Laundry Room, Main Level
- Amenities:Pantry, Vaulted Ceilings
Parking
- Parking description:Attached, Concrete, Garage Door Opener
- Garage spaces:2
New listings near 9441 Fields Drive Unit: 13
- New
$549,900Active3 beds 3 baths1,848 sq. ft.938 Mid Bluff, Zeeland, MI 49464
MLS# 70519395Listed by: RE/MAX LAKESHORE
$369,900Pending3 beds 3 baths1,354 sq. ft.8905 N Clearwater, Zeeland, MI 49464
MLS# 70519351Listed by: HOMEREALTY HOLLAND
$369,900Pending3 beds 3 baths2,378 sq. ft.8905 N Clearwater Drive, Zeeland, MI 49464
MLS# 71026009671Listed by: HOMEREALTY HOLLAND- New
$553,330Active4 beds 3 baths2,160 sq. ft.7383 Black Brook, Zeeland, MI 49464
MLS# 70519077Listed by: BOSGRAAF PROPERTIES OF MICHIGAN LLC - New
$449,900Active3 beds 3 baths2,272 sq. ft.600 W Alice Avenue, Zeeland, MI 49464
MLS# 71026009285Listed by: WEST EDGE REAL ESTATE LLC - New
$250,000Active2 beds 1 baths1,080 sq. ft.6341 Adams Street, Zeeland, MI 49464
MLS# 71026009245Listed by: CITY2SHORE REAL ESTATE
$375,000Pending4 beds 2 baths1,078 sq. ft.2860 104th, Zeeland, MI 49464
MLS# 70518745Listed by: BELLABAY REALTY (SW)
$375,000Pending5 beds 2 baths1,897 sq. ft.11187 Summer Drive, Zeeland, MI 49464
MLS# 26009073Listed by: KELLER WILLIAMS HARBORTOWN- New
$675,000Active3 beds 2 baths1,805 sq. ft.4596 Winding Creek Lane, Zeeland, MI 49464
MLS# 26009079Listed by: CITY2SHORE REAL ESTATE INC.
$475,000Pending4 beds 3 baths1,536 sq. ft.6260 Pine Crest, Zeeland, MI 49464
MLS# 70518046Listed by: KELLER WILLIAMS HARBORTOWN