381 Old Glory Drive Ne, Alexandria, MN 56308
Local realty services provided by:CENTURY 21 FM Realty
381 Old Glory Drive Ne,Alexandria, MN 56308
$469,900
- 2 Beds
- 2 Baths
- 1,746 sq. ft.
- Single family
- Active
Listed by: rychel larson
Office: realty one group choice
MLS#:6788765
Source:NSMLS
Price summary
- Price:$469,900
- Price per sq. ft.:$269.13
- Monthly HOA dues:$300
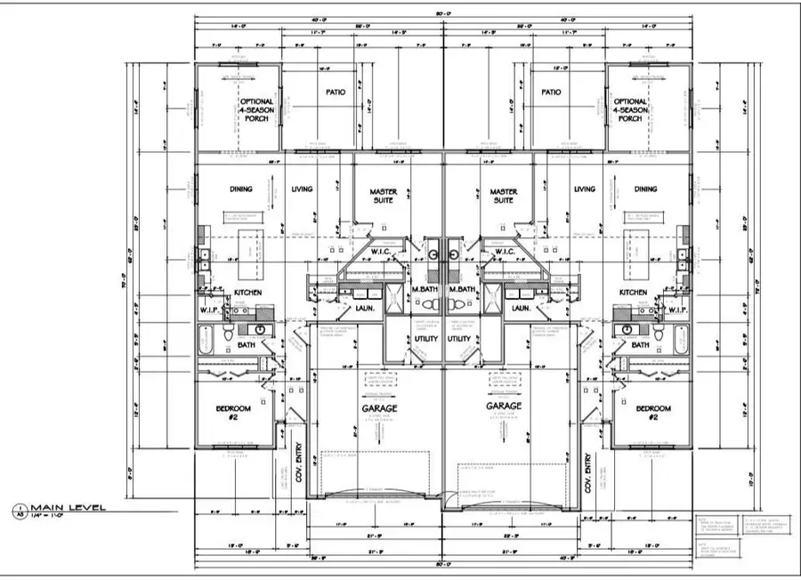
About this home
NEW CONSTRUCTION – Coming July 2026!
Act early and you may have the rare opportunity to choose your own finishings—a unique chance to
personalize your new home to perfectly match your style and taste.
Welcome to Geneva East Estates, where easy living meets exceptional quality. This pristine, newly
constructed townhome offers a bright, open floor plan with soaring vaulted ceilings and upgraded finishes
throughout. The gourmet kitchen is designed to impress, featuring a granite island, quality cabinetry, and
a spacious walk-in pantry.
Unwind in the elegant Owner’s Suite with beautifully tiled finishes, or enjoy peaceful mornings and lively
afternoons in the cozy four-season room overlooking a backyard filled with natural wildlife.
Built with no shortcuts taken, this home features an ICF-insulated foundation and a poured concrete slab
for durability and energy efficiency—providing the potential for warm, comfortable floors thanks to
in-floor heat tubing already installed (just add your preferred boiler setup). Forced air heating is also
in place for year-round comfort.
Step outside to a generous patio space surrounded by nature, and take advantage of the oversized, heated
garage—perfect for all your storage and hobby needs.
Located just a short golf cart ride from Geneva Golf Club and Geneva Grill, and minutes from the Central
Lakes Trail and downtown, this is the ideal spot to enjoy comfort, convenience, and a relaxed lifestyle.
Discover the good life at Geneva East Estates—where quality meets comfort in every detail....
Contact an agent
Home facts
- Year built:2026
- Listing ID #:6788765
- Added:184 day(s) ago
- Updated:March 19, 2026 at 12:06 PM
Rooms and interior
- Bedrooms:2
- Total bathrooms:2
- Full bathrooms:1
- Dining Description:Breakfast Bar, Informal Dining Room
- Bathrooms Description:Main Floor Full Bath
- Kitchen Description:Dishwasher, Microwave, Range, Refrigerator, Stainless Steel Appliances
- Basement:Yes
- Living area:1,746 sq. ft.
Heating and cooling
- Cooling:Central Air
- Heating:Forced Air, In-Floor Heating
- Central air:Yes
Structure and exterior
- Roof:Age 8 Years or Less
- Year built:2026
- Building area:1,746 sq. ft.
- Lot area:0.12 Acres
- Exterior Features:In-Ground Sprinkler System
- Levels:1 Story
Utilities
- Water:Shared System, Well
- Sewer:City Sewer - Connected
Finances and disclosures
- Price:$469,900
- Price per sq. ft.:$269.13
- Tax amount:$3,038 (2025)
Features and amenities
- Appliances:Microwave, Range, Refrigerator, Stainless Steel Appliances, Water Softener Owned
- Amenities:Air-To-Air Exchanger, Electric Water Heater, Water Filtration System, Water Softener Owned
Parking
- Parking description:Attached Garage, Concrete, Floor Drain, Garage Door Opener, Heated Garage, Insulated Garage
- Garage:Yes
- Garage spaces:2
New listings near 381 Old Glory Drive Ne
- New
$509,888Active5 beds 3 baths3,228 sq. ft.3177 Lakecrest Road Ne, Alexandria, MN 56308
MLS# 7035352Listed by: EDINA REALTY - New
$519,000Active2 beds 1 baths720 sq. ft.1744 Old Cty Road 120 Ne #3, Alexandria, MN 56308
MLS# 7038905Listed by: RANDY FISCHER REAL ESTATE, INC - New
$905,000Active11.09 Acres4XXX S Broadway, Alexandria, MN 56308
MLS# 7037733Listed by: ORB REAL ESTATE - New
$499,000Active17.69 AcresTBD State Hwy 29 N, Alexandria, MN 56308
MLS# 7037964Listed by: ORB REAL ESTATE - New
$724,900Active3 beds 3 baths2,304 sq. ft.2558 County Road 120 Ne, Alexandria, MN 56308
MLS# 7032847Listed by: COLDWELL BANKER CROWN REALTORS - New
$189,900Active0.07 Acres510 Broadway Street, Alexandria, MN 56308
MLS# 7035796Listed by: KVALE REAL ESTATE - Open Sat, 1 to 3pmNew
$349,900Active4 beds 3 baths2,688 sq. ft.219 12th Avenue W, Alexandria, MN 56308
MLS# 7035117Listed by: COMPASS - New
$655,000Active4 beds 3 baths2,905 sq. ft.2002 Hazel Hill Road Se, Alexandria, MN 56308
MLS# 7029083Listed by: COUNSELOR REALTY INC OF ALEX - Open Thu, 4 to 5:30pmNew
$449,000Active4 beds 4 baths3,687 sq. ft.205 Ashley Lane, Alexandria, MN 56308
MLS# 7034770Listed by: COUNSELOR REALTY INC OF ALEX
$799,995Pending4 beds 4 baths3,360 sq. ft.2311 S Burgen Drive Se, Alexandria, MN 56308
MLS# 7027137Listed by: REAL ESTATE BY JO, LLC