561X Heather Ridge Court, Shoreview, MN 55126
Local realty services provided by:CENTURY 21 FM Realty
Listed by: belinda s. nachtsheim, leonard w. pratt
Office: edina realty, inc.
MLS#:6825660
Source:NSMLS
Price summary
- Price:$1,268,500
- Price per sq. ft.:$460.77
About this home
Rare Opportunity: Build Your Dream Home with Pratt Homes on a Private Shoreview Cul-de-sac Lot
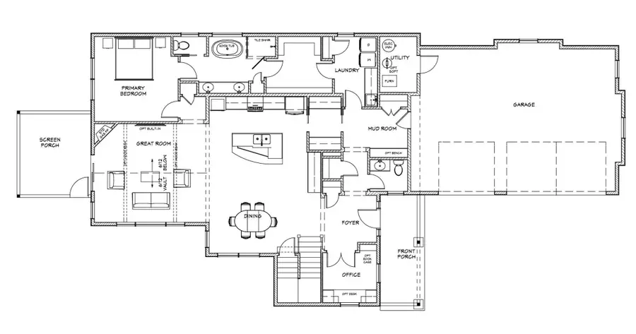
Create your personal sanctuary surrounded by woods and wetlands on this 1.54-acre lot in a prime Shoreview location. Nestled at the end of a quiet cul-de-sac, this is a rare opportunity to partner with renowned Pratt Homes to design and build the custom home you've always envisioned. This proposed TO-BE-BUILT plan emphasizes main-level living, blending functional design with high quality finishes. The open floor plan is an entertainer's delight, featuring a vaulted great room, a gourmet kitchen with a convenient butler's pantry, a generous dining area, and a seamless flow designed for modern life. The main-level owner's suite is a private retreat with a luxury bath and a large walk-in closet connected to laundry. A charming screened-in porch provides a peaceful space to enjoy the surrounding woods and wetlands. A dedicated main-level office, half bath and mud room complete the main level. The upper level offers a large family room, two additional bedrooms, and a 3/4 bath. Your Home, Your Design - The provided floor plan is just the beginning. Pratt Homes offers full customization options, allowing you to personalize every finish and fixture to reflect your unique style and needs. You can modify this plan or collaborate with our expert team to design the home you desire. Premier Location & Lifestyle - This property is situated in the highly sought-after Mounds View School District, a significant draw for families. Shoreview itself provides a coveted lifestyle with abundant natural amenities, offering easy access to beautiful lakes, beaches, parks, trails, and open spaces for endless outdoor recreation. Don't miss this chance to build a legacy home in an irreplaceable location. Contact us today to schedule a site tour and begin the journey of building your dream home....
Contact an agent
Home facts
- Year built:2026
- Listing ID #:6825660
- Added:94 day(s) ago
- Updated:March 14, 2026 at 12:05 PM
Rooms and interior
- Bedrooms:3
- Total bathrooms:3
- Full bathrooms:1
- Half bathrooms:1
- Dining Description:Breakfast Bar, Informal Dining Room
- Bathrooms Description:Main Floor 1/2 Bath, Main Floor Full Bath, Separate Shower and Tub, Walk-In Shower Stall
- Basement:Yes
- Living area:2,753 sq. ft.
Heating and cooling
- Cooling:Central Air
- Heating:Forced Air
- Central air:Yes
Structure and exterior
- Roof:Asphalt, Pitched
- Year built:2026
- Building area:2,753 sq. ft.
- Lot area:1.54 Acres
- Lot Features:Irregular Lot, Tree Coverage - Heavy, Underground Utilities
- Levels:1 1/2 Story
Utilities
- Water:City Water - In Street
- Sewer:City Sewer - In Street
Finances and disclosures
- Price:$1,268,500
- Price per sq. ft.:$460.77
- Tax amount:$2,192 (2025)
Features and amenities
- Amenities:Air-To-Air Exchanger, Electric Water Heater
Parking
- Parking description:Asphalt, Attached Garage, Garage Door Opener, Shared Driveway
- Garage:Yes
- Garage spaces:4
New listings near 561X Heather Ridge Court
- New
$250,000Active2 beds 2 baths575 sq. ft.1923 Bluestem Lane #22, Shoreview, MN 55126
MLS# 7035939Listed by: RE/MAX RESULTS - New
$250,000Active2 beds 2 baths1,235 sq. ft.1923 Bluestem Lane #22, Shoreview, MN 55126
MLS# 7035939Listed by: RE/MAX RESULTS - New
$109,900Active2 beds 2 baths966 sq. ft.3431 Kent Street #801, Shoreview, MN 55126
MLS# 7022803Listed by: RE/MAX RESULTS - New
$109,900Active2 beds 2 baths966 sq. ft.3431 Kent Street #801, Shoreview, MN 55126
MLS# 7022803Listed by: RE/MAX RESULTS - Open Sat, 12 to 2pmNew
$447,900Active3 beds 3 baths2,226 sq. ft.4318 Highland Drive, Saint Paul, MN 55126
MLS# 7026041Listed by: EXP REALTY - Open Sat, 12:30 to 1:30pmNew
$537,000Active4 beds 3 baths2,307 sq. ft.997 Carlton Drive, Shoreview, MN 55126
MLS# 7035577Listed by: FATHOM REALTY MN, LLC - New
$670,000Active4 beds 4 baths2,850 sq. ft.1333 Bucher Avenue, Shoreview, MN 55126
MLS# 7011920Listed by: EDINA REALTY, INC.
$448,000Pending4 beds 3 baths2,692 sq. ft.3790 Rustic Place, Shoreview, MN 55126
MLS# 7034869Listed by: RE/MAX RESULTS- Open Sat, 10am to 12pmNew
$515,000Active5 beds 3 baths2,481 sq. ft.4637 Dale Street N, Shoreview, MN 55126
MLS# 7034618Listed by: RE/MAX RESULTS - Open Sun, 2 to 3:30pmNew
$569,900Active5 beds 3 baths2,844 sq. ft.4415 Victoria Street N, Shoreview, MN 55126
MLS# 6809825Listed by: EDINA REALTY, INC.