1104 SE 8th Avenue, Waseca, MN 56093
Local realty services provided by:CENTURY 21 Atwood
1104 SE 8th Avenue,Waseca, MN 56093
$379,900
- 3 Beds
- 2 Baths
- 3,040 sq. ft.
- Single family
- Pending
Listed by: katyana miller
Office: miller real estate
MLS#:7039311
Source:MN_RASM
Price summary
- Price:$379,900
- Price per sq. ft.:$124.97
About this home
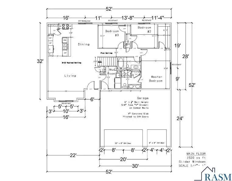
**UNDER CONSTRUCTION LOOKOUT RAMBLER W/FULL UNFINISHED BASEMENT SPEC HOME** One level living lookout rambler with a full unfinished basement. This home features attached 3 car garage, open concept floor plan for living room, dining and kitchen. Finishes include Granite countertops, soft close drawers, stainless steel appliances, tile backsplash and pantry in kitchen. Private primary suite with walk in shower and dual sinks, Quartz tops in bathrooms, laundry/mud room off of the garage entrance. Unfinished lower level offers plenty of storage space and contains possible future 4th & 5th bedrooms, bathroom and family room. Inquire about the 1% preferred lender incentive.
Contact an agent
Home facts
- Year built:2025
- Listing ID #:7039311
- Added:94 day(s) ago
- Updated:March 27, 2026 at 06:08 PM
Rooms and interior
- Bedrooms:3
- Total bathrooms:2
- Full bathrooms:1
- Dining Description:Informal Dining Room, Open Floor Plan
- Bathrooms Description:Main Floor Full Bath
- Kitchen Description:Dishwasher, Microwave, Range/Stove, Refrigerator
- Basement Description:Daylight/Lookout Windows, Unfinished
- Living area:3,040 sq. ft.
Heating and cooling
- Cooling:Central
- Heating:Forced Air
Structure and exterior
- Roof:Asphalt Shingles
- Year built:2025
- Building area:3,040 sq. ft.
- Lot area:0.3 Acres
- Architectural Style:SF Single Family
- Construction Materials:Stone, Vinyl
- Foundation Description:Frame/Wood
- Levels:1 Story
Utilities
- Water:City
- Sewer:City Sewer
Finances and disclosures
- Price:$379,900
- Price per sq. ft.:$124.97
- Tax amount:$874
Features and amenities
- Appliances:Refrigerator
- Laundry features:Washer/Dryer Hookups
- Amenities:Kitchen Center Island, Vaulted Ceilings
Parking
- Parking description:Attached Garage
- Garage spaces:3
New listings near 1104 SE 8th Avenue
- Open Thu, 4 to 6pmNew
$395,000Active3 beds 2 baths2,288 sq. ft.14303 345th Avenue, Waseca, MN 56093
MLS# 7057526Listed by: RE/MAX VENTURE - New
$205,000Active4 beds 3 baths2,520 sq. ft.114 6th Avenue Nw, Waseca, MN 56093
MLS# 7056427Listed by: RE/MAX VENTURE - New
$364,900Active3 beds 2 baths1,572 sq. ft.1116 SE 11th Avenue, Waseca, MN 56093-1229
MLS# 7039985Listed by: MILLER REAL ESTATE - New
$364,900Active3 beds 2 baths1,572 sq. ft.1116 11th Avenue Se, Waseca, MN 56093
MLS# 7051442Listed by: MILLER REAL ESTATE - New
$438,000Active3 beds 2 baths1,579 sq. ft.424 22nd Avenue Nw, Waseca, MN 56093
MLS# 7054385Listed by: EDINA REALTY, INC. - New
$369,500Active3 beds 4 baths2,520 sq. ft.1305 5th Street Ne, Waseca, MN 56093
MLS# 7053716Listed by: RE/MAX MASTERS
$335,000Active3 beds 3 baths2,512 sq. ft.31805 110th Street, Waseca, MN 56093
MLS# 6788650Listed by: KELLER WILLIAMS PREFERRED RLTY
$259,500Active3 beds 2 baths1,124 sq. ft.901 5th Street Sw, Waseca, MN 56093
MLS# 7049224Listed by: RE/MAX MASTERS
$305,000Active3 beds 2 baths1,516 sq. ft.42365 150th Street, Waseca, MN 56093
MLS# 7040418Listed by: EDINA REALTY, INC.
$210,000Active2 beds 1 baths1,056 sq. ft.709 8th Avenue Nw, Waseca, MN 56093
MLS# 7049733Listed by: EDINA REALTY, INC.