4524 SW Berkshire Drive, Lees Summit, MO 64083
Local realty services provided by:CENTURY 21 Team Elite
4524 SW Berkshire Drive,Lee's Summit, MO 64083
$668,585
- 4 Beds
- 3 Baths
- 3,029 sq. ft.
- Single family
- Active
Listed by: missy nance, jeffrey woodruff
Office: inspired realty of kc, llc.
MLS#:2609083
Source:MOKS_HL
Price summary
- Price:$668,585
- Price per sq. ft.:$220.73
- Monthly HOA dues:$57.92
About this home
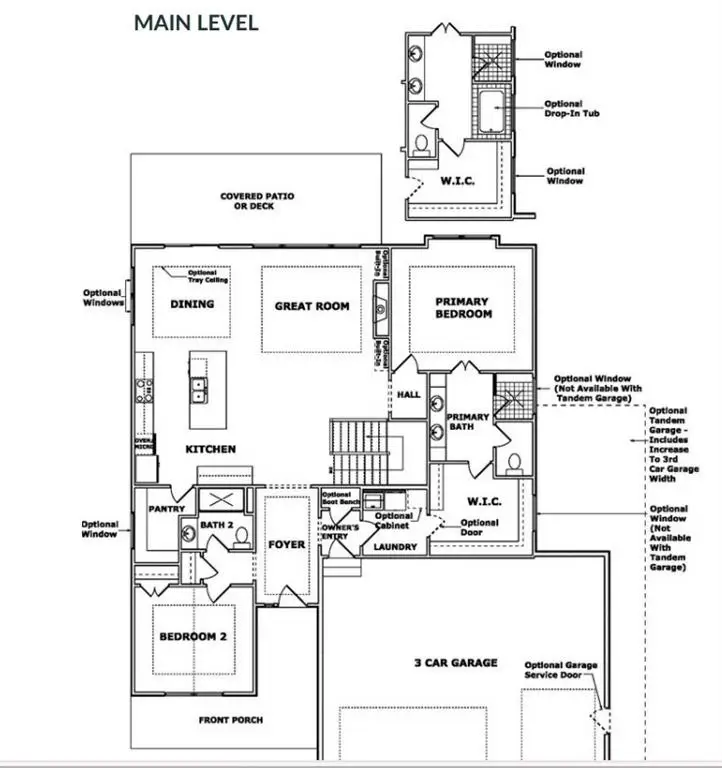
Welcome home to the beautiful Fairfield Expanded by Inspired Homes! Estimated completion in August, limited design selection available until 4/10! Offering over 3,000 square feet of living space, this beautifully designed home sits on a daylight lot.
Enjoy outdoor living on the expansive 20-foot, low-maintenance deck featuring aluminum railing and composite decking. Inspired Homes includes thoughtful upgrades such as extra-deep garages, full-yard sod with irrigation, garage door openers, and a gas cooktop paired with built-in stainless steel GE appliances. You’ll also find low-E Pella windows and doors, custom wood cabinetry, tray ceilings, and more throughout.
Designer touches elevate this home even further with upgraded lighting, a spacious primary shower, upgraded quartz countertops, and direct access from the primary closet to the laundry room. The oversized walk-in pantry offers exceptional storage and convenience. The finished basement is perfect for entertaining, complete with a custom wet bar, a second fireplace, two additional bedrooms, a full bath, and ample unfinished storage space. BUY WITH
PEACE OF MIND, the convenience of new construction backed by a 2-10 Home Warranty, offering 10 year structural, 2
year mechanical, 1 year workmanship Located in the maintenance-provided section of Kensington Farms, homeowners
enjoy worry-free living that include weekly lawn mowing, a 6-step fertilizer program, annual grub treatment, spring re-mulch and cleanup, and snow removal for 2"+, all for $160/month. Neighborhood amenities include a pool, playground,
and greenspace....
Contact an agent
Home facts
- Year built:2026
- Listing ID #:2609083
- Added:7 day(s) ago
- Updated:April 05, 2026 at 02:13 PM
Rooms and interior
- Bedrooms:4
- Total bathrooms:3
- Full bathrooms:3
- Rooms Total:12
- Kitchen Description:Cooktop, Dishwasher, Disposal, Microwave
- Basement:Yes
- Basement Description:Daylight, Egress Window(s), Finished
- Living area:3,029 sq. ft.
Heating and cooling
- Cooling:Electric
- Heating:Forced Air Gas
Structure and exterior
- Roof:Composition
- Year built:2026
- Building area:3,029 sq. ft.
- Lot Features:City Limits
- Architectural Style:Reverse 1.5 Story
- Construction Materials:Lap
Utilities
- Water:City/Public
- Sewer:Public Sewer
Finances and disclosures
- Price:$668,585
- Price per sq. ft.:$220.73
Features and amenities
- Appliances:Back Flow Device, Built-In Oven, Dishwasher, Disposal, Microwave, Stainless Steel Appliance(s)
- Amenities:Back Flow Device, Ceiling Fan(s), Custom Cabinets, Painted Cabinets, Pantry, Play Area, Pool, Stained Cabinets, Trail(s), Walk-In Closet(s), Wet Bar
- Pool features:Swimming Pool
Parking
- Parking description:Attached
- Garage:Yes
- Garage spaces:3
New listings near 4524 SW Berkshire Drive
- New
$440,000Active4 beds 3 baths2,911 sq. ft.3910 SW Linden Lane, Lee's Summit, MO 64082
MLS# 2611979Listed by: REECENICHOLS - LEES SUMMIT - New
$550,000Active4 beds 4 baths3,714 sq. ft.1256 SW Summit Crossing Circle, Lee's Summit, MO 64081
MLS# 2608577Listed by: BAIRD REALTY GROUP - New
$559,000Active3 beds 3 baths1,780 sq. ft.1032 SW Armie Street, Lee's Summit, MO 64081
MLS# 2609063Listed by: REALTY EXECUTIVES - New
$343,000Active2 beds 2 baths1,250 sq. ft.4130 SW Minnesota Drive, Lee's Summit, MO 64082
MLS# 2612208Listed by: REECENICHOLS SHEWMAKER
$275,000Pending3 beds 2 baths2,423 sq. ft.608 NE Birchwood Drive, Lee's Summit, MO 64086
MLS# 2612235Listed by: KELLER WILLIAMS PLATINUM PRTNR- New
$255,000Active3 beds 1 baths1,032 sq. ft.505 NE Richardson Place, Lee's Summit, MO 64086
MLS# 2611993Listed by: REECENICHOLS - OVERLAND PARK - New
$349,900Active3 beds 3 baths1,957 sq. ft.516 SE Claremont Street, Lees Summit, MO 64063
MLS# 60319857Listed by: PLATINUM REALTY OF MISSOURI, LLC - New
$225,000Active3 beds 3 baths1,367 sq. ft.1640 SW Madison Street, Lee's Summit, MO 64081
MLS# 2611903Listed by: PLATINUM REALTY LLC - New
$270,000Active3 beds 3 baths1,792 sq. ft.605 SE 5th Street, Lee's Summit, MO 64063
MLS# 2612006Listed by: KW KANSAS CITY METRO - New
$220,000Active2 beds 3 baths1,361 sq. ft.5568 NW Moonlight Meadow Drive, Lee's Summit, MO 64064
MLS# 2608855Listed by: EXP REALTY LLC