187 Wildwood Drive, Linn Creek, MO 65052
Local realty services provided by:CENTURY 21 Community
Listed by: richard cinkosky
Office: coldwell banker lake country
MLS#:3582780
Source:MO_LOBR
Price summary
- Price:$279,000
- Price per sq. ft.:$134.39
About this home
Great home to raise your family. 3 bed,(could be 4), 2 bath. Oversized 2 car garage with extra room for storage and a work area. Did I mention it has a geothermal HVAC system? All this on 4 acres just 3 miles from Camdenton off V Hwy in Linn Creek area. Great neighborhood where all the lots are over 3 acres and the neighbors wave as you drive by. Beside the garage, there is a large covered concrete area in the front of the house to park on. No getting wet unloading your groceries. Out side you will find two decks and a gazebo fwhen it's time to enjoy the outside. Have pets and or children? 4 acres for them to explore and play. Home is about 3 miles from the Lake of the Ozarks and about 7 from Osage beach. Sellers paid for an inspection before putting it up for sale and have that available for viewing. Call me and make your appointment for your private showing today before this great family home gets away.
Contact an agent
Home facts
- Year built:1995
- Listing ID #:3582780
- Added:270 day(s) ago
- Updated:February 14, 2026 at 05:41 PM
Rooms and interior
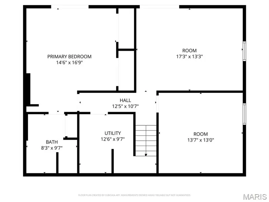
- Bedrooms:3
- Total bathrooms:2
- Full bathrooms:2
- Flooring:Laminate
- Kitchen Description:Dishwasher, Microwave, Range, Refrigerator, Stove
- Basement:Yes
- Basement Description:Finished, Sump Pump, Walk Out Access
- Living area:1,956 sq. ft.
Heating and cooling
- Cooling:Central Air
- Heating:Geothermal
- Central air:Yes
Structure and exterior
- Year built:1995
- Building area:1,956 sq. ft.
- Lot area:4.1 Acres
- Lot Features:Acreage, Open Lot, Outside City Limits, Wooded
- Architectural Style:SplitLevel
- Construction Materials:Lap Siding, Vinyl Siding
- Exterior Features:Deck
- Foundation Description:Poured
Utilities
- Water:Shared Well
- Sewer:Septic Tank
Finances and disclosures
- Price:$279,000
- Price per sq. ft.:$134.39
- Tax amount:$1,141 (2024)
Features and amenities
- Appliances:Dishwasher, Microwave, Range, Refrigerator, Stove, Water Softener Owned
Parking
- Parking description:Concrete Driveway, Detached, Driveway, Garage, Garage Door Opener, Gravel Driveway
- Garage:Yes
- Garage spaces:2
New listings near 187 Wildwood Drive
- New
$1,250,000Active5 beds 3 baths3,671 sq. ft.926 Fontana Lane, Linn Creek, MO 65052
MLS# 3584770Listed by: ALBERS REAL ESTATE ADVISORS - New
$875,000Active5 beds 5 baths4,890 sq. ft.374 Fawn Meadows Drive, Linn Creek, MO 65052
MLS# 3584239Listed by: KELLER WILLIAMS L.O. REALTY - New
$125,000Active1 beds 1 baths720 sq. ft.1045 Thousand Acres Road, Linn Creek, MO 65052
MLS# 3584604Listed by: COLDWELL BANKER LAKE COUNTRY
$139,000Active0 AcresTBD Oak Knoll Road, Linn Creek, MO 65052
MLS# 3584020Listed by: RE/MAX LAKE OF THE OZARKS
$184,900Active3 beds 2 baths1,269 sq. ft.365 Osage Heritage Circle #2C, Linn Creek, MO 65052
MLS# 26009119Listed by: OZARK REALTY
$450,000Active3 beds 2 baths2,328 sq. ft.580 Burch Valley Road, Linn Creek, MO 65052
MLS# 3584253Listed by: EXP REALTY, LLC
$380,000Active3 beds 3 baths1,883 sq. ft.19 Chippewa Place, Linn Creek, MO 65052
MLS# 3584116Listed by: ALBERS REAL ESTATE ADVISORS
$475,000Active5 beds 3 baths2,688 sq. ft.662 Grandview Lane, Linn Creek, MO 65052
MLS# 3584131Listed by: RE/MAX OF SEDALIA
$249,900Active3 AcresTbd Duffers Drive, Linn Creek, MO 65052
MLS# 3583600Listed by: EXP REALTY, LLC
$449,900Active3 beds 2 baths2,904 sq. ft.42 Grove Estates Drive, Linn Creek, MO 65052
MLS# 3583890Listed by: KELLER WILLIAMS L.O. REALTY