327 Old Mill Village Drive, Apex, NC 27502
Local realty services provided by:CENTURY 21 Triangle Group
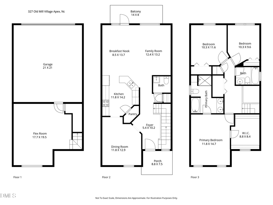
327 Old Mill Village Drive,Apex, NC 27502
$415,000
- 3 Beds
- 3 Baths
- 2,144 sq. ft.
- Townhouse
- Pending
Listed by: johnny chappell, kalpna jean patel
Office: compass -- raleigh
MLS#:10141354
Source:RD
Price summary
- Price:$415,000
- Price per sq. ft.:$193.56
- Monthly HOA dues:$185
About this home
Experience effortless living in this 2,144 sq-foot home at 327 Old Mill Village. Located in a highly sought-after community, it is the sweet spot where the vibrant energy of Downtown Apex meets incredible value.
Freshly painted in a crisp, cohesive palette, this 3-bedroom, 2.5-bath pad is dialed in and ready to drop squarely where you can thrive. Everything here moves with intention, the living spaces link up seamlessly, keeping the vibe high and the conversation close. The kitchen is always front and center, a sleek command center for quick bites before you hit the historic Salem Street scene.
Need an open-air exhale? The deck off the main living area is your new VIP section, a spot that quietly masters the art of the daily wind-down. The primary suite is a sanctuary of natural light and comfort, your own zone featuring a huge WIC and ensuite. Additional rooms pivot faster than a weekend plan, shifting from work mode to guest-ready or creative use without breaking a sweat.
And the finished basement is pure adaptable space, ready to become whatever your lifestyle demands: a media room, office, or fitness room. The practical side is hemmed in: smart storage and a two-car garage that makes arrivals and exits smoother, whether you're cruising across Apex, into Cary, or anywhere else the Triangle pulls you.
The HOA handles the hard work, making it easy to lock and leave and keep your focus on living, not maintenance. With no rental cap and a location poised for continued growth, this home offers flexibility that's increasingly hard to find. Downtown Apex, sought-after schools, parks, trails, recreation facilities, and a community pool are all part of the routine. This one simply works.
Contact an agent
Home facts
- Year built:2007
- Listing ID #:10141354
- Added:50 day(s) ago
- Updated:March 06, 2026 at 10:56 PM
Rooms and interior
- Bedrooms:3
- Total bathrooms:3
- Full bathrooms:2
- Half bathrooms:1
- Rooms Total:8
- Flooring:Carpet, Hardwood, Vinyl
- Dining Description:Living/Dining Room Combination
- Bathrooms Description:Bathtub Only, Bathtub/Shower Combination, Double Vanity, Separate Shower, Soaking Tub
- Kitchen Description:Dishwasher, Disposal, Free-Standing Electric Range, Microwave, Plumbed For Ice Maker, Refrigerator
- Living area:2,144 sq. ft.
Heating and cooling
- Cooling:Ceiling Fan(s), Central Air
- Heating:Forced Air
Structure and exterior
- Roof:Shingle
- Year built:2007
- Building area:2,144 sq. ft.
- Lot area:0.03 Acres
- Architectural Style:Transitional
- Construction Materials:Brick Veneer, Fiber Cement
- Exterior Features:Covered, Deck, Front Porch, Lighting, Private Entrance, Rain Gutters
- Foundation Description:Block, Permanent
- Levels:Tri-Level
Schools
- High school:Wake - Apex
- Middle school:Wake - Apex
- Elementary school:Wake - Apex Elementary
Utilities
- Water:Public, Water Connected
- Sewer:Public Sewer, Sewer Connected
Finances and disclosures
- Price:$415,000
- Price per sq. ft.:$193.56
- Tax amount:$3,471
Features and amenities
- Appliances:Dishwasher, Disposal, Free-Standing Electric Range, Microwave, Plumbed For Ice Maker, Refrigerator, Water Heater
- Laundry features:Electric Dryer Hookup, Inside, Laundry Closet, Upper Level, Washer Hookup
- Amenities:Ceiling Fan(s), Laminate Counters, Open Floorplan, Pantry, Pool, Smooth Ceilings, Walk-In Closet(s), Water Heater
- Pool features:Community
New listings near 327 Old Mill Village Drive
- New
$529,000Active3 beds 4 baths2,382 sq. ft.2011 Becca Court, Apex, NC 27502
MLS# 10151074Listed by: DZ REAL ESTATE SOLUTIONS, INC. - New
$3,245,000Active4 beds 7 baths6,865 sq. ft.394 Carolina Crossings Drive, Apex, NC 27523
MLS# 10151079Listed by: CHOICE RESIDENTIAL REAL ESTATE - New
$499,000Active2 beds 2 baths1,532 sq. ft.1503 Orchard Villas Avenue, Apex, NC 27502
MLS# 10151082Listed by: NC LADY REALTY - New
$725,000Active3 beds 4 baths2,529 sq. ft.2977 Mavisbank Circle, Apex, NC 27502
MLS# 10151086Listed by: PINNACLE GROUP REALTY - New
$490,890Active4 beds 4 baths2,227 sq. ft.2281 Bay Minette Station #529, Apex, NC 27502
MLS# 10151098Listed by: M/I HOMES OF RALEIGH LLC - New
$476,650Active4 beds 4 baths2,227 sq. ft.2289 Bay Minette Station #533, Apex, NC 27502
MLS# 10151105Listed by: M/I HOMES OF RALEIGH LLC - New
$760,000Active3 beds 3 baths2,741 sq. ft.3000 Mavisbank Circle, Apex, NC 27502
MLS# 10151111Listed by: COLDWELL BANKER HPW - New
$927,000Active5 beds 5 baths3,585 sq. ft.2301 Blue Cedar Court, Apex, NC 27523
MLS# 10151135Listed by: BINNY REALTY INC. - New
$499,500Active4 beds 4 baths2,644 sq. ft.2292 Apex Peakway, Apex, NC 27502
MLS# 10151009Listed by: KELLER WILLIAMS LEGACY - New
$505,000Active4 beds 4 baths2,644 sq. ft.2296 Apex Peakway, Apex, NC 27502
MLS# 10151016Listed by: KELLER WILLIAMS LEGACY