107 Romaine Court, Cary, NC 27513

Local realty services provided by:CENTURY 21 Triangle Group
107 Romaine Court,Cary, NC 27513
$457,500
  • 3 Beds
  • 3 Baths
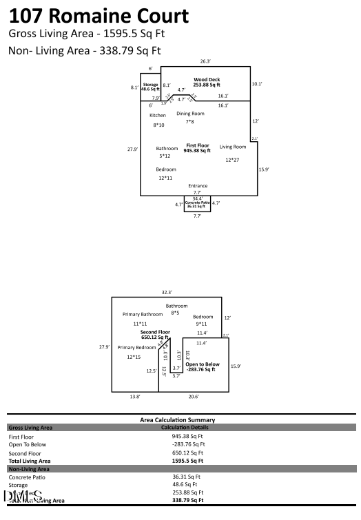
  • - sq. ft.
  • Single family
  • Sold
Listed by: fawn miles
Office: mark spain real estate
MLS#:10142634
Source:RD

Sorry, we are unable to map this address


Price summary

  • Price:$457,500
  • Monthly HOA dues:$7.67

About this home

Welcome home to this hidden gem on a quiet cul-de-sac in the heart of Cary. This inviting home offers bright, comfortable living spaces and a layout that fits today's lifestyle, whether you're relaxing at home or entertaining guests. Enjoy a private outdoor setting while staying just minutes from Cary's best shopping, dining, parks, greenways, RTP, and major commuter routes. Peaceful, convenient, and perfectly located.

Contact an agent

contact an agent

Yes, I would like more information. Please use and/or share my information with an independent agent affiliated with the CENTURY 21®  brand to contact me about my real estate needs. By clicking Send message, I request to be contacted by phone or text message and consent to being contacted by automated means. I understand that my consent to receive calls or texts is not a condition of purchasing any property, goods, or services. Alternatively, I understand that I can access real estate services by email or I can contact the agent myself.

If an independent agent affiliated with the CENTURY 21®  brand is not available in the area where I need assistance, I agree to be contacted by a real estate agent affiliated with another brand owned or licensed by Anywhere Real Estate (BHGRE® , Coldwell Banker® , Corcoran® , ERA® , Sotheby's International Realty® ).
 I acknowledge that I have read and agree to theTerms of useandPrivacy notice

Home facts

  • Year built:1991
  • Listing ID #:10142634
  • Added:73 day(s) ago
  • Updated:April 06, 2026 at 06:34 AM

Rooms and interior

  • Bedrooms:3
  • Total bathrooms:3
  • Full bathrooms:3
  • Rooms Total:9
  • Flooring:Carpet, Laminate
  • Dining Description:Eat-in Kitchen, Living/Dining Room Combination
  • Bathrooms Description:Bathtub/Shower Combination, Soaking Tub, Water Closet
  • Kitchen Description:Dishwasher, Microwave, Refrigerator
  • Basement Description:Crawl Space

Heating and cooling

  • Cooling:Ceiling Fan(s), Central Air, Heat Pump
  • Heating:Forced Air, Heat Pump
  • Central air:Yes

Structure and exterior

  • Roof:Shingle
  • Year built:1991
  • Lot Features:Back Yard, Cul-de-sac, Hardwood Trees
  • Architectural Style:Traditional
  • Construction Materials:Brick Veneer, Cement Siding
  • Exterior Features:Private Yard
  • Foundation Description:Block
  • Levels:Two

Schools

  • High school:Wake - Green Hope
  • Middle school:Wake - Salem
  • Elementary school:Wake - Laurel Park

Utilities

  • Water:Public, Water Connected
  • Sewer:Public Sewer, Sewer Connected

Finances and disclosures

  • Price:$457,500
  • Tax amount:$3,531

Features and amenities

  • Appliances:Dishwasher, Microwave, Refrigerator
  • Laundry features:Laundry Closet, Main Level
  • Amenities:Ceiling Fan(s), Granite Counters, Open Floorplan, Storage

Parking

  • Parking description:Parking Pad
MLS LogoListings marked with a Doorify MLS icon are provided courtesy of the Doorify MLS, of North Carolina, Internet Data Exchange Database. Brokers make an effort to deliver accurate information, but buyers should independently verify any information on which they will rely in a transaction. The listing broker shall not be responsible for any typographical errors, misinformation, or misprints, and they shall be held totally harmless from any damages arising from reliance upon this data. This data is provided exclusively for consumers’ personal, non-commercial use. Copyright 2026 Doorify MLS of North Carolina. All rights reserved.