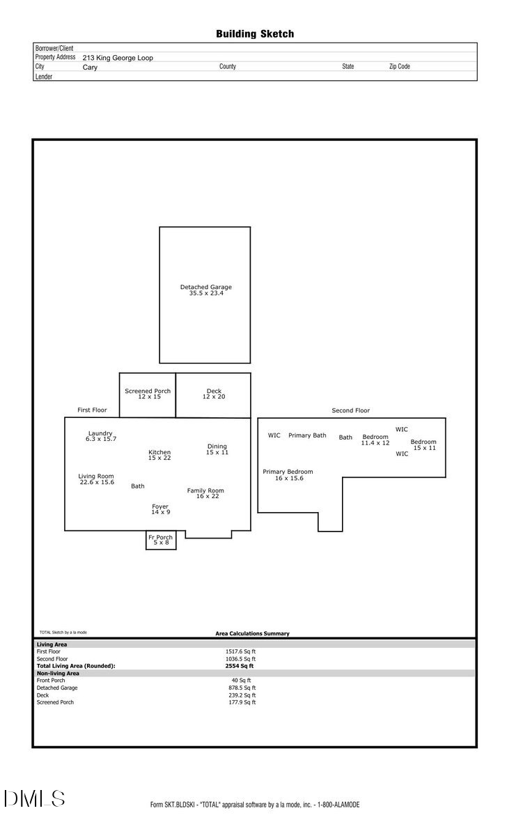
213 King George Loop, Cary, NC 27511
Local realty services provided by:CENTURY 21 Triangle Group
Upcoming open houses
- Sat, Mar 0712:00 pm - 04:00 pm
- Sun, Mar 0802:00 pm - 04:00 pm
Listed by: tina caul, james love
Office: exp realty llc.
MLS#:10150942
Source:RD
Price summary
- Price:$515,000
- Price per sq. ft.:$201.64
- Monthly HOA dues:$19
About this home
Contemporary-style home located in the desirable Kildaire Farms - Royal Ridge subdivision of Cary, NC. This 3-bedroom, 3-bath home offers a flexible layout and is ready for your creative vision and personal design touches.
Nestled in one of Cary's most established and sought-after communities, residents enjoy access to a scenic lake ideal for water activities, along with optional membership to the Kildaire Farms Swim & Racquet Club. The neighborhood is known for its extensive trail system, greenways, and abundant outdoor space -- perfect for those who appreciate an active lifestyle and connection to nature.
Inside, the home features thoughtful upgrades including a tankless water heater and a spacious three-bay garage providing exceptional storage and functionality. Flooring throughout includes a combination of hardwood, ceramic tile, and carpet. The kitchen offers an open layout with granite countertops, stainless steel appliances, and ample counter and cabinet space, flowing naturally into the adjoining living areas. A versatile side room off the kitchen and dedicated laundry room add additional convenience and flexibility to the floor plan.
Step outside to enjoy the screened porch and deck overlooking the expansive backyard -- a peaceful setting for entertaining, gardening, or future customization. The generous lot size allows for numerous possibilities to create your ideal outdoor retreat.
With strong structural features, desirable community amenities, and endless potential for personalization, this home presents a unique opportunity in a prime Cary location close to shopping at Trader Joe's, Whole Foods, and Costco. 213 King George sits near multiple dining options, parks, and major commuter routes.
Contact an agent
Home facts
- Year built:1987
- Listing ID #:10150942
- Added:1 day(s) ago
- Updated:March 06, 2026 at 07:00 PM
Rooms and interior
- Bedrooms:3
- Total bathrooms:3
- Full bathrooms:3
- Rooms Total:8
- Flooring:Carpet, Tile, Wood
- Bathrooms Description:Bathtub/Shower Combination, Double Vanity, Walk-In Shower
- Kitchen Description:Dishwasher, Disposal, Gas Range, Gas Water Heater, Plumbed For Ice Maker, Range Hood, Stainless Steel Appliance(s)
- Living area:2,554 sq. ft.
Heating and cooling
- Cooling:Central Air, Electric
- Heating:Electric, Forced Air, Natural Gas
Structure and exterior
- Roof:Shingle
- Year built:1987
- Building area:2,554 sq. ft.
- Lot area:0.42 Acres
- Lot Features:Back Yard, Front Yard, Garden, Landscaped
- Architectural Style:Transitional
- Construction Materials:Brick Veneer, Concrete, Stone, Wood Siding
- Exterior Features:Deck, Front Porch, Garden, Porch, Rain Gutters, Screened
- Levels:Two
Schools
- High school:Wake - Cary
- Middle school:Wake - East Cary
- Elementary school:Wake - Briarcliff
Utilities
- Water:Public
- Sewer:Public Sewer
Finances and disclosures
- Price:$515,000
- Price per sq. ft.:$201.64
- Tax amount:$5,101
Features and amenities
- Appliances:Dishwasher, Disposal, Gas Range, Gas Water Heater, Plumbed For Ice Maker, Range Hood, Stainless Steel Appliance(s), Tankless Water Heater, Water Heater
- Laundry features:Inside, Laundry Room, Main Level, Sink
- Amenities:Ceiling Fan(s), Entrance Foyer, Gas Water Heater, Granite Counters, High Ceilings, Open Floorplan, Recessed Lighting, Smooth Ceilings, Tankless Water Heater, Vaulted Ceiling(s), Walk-In Closet(s), Water Heater
New listings near 213 King George Loop
- New
$1,499,000Active6 beds 6 baths5,338 sq. ft.1028 Kensley Haven Court, Cary, NC 27519
MLS# 10150989Listed by: KELLER WILLIAMS LEGACY - New
$475,000Active3 beds 3 baths1,704 sq. ft.844 Madison Avenue, Cary, NC 27513
MLS# 10150993Listed by: EXP REALTY LLC - Open Sat, 11am to 1pmNew
$795,000Active4 beds 3 baths2,915 sq. ft.101 Springbrook Place, Cary, NC 27518
MLS# 10150945Listed by: KELLER WILLIAMS LEGACY - Open Sat, 2 to 4pmNew
$429,900Active3 beds 4 baths1,900 sq. ft.763 Samuel Cary Drive, Cary, NC 27511
MLS# 10150923Listed by: AIMEE ANDERSON & ASSOCIATES - New
$654,000Active4 beds 3 baths2,551 sq. ft.1014 Washington Street, Cary, NC 27511
MLS# 10150872Listed by: LPT REALTY LLC - New
$654,000Active4 beds 3 baths2,551 sq. ft.1014 Washington Street, Cary, NC 27511
MLS# 10150872Listed by: LPT REALTY LLC - Open Sat, 12 to 2pmNew
$370,000Active3 beds 2 baths1,552 sq. ft.220 Riverwalk Circle, Cary, NC 27511
MLS# 10150882Listed by: KELLER WILLIAMS REALTY CARY - Open Sat, 12 to 2pmNew
$370,000Active3 beds 2 baths1,552 sq. ft.220 Riverwalk Circle, Cary, NC 27511
MLS# 10150882Listed by: KELLER WILLIAMS REALTY CARY - Coming Soon
$1,399,500Coming Soon4 beds 5 baths211 Bordeaux Lane, Cary, NC 27511
MLS# 10150818Listed by: COLDWELL BANKER ADVANTAGE