970 Fern Avenue, Charlotte, NC 28208

Local realty services provided by:CENTURY 21 The Harrelson Group
Listed by: tanya jennings
Office: keller williams connected
MLS#:4341657
Source:CH
970 Fern Avenue,Charlotte, NC 28208
$650,000
  • 0.76 Acres
  • Lots / Land
  • Active

Price summary

  • Price:$650,000

About this home

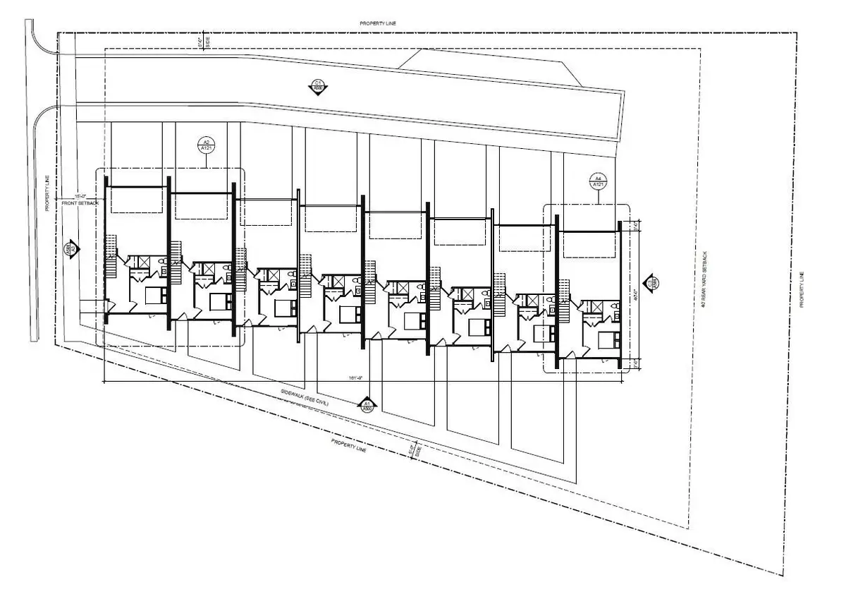
Walking distance from uptown Charlotte, this lot is ready for development in the booming Enderly Park area. Plan have been approved for 8 townhomes and the lot is already subdivided. Architectural plans have been created with units at 2024 sqft, 3 bed, 3.5 bath, 737sqft rooftop terrace, private fronch porch and backyard facing the woods. Charlotte Engineering, Topographical Surveys, Urban Forestry, Sewer/Water, CDOT and Land Development plans/approvals in place. City Storm Water Mitigation Fee paid.

Contact an agent

contact an agent

Yes, I would like more information. Please use and/or share my information with an independent agent affiliated with the CENTURY 21®  brand to contact me about my real estate needs. By clicking Send message, I request to be contacted by phone or text message and consent to being contacted by automated means. I understand that my consent to receive calls or texts is not a condition of purchasing any property, goods, or services. Alternatively, I understand that I can access real estate services by email or I can contact the agent myself.

If an independent agent affiliated with the CENTURY 21®  brand is not available in the area where I need assistance, I agree to be contacted by a real estate agent affiliated with another brand owned or licensed by Anywhere Real Estate (BHGRE® , Coldwell Banker® , Corcoran® , ERA® , Sotheby's International Realty® ).
 I acknowledge that I have read and agree to theTerms of useandPrivacy notice

Home facts

  • Listing ID #:4341657
  • Updated:March 20, 2026 at 01:20 PM

Structure and exterior

  • Lot area:0.76 Acres
  • Lot Features:Cleared, Wooded

Schools

  • High school:Unspecified
  • Elementary school:Unspecified

Utilities

  • Sewer:Public Sewer

Finances and disclosures

  • Price:$650,000
MLS LogoListings courtesy of Canopy MLS as distributed by MLS GRID. Copyright 2021 Canopy MLS. All rights reserved. Canopy MLS, provides content displayed here (“provided content”) on an “as is” basis and makes no representations or warranties regarding the provided content, including, but not limited to those of non-infringement, timeliness, accuracy, or completeness. Individuals and companies using information presented are responsible for verification and validation of information they utilize and present to their customers and clients. Canopy MLS will not be liable for any damage or loss resulting from use of the provided content or the products available through Portals, IDX, VOW, and/or Syndication. Recipients of this information shall not resell, redistribute, reproduce, modify, or otherwise copy any portion thereof without the expressed written consent of Canopy MLS.