1706 Wallace Street, Durham, NC 27707
Local realty services provided by:CENTURY 21 Triangle Group
1706 Wallace Street,Durham, NC 27707
$860,000
- 4 Beds
- 3 Baths
- 2,815 sq. ft.
- Single family
- Active
Upcoming open houses
- Sat, Apr 1111:00 am - 01:00 pm
- Sun, Apr 1202:00 pm - 04:00 pm
Listed by: courtney dunstan
Office: nest realty of the triangle
MLS#:10159047
Source:RD
Price summary
- Price:$860,000
- Price per sq. ft.:$305.51
About this home
This is what happens when a 1960s home ages well and gets the updates it deserves. A welcoming entry sets the tone with peg-and-plank hardwoods and a statement light fixture that create an immediate sense of character.
Original heart pine floors ground the kitchen, now upgraded with quartz countertops, an induction range, and double wall ovens--because charm is great, but function matters. The island, set under new lighting, conveys--adding both workspace and gathering space.
Fresh paint inside and out, updated baths, and a reworked primary vanity with an on-trend arch detail keep things current without feeling trendy. The formal living room (or ideal office) features a gorgeous fireplace, built-ins, and cabinetry--equal parts showpiece and usable space.
The brick courtyard out back, complete with new retaining walls, is a whole moment--private, established, and surrounded by mature landscaping, including blooming dogwoods and a producing fig tree. Up front, a new hardscaped sitting area overlooks a fully reimagined yard with native landscaping--designed to look good without demanding your weekends.
A large flex space could serve as a fifth bedroom, second office, or home gym. Plus, the detached two-car garage provides space for storage, projects, and built-in pollen protection.
Highly sought-after and quiet location between Lakewood and Forest Hills--right where you want to be....
Contact an agent
Home facts
- Year built:1963
- Listing ID #:10159047
- Added:1 day(s) ago
- Updated:April 10, 2026 at 06:23 PM
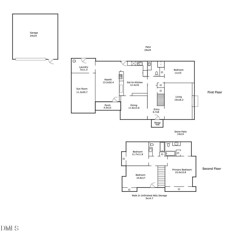
Rooms and interior
- Bedrooms:4
- Total bathrooms:3
- Full bathrooms:3
- Rooms Total:11
- Flooring:Ceramic Tile, Hardwood
- Dining Description:Eat-in Kitchen
- Bathrooms Description:Bathtub/Shower Combination, Double Vanity, Shower Only, Walk-In Shower
- Kitchen Description:Dishwasher, Electric Cooktop, Microwave, Refrigerator
- Basement Description:Crawl Space
- Living area:2,815 sq. ft.
Heating and cooling
- Cooling:Ceiling Fan(s), Central Air
- Heating:Electric, Fireplace(s), Forced Air, Heat Pump
- Central air:Yes
Structure and exterior
- Roof:Shingle
- Year built:1963
- Building area:2,815 sq. ft.
- Lot area:0.31 Acres
- Lot Features:Back Yard, Few Trees, Front Yard, Garden, Landscaped, Wooded
- Architectural Style:Traditional
- Construction Materials:Brick, Cedar
- Exterior Features:Fenced Yard, Patio, Porch, Rain Gutters
- Foundation Description:Brick/Mortar, Permanent
- Levels:Two
Schools
- High school:Durham - Jordan
- Middle school:Durham - Lakewood Montessori
- Elementary school:Durham - Lakewood
Utilities
- Water:Public, Water Connected
- Sewer:Public Sewer, Sewer Connected
Finances and disclosures
- Price:$860,000
- Price per sq. ft.:$305.51
- Tax amount:$7,283
Features and amenities
- Appliances:Dishwasher, Dryer, Electric Cooktop, Microwave, Oven, Refrigerator, Washer, Water Heater
- Laundry features:Dryer, Laundry Room, Main Level, Washer
- Amenities:Bookcases, Built-in Features, Ceiling Fan(s), Crown Molding, Entrance Foyer, Granite Counters, High Speed Internet, Smooth Ceilings, Washer, Water Heater
Parking
- Parking description:Concrete, Detached, Driveway, Garage, Garage Faces Front, On Street
- Garage:Yes
- Garage spaces:2
New listings near 1706 Wallace Street
- Open Sat, 2 to 4pmNew
$374,900Active3 beds 1 baths1,016 sq. ft.822 Gerard Street, Durham, NC 27701
MLS# 10159095Listed by: HOWARD HANNA ALLEN TATE RALEIGH GLENWOOD - New
$205,000Active3 beds 2 baths1,067 sq. ft.1228 N Miami Boulevard, Durham, NC 27703
MLS# 10159103Listed by: LPT REALTY, LLC - Open Sun, 12 to 2pmNew
$519,000Active3 beds 2 baths1,500 sq. ft.3409 Pickett Road, Durham, NC 27705
MLS# 10159104Listed by: URBAN DURHAM REALTY - New
$298,900Active2 beds 1 baths851 sq. ft.408 W Carver Street, Durham, NC 27704
MLS# 10159106Listed by: RED COLLECTIVE - Open Sat, 2 to 4pmNew
$1,295,000Active3 beds 2 baths2,790 sq. ft.1401 Maryland Avenue, Durham, NC 27705
MLS# 10159112Listed by: NEST REALTY OF THE TRIANGLE - New
$435,000Active3 beds 3 baths1,199 sq. ft.2941 Duke Homestead Road, Durham, NC 27705
MLS# 10159149Listed by: COLDWELL BANKER HPW - Open Sat, 12 to 3pmNew
$409,990Active3 beds 3 baths1,924 sq. ft.707 Painted Daisy Lane, Durham, NC 27703
MLS# 10159162Listed by: LENNAR CAROLINAS LLC - New
$435,000Active3 beds 3 baths1,199 sq. ft.2945 Duke Homestead Road, Durham, NC 27705
MLS# 10159163Listed by: COLDWELL BANKER HPW - New
$435,000Active3 beds 3 baths1,199 sq. ft.2935 Duke Homestead Road, Durham, NC 27705
MLS# 10159172Listed by: COLDWELL BANKER HPW - New
$1,050,000Active4 beds 5 baths3,865 sq. ft.2502 Sevier Street, Durham, NC 27705
MLS# 10159175Listed by: URBAN DURHAM REALTY