3118 Kiawa Pointe Lane, Durham, NC 27703

Local realty services provided by:CENTURY 21 Total Real Estate Solutions
3118 Kiawa Pointe Lane,Durham, NC 27703
$528,780
  • 2 Beds
  • 2 Baths
  • 1,684 sq. ft.
  • Single family
  • Pending
Listed by: aimee vasilik
Office: sm north carolina brokerage
MLS#:10141863
Source:RD

Price summary

  • Price:$528,780
  • Price per sq. ft.:$314
  • Monthly HOA dues:$275

About this home

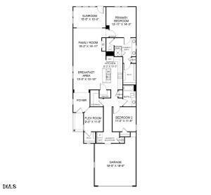
Welcome to The Tahoma - where comfort meets convenience! This beautifully updated 2-bedroom, 2-bathroom home combines modern finishes with the ease of single-level living, perfectly designed for everyday comfort and effortless entertaining. Step inside to find a versatile flex room, ideal for a home office, hobby space, or quiet den. The open kitchen boasts ample counter space, a large island, and direct access to the sunroom that bathes the home in natural light, creating the perfect space to unwind year-round. At the heart of the home, the spacious family room invites gatherings around the cozy fireplace, adding warmth and charm to every season. The primary suite, tucked just off the dining area, offers a private retreat with a double vanity bath and generous walk-in closet. A second bedroom provides flexibility for guests or additional living needs. A two-car garage completes this move-in ready gem, ensuring plenty of storage and everyday convenience. Enjoy a...

Contact an agent

contact an agent

Yes, I would like more information. Please use and/or share my information with an independent agent affiliated with the CENTURY 21®  brand to contact me about my real estate needs. By clicking Send message, I request to be contacted by phone or text message and consent to being contacted by automated means. I understand that my consent to receive calls or texts is not a condition of purchasing any property, goods, or services. Alternatively, I understand that I can access real estate services by email or I can contact the agent myself.

If an independent agent affiliated with the CENTURY 21®  brand is not available in the area where I need assistance, I agree to be contacted by a real estate agent affiliated with another brand owned or licensed by Anywhere Real Estate (BHGRE® , Coldwell Banker® , Corcoran® , ERA® , Sotheby's International Realty® ).
 I acknowledge that I have read and agree to theTerms of useandPrivacy notice

Home facts

  • Year built:2026
  • Listing ID #:10141863
  • Added:97 day(s) ago
  • Updated:April 23, 2026 at 10:57 PM

Rooms and interior

  • Bedrooms:2
  • Total bathrooms:2
  • Full bathrooms:2
  • Rooms Total:8
  • Flooring:Carpet, Tile, Vinyl
  • Dining Description:Living/Dining Room Combination
  • Bathrooms Description:Double Vanity, Walk-In Shower
  • Kitchen Description:Dishwasher, ENERGY STAR Qualified Appliances, Gas Cooktop, Gas Water Heater, Microwave, Plumbed For Ice Maker, Range Hood
  • Living area:1,684 sq. ft.

Heating and cooling

  • Cooling:Electric
  • Heating:Natural Gas

Structure and exterior

  • Roof:Shingle
  • Year built:2026
  • Building area:1,684 sq. ft.
  • Lot area:0.13 Acres
  • Lot Features:Landscaped
  • Architectural Style:Ranch
  • Construction Materials:Vinyl Siding
  • Exterior Features:Covered, Patio, Porch, Rain Gutters
  • Foundation Description:Slab
  • Levels:One

Schools

  • High school:Durham - Southern
  • Middle school:Durham - Neal
  • Elementary school:Durham - Oakgrove

Utilities

  • Water:Public
  • Sewer:Public Sewer

Finances and disclosures

  • Price:$528,780
  • Price per sq. ft.:$314

Features and amenities

  • Appliances:Dishwasher, ENERGY STAR Qualified Appliances, Gas Cooktop, Gas Water Heater, Microwave, Oven, Plumbed For Ice Maker, Range Hood
  • Laundry features:Main Level
  • Amenities:Clubhouse, Entrance Foyer, Gas Water Heater, Golf Course, High Ceilings, Pantry, Pool, Smooth Ceilings, Tennis Court(s), Trail(s), Walk-In Closet(s)

Parking

  • Parking description:Concrete, Driveway, Garage, Garage Door Opener, Garage Faces Front
  • Garage:Yes
  • Garage spaces:2
MLS LogoListings marked with a Doorify MLS icon are provided courtesy of the Doorify MLS, of North Carolina, Internet Data Exchange Database. Brokers make an effort to deliver accurate information, but buyers should independently verify any information on which they will rely in a transaction. The listing broker shall not be responsible for any typographical errors, misinformation, or misprints, and they shall be held totally harmless from any damages arising from reliance upon this data. This data is provided exclusively for consumers’ personal, non-commercial use. Copyright 2026 Doorify MLS of North Carolina. All rights reserved.