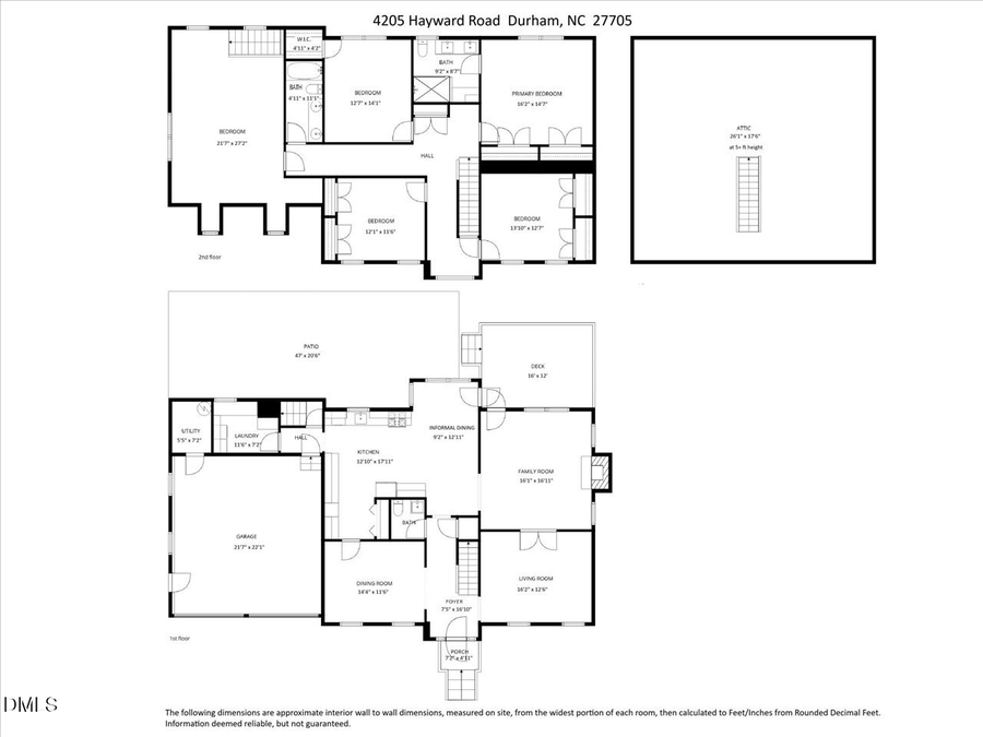
4205 Hayward Road, Durham, NC 27705
Local realty services provided by:CENTURY 21 Triangle Group
4205 Hayward Road,Durham, NC 27705
$749,000
- 4 Beds
- 3 Baths
- 3,204 sq. ft.
- Single family
- Pending
Listed by: martha hay
Office: coldwell banker advantage
MLS#:10133118
Source:RD
Price summary
- Price:$749,000
- Price per sq. ft.:$233.77
- Monthly HOA dues:$73.33
About this home
This charming Jay Kelly-built traditional home is situated on a quiet street in the desirable Garrett Farms community. Spanning 3,204 sq ft, it features four spacious bedrooms and 2.5 bathrooms, offering a blend of timeless charm and modern comforts.
The main level welcomes you with a gracious foyer, 9-foot ceilings, and hardwood floors, leading to formal living and dining areas. The oversized family room boasts a masonry gas-log fireplace and double doors that open to a versatile living/study space. The bright kitchen includes a separate breakfast room and easy access to the backyard.
Upstairs, you'll find four well-sized bedrooms, including a primary suite, along with a large bonus room accessible from a convenient back staircase—ideal for a playroom, media, or home office. A walk-up floored attic provides excellent storage options and potential for future expansion.
Enjoy outdoor entertaining on the large deck and patio overlooking a fenced, landscaped backyard that offers privacy and space to relax. Additional features include a two-car garage, main-level laundry, and city utilities.
Located just minutes from Duke University, Southpoint Mall, 15-501, and I-40, this home combines a peaceful neighborhood atmosphere with daily convenience—an excellent opportunity in one of Durham's established communities.
Contact an agent
Home facts
- Year built:1991
- Listing ID #:10133118
- Added:30 day(s) ago
- Updated:December 15, 2025 at 05:39 AM
Rooms and interior
- Bedrooms:4
- Total bathrooms:3
- Full bathrooms:2
- Half bathrooms:1
- Living area:3,204 sq. ft.
Heating and cooling
- Cooling:Ceiling Fan(s), Central Air
- Heating:Heat Pump, Natural Gas
Structure and exterior
- Roof:Shingle
- Year built:1991
- Building area:3,204 sq. ft.
- Lot area:0.35 Acres
Schools
- High school:Durham - Jordan
- Middle school:Durham - Githens
- Elementary school:Durham - Forest View
Utilities
- Water:Public
- Sewer:Public Sewer
Finances and disclosures
- Price:$749,000
- Price per sq. ft.:$233.77
- Tax amount:$5,001
New listings near 4205 Hayward Road
- Coming Soon
$475,000Coming Soon3 beds 3 baths1219 Cranebridge Place, Chapel Hill, NC 27517
MLS# 10137245Listed by: COLDWELL BANKER - HPW - New
$420,000Active2 beds 1 baths1,147 sq. ft.303 Clark Street, Durham, NC 27701
MLS# 10137195Listed by: COMPASS -- CHAPEL HILL - DURHAM - New
$299,500Active3 beds 3 baths1,943 sq. ft.1 Grove Park Road, Durham, NC 27705
MLS# 10137176Listed by: COSTELLO REAL ESTATE & INVESTM - New
$275,000Active2 beds 3 baths1,512 sq. ft.808 Holloway Street, Durham, NC 27701
MLS# 10137143Listed by: PEAKS & STRICKLAND REALTY, LLC - New
$155,000Active1 beds 1 baths550 sq. ft.1309 Hudson Avenue #D4, Durham, NC 27705
MLS# 10137137Listed by: EXP REALTY LLC - New
$179,000Active1 beds 1 baths625 sq. ft.1309 Hudson Avenue #D12, Durham, NC 27705
MLS# 10137138Listed by: EXP REALTY LLC - New
$495,000Active4 beds 3 baths2,005 sq. ft.3103 Broomsedge Way, Durham, NC 27712
MLS# 10137089Listed by: COLLECTIVE REALTY LLC - New
$689,990Active2 beds 3 baths1,636 sq. ft.2004 Moody Lane, Durham, NC 27701
MLS# 10137091Listed by: COMPASS -- RALEIGH - New
$725,000Active3 beds 4 baths3,808 sq. ft.6501 Deerview Trail, Durham, NC 27712
MLS# 10137094Listed by: KELLER WILLIAMS ELITE REALTY - New
$599,520Active3 beds 2 baths1,696 sq. ft.1220 Salford Court, Durham, NC 27703
MLS# 10137100Listed by: PLOWMAN PROPERTIES LLC.