906 W Maynard Avenue, Durham, NC 27704

Local realty services provided by:CENTURY 21 Triangle Group
906 W Maynard Avenue,Durham, NC 27704
$299,900
  • 0.71 Acres
  • Lots / Land
  • Active
Listed by: roy ellis
Office: compass -- chapel hill - durham
MLS#:10148474
Source:RD

Price summary

  • Price:$299,900

About this home

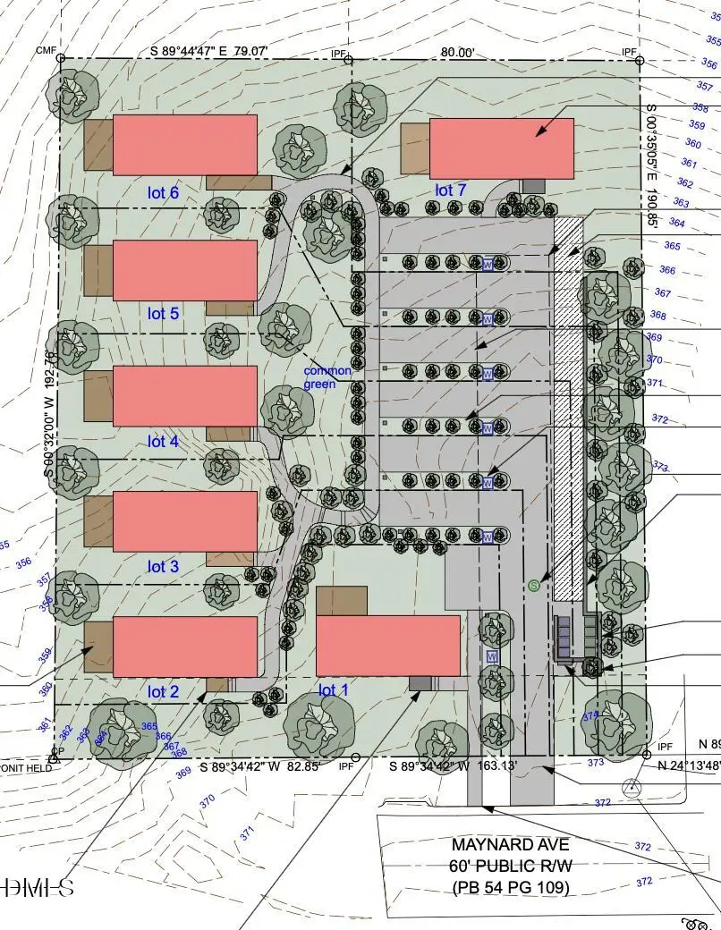
Take advantage of a rare investment opportunity at 906 and 908 W. Maynard Ave, ideally situated for developers and builders looking to capitalize on Durham's growing demand for urban housing. This prime assembly offers a combined .7 acres of land, providing a perfect slate for a high-density residential project. Under Durham's favorable ''small lot'' development options, the site is primed for the construction of up to 7 small lot homes, maximizing the property's footprint and ROI. The plat strategy designed by Center Studio Architecture can be paired with modern home plans, sold separately. While 906 W. Maynard currently features an existing structure, the value lies in the land's redevelopment potential, as removing the current home paves the way for a modern, multi-unit community. A full topological survey is available to accelerate your due diligence, ensuring you can move quickly on this ready-to-develop gem located just minutes from downtown, major transit corridors, and Duke...

Contact an agent

contact an agent

Yes, I would like more information. Please use and/or share my information with an independent agent affiliated with the CENTURY 21®  brand to contact me about my real estate needs. By clicking Send message, I request to be contacted by phone or text message and consent to being contacted by automated means. I understand that my consent to receive calls or texts is not a condition of purchasing any property, goods, or services. Alternatively, I understand that I can access real estate services by email or I can contact the agent myself.

If an independent agent affiliated with the CENTURY 21®  brand is not available in the area where I need assistance, I agree to be contacted by a real estate agent affiliated with another brand owned or licensed by Anywhere Real Estate (BHGRE® , Coldwell Banker® , Corcoran® , ERA® , Sotheby's International Realty® ).
 I acknowledge that I have read and agree to theTerms of useandPrivacy notice

Home facts

  • Listing ID #:10148474
  • Added:29 day(s) ago
  • Updated:March 26, 2026 at 02:56 PM

Structure and exterior

  • Lot area:0.71 Acres

Schools

  • High school:Durham - Riverside
  • Middle school:Durham - Brogden
  • Elementary school:Durham - E K Powe

Utilities

  • Water:Public, Water Connected
  • Sewer:Public Sewer, Sewer Connected

Finances and disclosures

  • Price:$299,900
  • Tax amount:$4,596
MLS LogoListings marked with a Doorify MLS icon are provided courtesy of the Doorify MLS, of North Carolina, Internet Data Exchange Database. Brokers make an effort to deliver accurate information, but buyers should independently verify any information on which they will rely in a transaction. The listing broker shall not be responsible for any typographical errors, misinformation, or misprints, and they shall be held totally harmless from any damages arising from reliance upon this data. This data is provided exclusively for consumers’ personal, non-commercial use. Copyright 2026 Doorify MLS of North Carolina. All rights reserved.