1513 Mayapple Lane, Hillsborough, NC 27278

Local realty services provided by:CENTURY 21 Triangle Group
1513 Mayapple Lane,Hillsborough, NC 27278
$829,000
  • 4 Beds
  • 3 Baths
  • 2,708 sq. ft.
  • Single family
  • Pending
Listed by: sam poole
Office: nest realty of the triangle
MLS#:10150722
Source:RD

Price summary

  • Price:$829,000
  • Price per sq. ft.:$306.13

About this home

Paradise found! Beguiling log and cedar shake home adjacent to Eno River State Park, just steps to the river and just minutes to downtown Hillsborough. Enjoy 2.45 acres of artfully landscaped property featuring the perfect combination of dreamy meadow, paddock and woodland gently defined by artful plantings. Inside, the dream continues with wide board floors, a woodturning fireplace, vaulted ceilings and ample living space. 3 beds, 2 baths on the main level with a sitting room, dining, kitchen and den plus 4th bedroom and bath with readers balcony on the 2nd floor. Lovingly updated and meticulously maintained, don't be afraid to look under the hood! See extensive improvements list in docs. It's ok to follow your heart, right onto the big front porch at 1513 Mayapple!

Contact an agent

contact an agent

Yes, I would like more information. Please use and/or share my information with an independent agent affiliated with the CENTURY 21®  brand to contact me about my real estate needs. By clicking Send message, I request to be contacted by phone or text message and consent to being contacted by automated means. I understand that my consent to receive calls or texts is not a condition of purchasing any property, goods, or services. Alternatively, I understand that I can access real estate services by email or I can contact the agent myself.

If an independent agent affiliated with the CENTURY 21®  brand is not available in the area where I need assistance, I agree to be contacted by a real estate agent affiliated with another brand owned or licensed by Anywhere Real Estate (BHGRE® , Coldwell Banker® , Corcoran® , ERA® , Sotheby's International Realty® ).
 I acknowledge that I have read and agree to theTerms of useandPrivacy notice

Home facts

  • Year built:1979
  • Listing ID #:10150722
  • Added:5 day(s) ago
  • Updated:March 11, 2026 at 12:32 AM

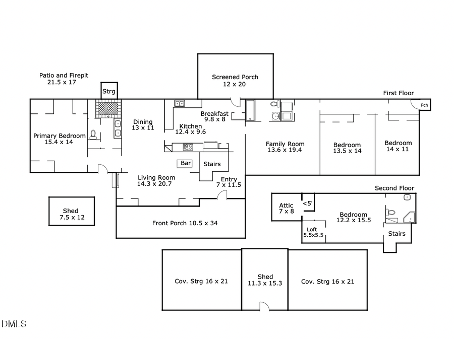
Rooms and interior

  • Bedrooms:4
  • Total bathrooms:3
  • Full bathrooms:3
  • Rooms Total:10
  • Flooring:Tile, Wood
  • Dining Description:Eat-in Kitchen
  • Bathrooms Description:Bathtub/Shower Combination, Double Vanity, Shower Only
  • Kitchen Description:Gas Range
  • Bedroom Description:Master Downstairs
  • Living area:2,708 sq. ft.

Heating and cooling

  • Cooling:Central Air
  • Heating:Geothermal, Propane, Solar, Wood Stove

Structure and exterior

  • Roof:Shingle
  • Year built:1979
  • Building area:2,708 sq. ft.
  • Lot area:2.45 Acres
  • Lot Features:Irregular Lot, Landscaped, Many Trees, Private
  • Architectural Style:Log Home, Rustic, Transitional
  • Construction Materials:Log, Wood Siding
  • Exterior Features:Covered, Fenced Yard, Front Porch, Porch, Rear Porch, Screened, Storage
  • Levels:One and One Half

Schools

  • High school:Orange - Orange
  • Middle school:Orange - Orange
  • Elementary school:Orange - River Park

Utilities

  • Water:Well
  • Sewer:Septic Tank

Finances and disclosures

  • Price:$829,000
  • Price per sq. ft.:$306.13
  • Tax amount:$4,483

Features and amenities

  • Appliances:Gas Range
  • Laundry features:Laundry Closet
  • Amenities:Ceiling Fan(s), Entrance Foyer, High Ceilings, Pantry, Vaulted Ceiling(s)
MLS LogoListings marked with a Doorify MLS icon are provided courtesy of the Doorify MLS, of North Carolina, Internet Data Exchange Database. Brokers make an effort to deliver accurate information, but buyers should independently verify any information on which they will rely in a transaction. The listing broker shall not be responsible for any typographical errors, misinformation, or misprints, and they shall be held totally harmless from any damages arising from reliance upon this data. This data is provided exclusively for consumers’ personal, non-commercial use. Copyright 2026 Doorify MLS of North Carolina. All rights reserved.