205 W Maple Avenue, Holly Springs, NC 27540

Local realty services provided by:CENTURY 21 New Beginnings
205 W Maple Avenue,Holly Springs, NC 27540
$689,000
  • 4 Beds
  • 3 Baths
  • 2,357 sq. ft.
  • Single family
  • Active
Listed by: jane kim
Office: franklin street realty
MLS#:10145225
Source:RD

Price summary

  • Price:$689,000
  • Price per sq. ft.:$292.32

About this home

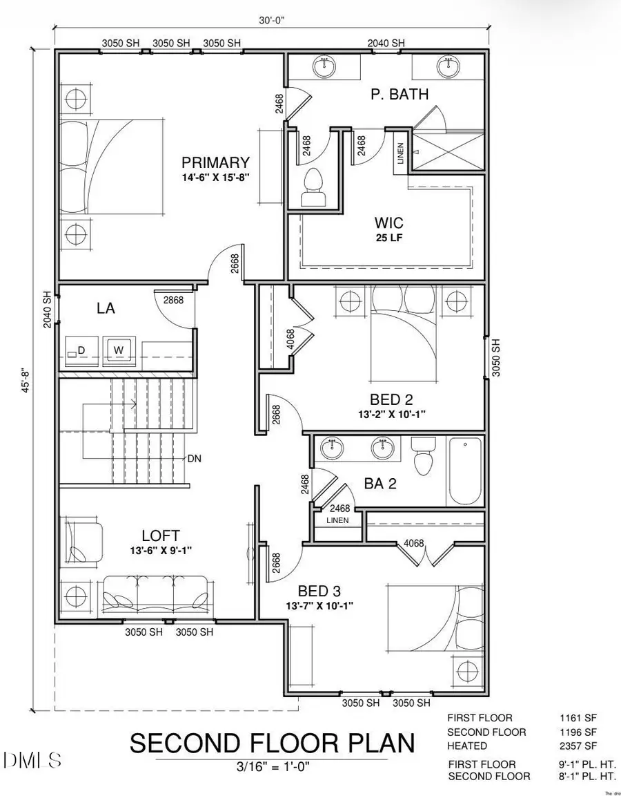
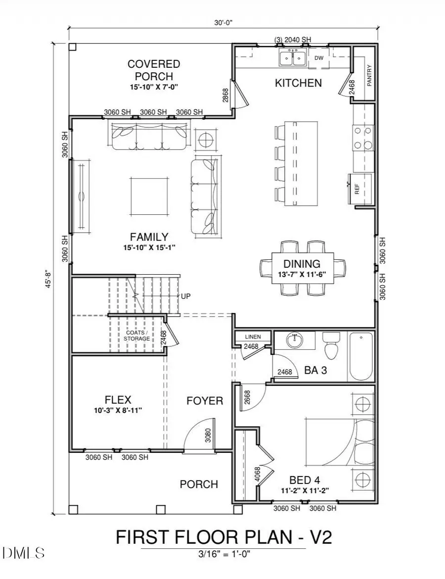
A modern new construction nestled in the Prime Downtown Holly Springs Location! Check out the floor plan & elevation. A rare pre-sale opportunity in the desirable Downtown Holly Springs- more details to follow.

Contact an agent

contact an agent

Yes, I would like more information. Please use and/or share my information with an independent agent affiliated with the CENTURY 21®  brand to contact me about my real estate needs. By clicking Send message, I request to be contacted by phone or text message and consent to being contacted by automated means. I understand that my consent to receive calls or texts is not a condition of purchasing any property, goods, or services. Alternatively, I understand that I can access real estate services by email or I can contact the agent myself.

If an independent agent affiliated with the CENTURY 21®  brand is not available in the area where I need assistance, I agree to be contacted by a real estate agent affiliated with another brand owned or licensed by Anywhere Real Estate (BHGRE® , Coldwell Banker® , Corcoran® , ERA® , Sotheby's International Realty® ).
 I acknowledge that I have read and agree to theTerms of useandPrivacy notice

Home facts

  • Year built:2026
  • Listing ID #:10145225
  • Added:57 day(s) ago
  • Updated:April 05, 2026 at 02:58 PM

Rooms and interior

  • Bedrooms:4
  • Total bathrooms:3
  • Full bathrooms:3
  • Rooms Total:4
  • Flooring:Carpet, Tile, Vinyl
  • Kitchen Description:Cooktop, Dishwasher, Disposal, Gas Cooktop, Gas Oven, Gas Water Heater
  • Living area:2,357 sq. ft.

Heating and cooling

  • Cooling:Ceiling Fan(s), Central Air, Gas
  • Heating:Central, Forced Air, Hot Water, Natural Gas
  • Central air:Yes

Structure and exterior

  • Roof:Shingle
  • Year built:2026
  • Building area:2,357 sq. ft.
  • Lot area:0.15 Acres
  • Architectural Style:Ranch
  • Construction Materials:HardiPlank Type
  • Foundation Description:Block, Brick/Mortar
  • Levels:Two

Schools

  • High school:Wake - Holly Springs
  • Middle school:Wake - Holly Grove
  • Elementary school:Wake - Holly Ridge

Utilities

  • Water:Public, Water Available
  • Sewer:Public Sewer, Sewer Available

Finances and disclosures

  • Price:$689,000
  • Price per sq. ft.:$292.32
  • Tax amount:$774

Features and amenities

  • Appliances:Cooktop, Dishwasher, Disposal, Gas Cooktop, Gas Oven, Gas Water Heater, Oven, Water Heater
  • Amenities:Gas Water Heater, Water Heater
MLS LogoListings marked with a Doorify MLS icon are provided courtesy of the Doorify MLS, of North Carolina, Internet Data Exchange Database. Brokers make an effort to deliver accurate information, but buyers should independently verify any information on which they will rely in a transaction. The listing broker shall not be responsible for any typographical errors, misinformation, or misprints, and they shall be held totally harmless from any damages arising from reliance upon this data. This data is provided exclusively for consumers’ personal, non-commercial use. Copyright 2026 Doorify MLS of North Carolina. All rights reserved.