9710 Tapp Road, Hurdle Mills, NC 27541

Local realty services provided by:CENTURY 21 Triangle Group
9710 Tapp Road,Hurdle Mills, NC 27541
$529,000
  • 4 Beds
  • 3 Baths
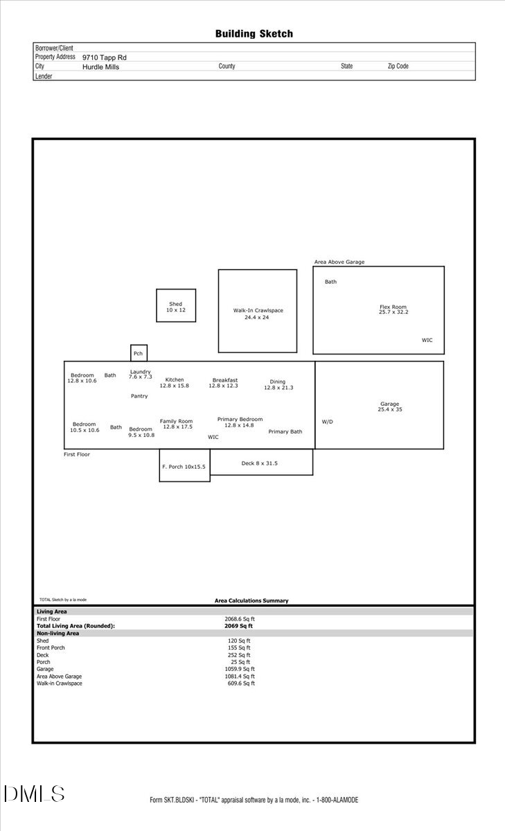
  • 2,069 sq. ft.
  • Mobile / Manufactured
  • Active
Upcoming open houses
  • Sat, Apr 18
    11:00 am - 01:00 pm
Listed by:
  • Listing agent0
    Rob Brown(315) 406 - 9183
    CENTURY 21 Triangle Group
Office: century 21 triangle group
MLS#:10144659
Source:RD

Price summary

  • Price:$529,000
  • Price per sq. ft.:$255.68

About this home

Welcome to 9710 Tapp Rd Hurdle MIlls. This is a rare opportunity to own a beautifully renovated and updated home on over 19 acres! Tucked nearly 3/4 of a mile off the road, this property offers unmatched privacy and tranquility, accessed by a quiet gravel road and driveway surrounded by nature. If you have been dreaming of space, seclusion, and room to breathe this is it! This home features 4 bedrooms and 3 full bathrooms, all freshly renovated throughout, blending modern updates with country charm. This home is truly move in ready! Outside, enjoy wide-open land-bring your chickens and goats, start a garden, or simply enjoy the freedom of rural life. A massive two car attached garage adds incredible value, complete with a finished and permitted 2nd story with an additional 1081 sq. ft. Adding another full bathroom, closet, and huge area ideal for a home office, studio, or recreational area. Also included is a secondary laundry area in the garage. If you are looking for a...

Contact an agent

contact an agent

Yes, I would like more information. Please use and/or share my information with an independent agent affiliated with the CENTURY 21®  brand to contact me about my real estate needs. By clicking Send message, I request to be contacted by phone or text message and consent to being contacted by automated means. I understand that my consent to receive calls or texts is not a condition of purchasing any property, goods, or services. Alternatively, I understand that I can access real estate services by email or I can contact the agent myself.

If an independent agent affiliated with the CENTURY 21®  brand is not available in the area where I need assistance, I agree to be contacted by a real estate agent affiliated with another brand owned or licensed by Anywhere Real Estate (BHGRE® , Coldwell Banker® , Corcoran® , ERA® , Sotheby's International Realty® ).
 I acknowledge that I have read and agree to theTerms of useandPrivacy notice

Home facts

  • Year built:2001
  • Listing ID #:10144659
  • Added:71 day(s) ago
  • Updated:April 17, 2026 at 01:46 PM

Rooms and interior

  • Bedrooms:4
  • Total bathrooms:3
  • Full bathrooms:3
  • Rooms Total:9
  • Flooring:Vinyl
  • Dining Description:Eat-in Kitchen
  • Bathrooms Description:Bathtub/Shower Combination, Walk-In Shower
  • Kitchen Description:Cooktop, Dishwasher, Electric Water Heater, Exhaust Fan, Ice Maker, Plumbed For Ice Maker, Refrigerator
  • Living area:2,069 sq. ft.

Heating and cooling

  • Cooling:Central Air
  • Heating:Heat Pump
  • Central air:Yes

Structure and exterior

  • Roof:Shingle
  • Year built:2001
  • Building area:2,069 sq. ft.
  • Lot area:19.61 Acres
  • Lot Features:Cleared, Farm, Few Trees, Garden, Level, Secluded
  • Architectural Style:Ranch
  • Construction Materials:Blown-In Insulation, Concrete, Vinyl Siding
  • Exterior Features:Fire Pit, Private Yard, Storage
  • Foundation Description:Block, Pillar/Post/Pier
  • Levels:One, Two

Schools

  • High school:Orange - Orange
  • Middle school:Orange - Orange
  • Elementary school:Orange - Pathways

Utilities

  • Water:Well
  • Sewer:Septic Tank

Finances and disclosures

  • Price:$529,000
  • Price per sq. ft.:$255.68
  • Tax amount:$2,441

Features and amenities

  • Appliances:Cooktop, Dishwasher, Dryer, Electric Water Heater, Exhaust Fan, Ice Maker, Oven, Plumbed For Ice Maker, Refrigerator, Washer, Water Heater
  • Laundry features:Common Area, Dryer, Electric Dryer Hookup, In Garage, In Unit, Washer, Washer Hookup
  • Amenities:Ceiling Fan(s), Crown Molding, Electric Water Heater, Kitchen Island, Open Floorplan, Pantry, Walk-In Closet(s), Washer, Water Heater

Parking

  • Parking description:Driveway, Garage, Unpaved
  • Garage:Yes
  • Garage spaces:2
MLS LogoListings marked with a Doorify MLS icon are provided courtesy of the Doorify MLS, of North Carolina, Internet Data Exchange Database. Brokers make an effort to deliver accurate information, but buyers should independently verify any information on which they will rely in a transaction. The listing broker shall not be responsible for any typographical errors, misinformation, or misprints, and they shall be held totally harmless from any damages arising from reliance upon this data. This data is provided exclusively for consumers’ personal, non-commercial use. Copyright 2026 Doorify MLS of North Carolina. All rights reserved.