5609 Palm Tree Place, Leland, NC 28451
Local realty services provided by:CENTURY 21 New Beginnings
5609 Palm Tree Place,Leland, NC 28451
$387,194
- 4 Beds
- 4 Baths
- 2,052 sq. ft.
- Townhouse
- Pending
Listed by: mason w gallman, hunter cribb
Office: mungo homes
MLS#:100563403
Source:NC_CCAR
Price summary
- Price:$387,194
- Price per sq. ft.:$188.69
About this home
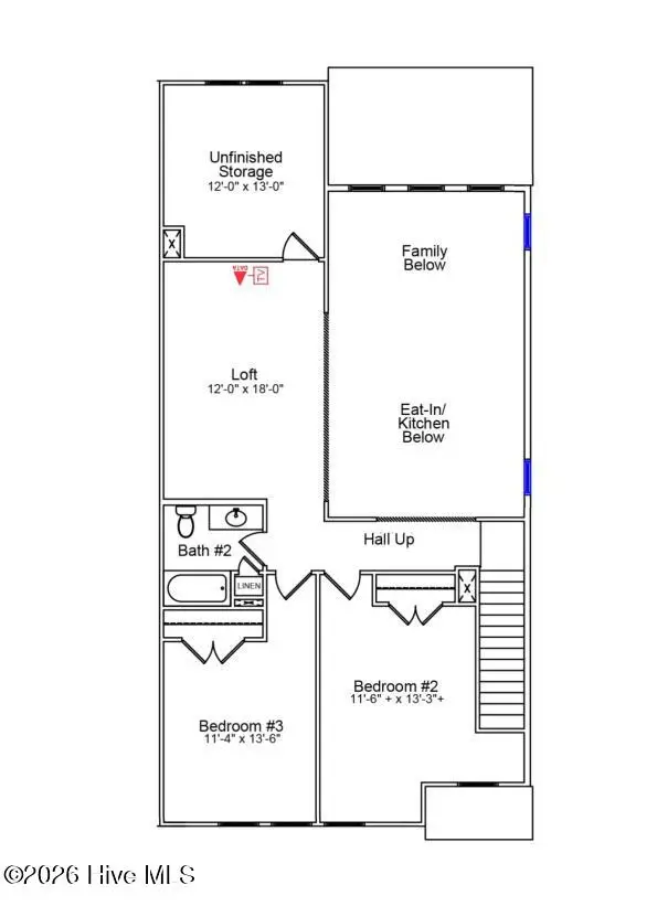
This spacious end unit townhome boasts a two-car garage, first-floor primary suite and open concept living. Upon entering, you'll find a convenient powder room that seamlessly flows into the great room, kitchen and eat-in that feature soaring two-story ceilings. additionally, this home offers a covered porch, perfect for outdoor relaxation. Downstairs the primary suite includes a walk-in closet, dual vanities, and a walk-in shower. A laundry room pass through off the primary closet adds extra convenience. Upstairs, you'll discover two secondary bedrooms, a full bathroom, and a large, versatile loft space. Located just minutes to shopping and dining as well as Historic Downtown Wilmington, Welcome to Grand Park. This Master Planned community will offer amenities such as a swimming pool, covered outdoor pavilion.
Contact an agent
Home facts
- Year built:2026
- Listing ID #:100563403
- Added:4 day(s) ago
- Updated:April 03, 2026 at 07:55 AM
Rooms and interior
- Bedrooms:4
- Total bathrooms:4
- Full bathrooms:3
- Half bathrooms:1
- Rooms Total:8
- Flooring:Carpet, Tile
- Bathrooms Description:Walk-in Shower
- Kitchen Description:Dishwasher, Kitchen Island, Pantry
- Bedroom Description:Master Downstairs, Walk-In Closet(s)
- Living area:2,052 sq. ft.
Heating and cooling
- Cooling:Central Air
- Heating:Electric, Heat Pump, Heating
- Central air:Yes
Structure and exterior
- Roof:Architectural Shingle
- Year built:2026
- Building area:2,052 sq. ft.
- Lot area:0.05 Acres
- Lot Features:Corner Lot
- Construction Materials:Fiber Cement, Wood Frame
- Exterior Features:Covered, Porch
- Foundation Description:Slab
- Levels:2 Story
Schools
- High school:North Brunswick
- Middle school:Town Creek
- Elementary school:Town Creek
Finances and disclosures
- Price:$387,194
- Price per sq. ft.:$188.69
Features and amenities
- Appliances:Dishwasher
- Laundry features:Washer Hookup
- Amenities:Ceiling Fan(s), Community Pool, Management, Master Insure, Pest Control, Picnic Area, Street Lights, Vaulted Ceiling(s), Walk-In Closet(s)
- Pool features:Community Pool
Parking
- Total parking spaces:2
- Parking description:Attached, Attached Garage, Concrete, Off Street
- Garage:Yes
New listings near 5609 Palm Tree Place
- New
$869,000Active4 beds 4 baths3,851 sq. ft.1222 Cross Water Circle, Leland, NC 28451
MLS# 100562882Listed by: COLDWELL BANKER SEA COAST ADVANTAGE-LELAND - New
$295,000Active2 beds 3 baths1,240 sq. ft.130 Fairview Road, Leland, NC 28451
MLS# 100564693Listed by: PROACTIVE REAL ESTATE - Open Sat, 11am to 2pmNew
$449,900Active2 beds 2 baths1,384 sq. ft.1319 Star Grass Way, Leland, NC 28451
MLS# 100564623Listed by: YOUR COASTAL BROKER LLC - New
$335,000Active3 beds 2 baths1,736 sq. ft.707 Beachwalk Drive, Leland, NC 28479
MLS# 100564628Listed by: KELLER WILLIAMS INNOVATE-WILMINGTON - New
$535,617Active4 beds 4 baths2,595 sq. ft.4931 Kinship Drive, Leland, NC 28451
MLS# 100564629Listed by: MUNGO HOMES - New
$885,000Active4 beds 4 baths2,548 sq. ft.9599 Fallen Pear Lane Ne, Leland, NC 28451
MLS# 100564545Listed by: COLDWELL BANKER SEA COAST ADVANTAGE-LELAND - Open Sat, 12 to 2pmNew
$399,995Active3 beds 2 baths1,528 sq. ft.1142 Garden Club Way, Leland, NC 28451
MLS# 100564591Listed by: BLUECOAST REALTY CORPORATION - New
$491,950Active3 beds 2 baths1,900 sq. ft.2029 Brisco Way #8, Leland, NC 28451
MLS# 100564522Listed by: SM NORTH CAROLINA BROKERAGE LLC
$391,990Pending5 beds 3 baths2,511 sq. ft.505 Tea Tree Circle #Lot 136, Navassa, NC 28451
MLS# 100564540Listed by: D.R. HORTON, INC- Open Sat, 2 to 4pmNew
$350,000Active3 beds 3 baths2,018 sq. ft.9397 Cassadine Court, Leland, NC 28451
MLS# 100564462Listed by: COLDWELL BANKER SEA COAST ADVANTAGE