154 Thomas Trail, Lillington, NC 27546
Local realty services provided by:CENTURY 21 New Beginnings
154 Thomas Trail,Lillington, NC 27546
$294,547
- 3 Beds
- 2 Baths
- 1,383 sq. ft.
- Single family
- Active
Listed by: tiana thompson
Office: fonville morisey & barefoot
MLS#:10144913
Source:RD
Price summary
- Price:$294,547
- Price per sq. ft.:$212.98
- Monthly HOA dues:$55
About this home
Presale Opportunity - Build Your Dream Ranch Home on This Homesite
This is a presale opportunity offering the chance to build this thoughtfully designed single-story ranch floorplan—or choose any available floorplan that fits this specific homesite, allowing you to personalize your home to match your lifestyle and needs.
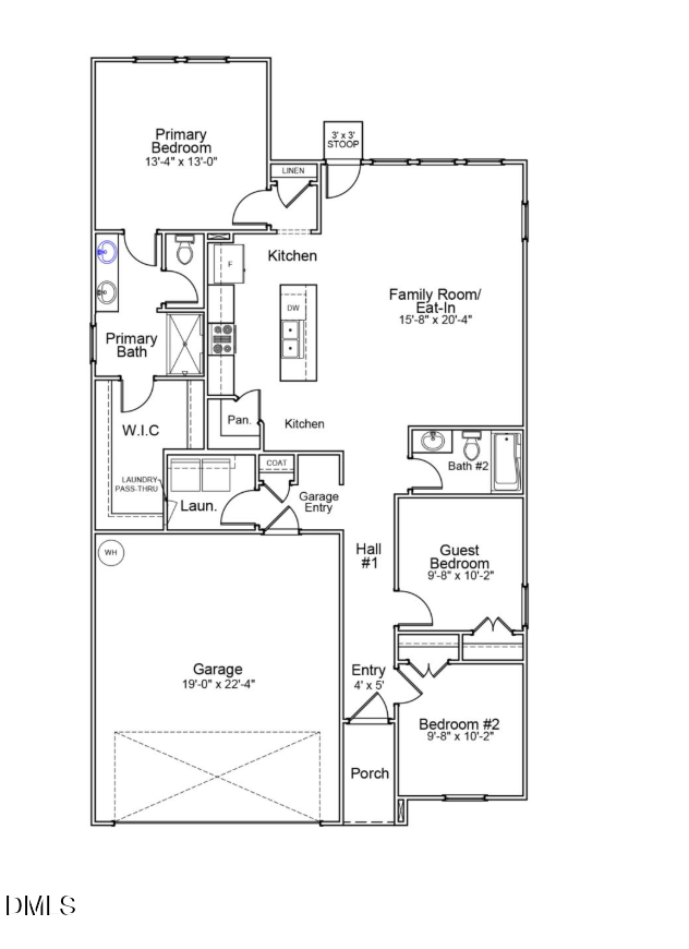
The featured ranch layout offers open-concept living with a spacious family room and eat-in kitchen, complete with a large center island, ample storage, and seamless flow for everyday living and entertaining. A private primary suite with walk-in closet and en-suite bath is thoughtfully separated from secondary bedrooms, creating a comfortable and functional layout. Additional highlights include a pass-through laundry room, covered front porch, and a two-car garage.
Located on a desirable homesite that backs up to beautiful treelines and a pond, this opportunity provides flexibility in both home design and finishes, making it ideal for buyers who want to create a home that truly reflects their vision.
Pricing shown is based on the builder's starting price and is subject to change based on selected floorplan, structural options, lot premiums, and buyer-selected upgrades.
✨ Build new, build your way—this presale opportunity offers customization, comfort, and long-term value. Visit www.mungo.com for more information on available floorplans....
Contact an agent
Home facts
- Year built:2026
- Listing ID #:10144913
- Added:76 day(s) ago
- Updated:April 23, 2026 at 05:57 PM
Rooms and interior
- Bedrooms:3
- Total bathrooms:2
- Full bathrooms:2
- Rooms Total:4
- Flooring:Carpet, Laminate, Vinyl
- Kitchen Description:ENERGY STAR Qualified Appliances
- Living area:1,383 sq. ft.
Heating and cooling
- Cooling:Electric
- Heating:Electric
Structure and exterior
- Roof:Shingle
- Year built:2026
- Building area:1,383 sq. ft.
- Lot area:0.55 Acres
- Architectural Style:Ranch, Traditional
- Construction Materials:Concrete, Vinyl Siding
- Exterior Features:Awning(s), Patio, Porch, Smart Camera(s)/Recording
- Foundation Description:Slab
- Levels:One
Schools
- High school:Harnett - West Harnett
- Middle school:Harnett - West Harnett
- Elementary school:Harnett - Shawtown Lillington
Utilities
- Water:Public, Water Connected
- Sewer:Septic Available, Septic Tank
Finances and disclosures
- Price:$294,547
- Price per sq. ft.:$212.98
Features and amenities
- Appliances:ENERGY STAR Qualified Appliances
Parking
- Garage:Yes
- Garage spaces:2
New listings near 154 Thomas Trail
- New
$364,990Active5 beds 3 baths2,818 sq. ft.134 Westerly Way, Lillington, NC 27546
MLS# 10162036Listed by: D.R. HORTON, INC. - New
$428,800Active4 beds 3 baths2,604 sq. ft.40 Capeside Court, Lillington, NC 27546
MLS# LP761098Listed by: PEAK REALTY GROUP - New
$424,500Active4 beds 3 baths2,102 sq. ft.4575 Old Us Hwy 421, Lillington, NC 27546
MLS# 10161925Listed by: FATHOM REALTY NC - Coming Soon
$440,000Coming Soon4 beds 2 baths1200 S 10th Street, Lillington, NC 27546
MLS# 10161759Listed by: NC HOME TEAM LLC - New
$399,900Active4 beds 4 baths2,560 sq. ft.104 Hookbill Lane, Lillington, NC 27546
MLS# LP761211Listed by: COLDWELL BANKER ADVANTAGE - FAYETTEVILLE - New
$439,000Active4 beds 3 baths4,325 sq. ft.15 Supreme Drive, Lillington, NC 27546
MLS# 761171Listed by: ERA STROTHER REAL ESTATE #5 - New
$373,500Active4 beds 4 baths2,900 sq. ft.33 Eastwood Court, Lillington, NC 27546
MLS# 761055Listed by: COLDWELL BANKER ADVANTAGE - FAYETTEVILLE - New
$348,240Active5 beds 3 baths2,511 sq. ft.124 Westerly Way, Lillington, NC 27546
MLS# 10161414Listed by: D.R. HORTON, INC. - New
$359,900Active4 beds 2 baths1,866 sq. ft.292 Black Duck Lane, Lillington, NC 27546
MLS# LP761059Listed by: COLDWELL BANKER ADVANTAGE - FAYETTEVILLE - New
$429,000Active4 beds 4 baths2,842 sq. ft.60 Single Barrel Court, Lillington, NC 27546
MLS# LP760987Listed by: EVERYTHING PINES PARTNERS LLC